4-Bedroom, 2717 Sq Ft Colonial Plan with Second Floor Master

Main image for house plan # 9864

Images/Plans copyrighted by designer. Photos may reflect homeowner modifications.

About House Plan #105-1062

Sq Ft
2717
Sq Ft
Bedrooms
4
Bedrooms
Bathroom
2
Baths
Half Baths
0
Half Baths
Bedrooms
2
Cars
Bedrooms
2
Stories
Bedrooms
68' 0'
Width
Bedrooms
41
Depth
Starting at$680.00What's included
STEP 1Bedrooms
STEP 2Bedrooms
STEP 3Bedrooms

Subtotal:$0
BedroomsBest Price Guaranteed
Plan Collection

How much will it cost to build?

Estimate your costs based on your location and materials.

Free Cost Instant Estimator

Floor Plans

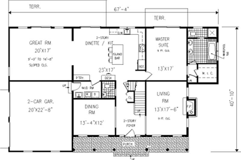
FIRST FLOOR PLAN
FIRST FLOOR PLAN
SECOND FLOOR PLAN
SECOND FLOOR PLAN
Plan Collection

Can I modify this plan?

Yes! This plan can be customized—contact us for a free quote.

House Plan Description

This home's traditional Colonial-style facade features a columned front porch, shuttered windows and five enchanting dormers. Inside, the foyer opens into the formal dining room and living room with a fireplace. The two-story kitchen serves the dinette over a handy island snack bar. The Great Room boasts a volume sloping ceiling. The main-floor master suite enjoys a private terrace and a bath with a dual-sink vanity, a walk-in closet and a garden whirlpool tub. Upstairs, three additional bedrooms share the full hall bath.

Home Details

Summary
Plan #:105-1062
Starting at:$680.00
Floors:2
Bedrooms:4
Full Baths:2
Half Baths:0
Garage:
Square Footage
Heated Area:2717 Sq. Ft.
First Floor:1862 Sq. Ft.
Second Floor:855 Sq. Ft.
Unheated Area:
Garage:467 Sq. Ft.
Dimensions
Architectural Styles
Exterior Wall Material
Wood Siding
Special Feature
FireplaceDining Room
Garage Type
Attached Garage
Exterior Wall Framing
2x4

What’s Included

Most plan sets include the following:

icon text-secondary-400 includedElevations

icon text-secondary-400 includedSections - Include structural design & specifications

icon text-secondary-400 includedKitchen cabinet elevations

icon text-secondary-400 includedFloor Plan

icon text-secondary-400 includedRoof Plan

icon text-secondary-400 includedTypical wall section

icon text-secondary-400 includedConstruction & Specification notes

icon text-secondary-400 includedSpecial detail sections

icon text-secondary-400 includedPlumbing riser diagram

icon text-secondary-400 includedWindow and door sizes

icon text-secondary-400 includedStructural design joists and beams

icon text-secondary-400 includedElectrical Layout

icon text-secondary-400 includedSpecial Notes

What’s Not Included

These items are  NOT included:

icon text-secondary-400 includedArchitectural or Engineering Stamp - handled locally if required.

icon text-secondary-400 includedSite Plan - handled locally when required.

icon text-secondary-400 includedMechanical Drawings (location of heating and air equipment and ductwork) - your subcontractors handle this.

icon text-secondary-400 includedPlumbing Drawings (drawings showing the actual plumbing pipe sizes and locations) - your subcontractors handle this.

icon text-secondary-400 includedFraming layouts with beam sizes and location

icon text-secondary-400 includedEnergy calculations - handled locally when required.

Related House Plans

Plan Collection
Plan Collection
Plan Collection
Plan#169-1035
Starting at$770
2482
Sq Ft
2
Story
4
Bed
2.5
Bath
3
Car
Plan Collection
Plan Collection
Plan Collection
Plan#163-1001
Starting at$1230
2757
Sq Ft
2
Story
4
Bed
2.5
Bath
2
Car
Plan Collection
Plan Collection
Plan Collection
Plan#187-1001
Starting at$1450
3296
Sq Ft
2
Story
4
Bed
2.5
Bath
2
Car
View All

Other Plans By This Designer

Plan Collection
Plan Collection
Plan Collection
Plan#105-1105
Starting at$575
2368
Sq Ft
2
Story
5
Bed
3
Bath
2
Car
Plan Collection
Plan Collection
Plan Collection
Plan#105-1052
Starting at$680
2791
Sq Ft
2
Story
4
Bed
2
Bath
3
Car
Plan Collection
Plan Collection
Plan Collection
Plan#105-1045
Starting at$575
2270
Sq Ft
2
Story
4
Bed
2.5
Bath
2
Car