5-Bedroom, 2690 Sq Ft Ranch Plan with Main Floor Master

Main image for house plan # 13978

Images/Plans copyrighted by designer. Photos may reflect homeowner modifications.

About House Plan #101-1190

Sq Ft
2690
Sq Ft
Bedrooms
5
Bedrooms
Bathroom
2
Baths
Half Baths
0
Half Baths
Bedrooms
3
Cars
Bedrooms
1
Stories
Bedrooms
61' 4'
Width
Bedrooms
50
Depth
Starting at$1025.00What's included
STEP 1Bedrooms
STEP 2Bedrooms
STEP 3Bedrooms

Subtotal:$0
BedroomsBest Price Guaranteed
Plan Collection

How much will it cost to build?

Estimate your costs based on your location and materials.

Free Cost Instant Estimator

Floor Plans

MAIN FLOOR PLAN
MAIN FLOOR PLAN
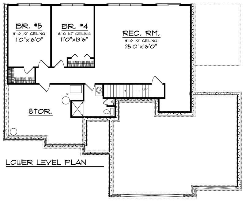
BASEMENT FLOOR PLAN
BASEMENT FLOOR PLAN
Plan Collection

Can I modify this plan?

Yes! This plan can be customized—contact us for a free quote.

House Plan Description

This traditional ranch home features a blend of brick and siding that is attractive yet affordable for today’s homeowner. Upon entering the home, you’ll be impressed with the large living room, its vaulted ceiling and the corner fireplace. The plan opens up to the dining room and kitchen to the right with the bedroom areas off to the left. In the kitchen you’ll enjoy a breakfast bar that flows into the dining room making entertaining easy for any size group. The master bedroom ceiling is unique with its tray ceiling, and you’ll love the spacious bathroom and walk-in closet. Two additional...

Home Details

Summary
Plan #:101-1190
Starting at:$1025.00
Floors:1
Bedrooms:5
Full Baths:2
Half Baths:0
Garage:
Square Footage
Heated Area:2690 Sq. Ft.
First Floor:1552 Sq. Ft.
Unheated Area:
Basement:1138 Sq. Ft.
Dimensions
Width:61' 4''
Architectural Styles
Exterior Wall Material
Vinyl SidingBrick
Roof Pitch
7/12
Ceiling Height
9 Foot Ceiling
Special Feature
FireplaceDining Room
Garage Type
Attached Garage
Exterior Wall Framing
2x6

What’s Included

Most plan sets include the following:

icon text-secondary-400 includedFront, Back & Side Elevations

icon text-secondary-400 includedFloor Plans

icon text-secondary-400 includedElectrical Layout (location of outlets, switches, etc. - it does not have wiring schematics)

icon text-secondary-400 includedRoof Plan (Birdseye view)

icon text-secondary-400 includedFoundation Layout

icon text-secondary-400 includedWall & Stair Sections

icon text-secondary-400 includedCross Section

icon text-secondary-400 includedKitchen Layout

icon text-secondary-400 includedGeneral Notes

What’s Not Included

These items are  NOT included:

icon text-secondary-400 includedArchitectural or Engineering Stamp - handled locally if required.

icon text-secondary-400 includedSite Plan - handled locally when required.

icon text-secondary-400 includedMechanical Drawings (location of heating and air equipment and ductwork) - your subcontractors handle this.

icon text-secondary-400 includedPlumbing Drawings (drawings showing the actual plumbing pipe sizes and locations) - your subcontractors handle this.

icon text-secondary-400 includedFraming layouts with beam sizes and locations.

icon text-secondary-400 includedEnergy calculations - handled locally when required.

Related House Plans

Plan Collection
Plan Collection
Plan Collection
Plan#126-1093
Starting at$1855
2274
Sq Ft
1
Story
5
Bed
2
Bath
0
Car
Plan Collection
Plan Collection
Plan Collection
Plan#125-1047
Starting at$0
2434
Sq Ft
1
Story
5
Bed
2
Bath
3
Car
Plan Collection
Plan Collection
Plan Collection
Plan#101-1377
Starting at$1155
2716
Sq Ft
1
Story
5
Bed
2.5
Bath
3
Car
View All

Other Plans By This Designer

Plan Collection
Plan Collection
Plan Collection
Plan#101-1503
Starting at$1090
2098
Sq Ft
2
Story
4
Bed
2
Bath
2
Car
Plan Collection
Plan Collection
Plan Collection
Plan#101-1028
Starting at$1240
3020
Sq Ft
2
Story
4
Bed
2.5
Bath
3
Car
Plan Collection
Plan Collection
Plan Collection
Plan#101-2024
Starting at$1240
3235
Sq Ft
1
Story
5
Bed
3.5
Bath
3
Car