5-Bedroom, 2434 Sq Ft Ranch Plan with Open Floor Plan

Front elevation of Ranch home (ThePlanCollection: House Plan #125-1047)

Images/Plans copyrighted by designer. Photos may reflect homeowner modifications.

About House Plan #125-1047

Sq Ft
2434
Sq Ft
Bedrooms
5
Bedrooms
Bathroom
2
Baths
Half Baths
0
Half Baths
Bedrooms
3
Cars
Bedrooms
1
Stories
Bedrooms
73' 0'
Width
Bedrooms
67
Depth
Starting at$1825.50What's included
STEP 1Bedrooms
STEP 2Bedrooms
STEP 3Bedrooms

Subtotal:$0
BedroomsBest Price Guaranteed
Plan Collection

How much will it cost to build?

Estimate your costs based on your location and materials.

Free Cost Instant Estimator

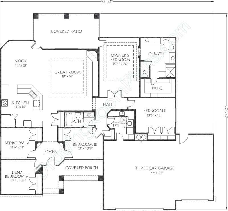
Floor Plans

MAIN FLOOR PLAN
MAIN FLOOR PLAN
Plan Collection

Can I modify this plan?

Yes! This plan can be customized—contact us for a free quote.

House Plan Description

Optional fourth bedroom in place of den. Three car garage.

Home Details

Summary
Plan #:125-1047
Starting at:$1825.50
Floors:1
Bedrooms:5
Full Baths:2
Half Baths:0
Garage:
Square Footage
Heated Area:2434 Sq. Ft.
First Floor:2434 Sq. Ft.
Garage:795 Sq. Ft.
Unheated Area:
Dimensions
Architectural Styles
Exterior Wall Material
StuccoRock/Stone
Roof Pitch
5/12
Ceiling Height
9 Foot Ceiling
Garage Type
Front Entry
Fireplaces
One Fireplace
Exterior Wall Framing
2x4

What’s Included

Most plan sets include the following:

icon text-secondary-400 includedFLOOR PLAN: Showing all dimensions, window and door locations, laminated beams, columns, floor materials, ceiling heights, fireplace size, and specifications.

icon text-secondary-400 includedFOUNDATION PLAN: Dimensioned plan detailing the location and size of footings, slabs, reinforcing steel, and other structural elements that are required to support the load of the upper floors.

icon text-secondary-400 includedELECTRICAL LAYOUT:Specifications, notes, schedules, and plan defining the location of panels, service, lighting fixtures, switches, outlets, fans, etc.

icon text-secondary-400 includedFRONT, REAR, AND SIDE ELEVATIONS:The front, rear, and side elevations of the house as drawn. Shows placement of doors & windows on exterior of house, as well as roof pitches, ridge heights, and locations of chimney, exterior vents, etc. The elevations show the positioning of the final grade of the lot, exterior finishes, and other details that are necessary to give the home exterior architectural styling.

icon text-secondary-400 includedDETAIL SHEET

What’s Not Included

These items are  NOT included:

icon text-secondary-400 includedArchitectural or Engineering Stamp - handled locally if required.

icon text-secondary-400 includedSite Plan - handled locally when required.

icon text-secondary-400 includedMechanical Drawings (location of heating and air equipment and ductwork) - your subcontractors handle this.

icon text-secondary-400 includedPlumbing Drawings (drawings showing the actual plumbing pipe sizes and locations) - your subcontractors handle this.

icon text-secondary-400 includedEnergy calculations - handled locally when required.

Related House Plans

Plan Collection
Plan Collection
Plan Collection
Plan#125-1007
Starting at$0
2745
Sq Ft
1
Story
5
Bed
2.5
Bath
3
Car
Plan Collection
Plan Collection
Plan Collection
Plan#101-1190
Starting at$1025
2690
Sq Ft
1
Story
5
Bed
2
Bath
3
Car
Plan Collection
Plan Collection
Plan Collection
Plan#145-1099
Starting at$1000
2606
Sq Ft
1
Story
5
Bed
2
Bath
3
Car
View All

Other Plans By This Designer

Plan Collection
Plan Collection
Plan Collection
Plan#125-1043
Starting at$0
1812
Sq Ft
1
Story
4
Bed
2
Bath
3
Car
Plan Collection
Plan Collection
Plan Collection
Plan#125-1033
Starting at$0
3667
Sq Ft
1
Story
5
Bed
4.5
Bath
3
Car
Plan Collection
Plan Collection
Plan Collection
Plan#125-1002
Starting at$0
2051
Sq Ft
1
Story
4
Bed
3
Bath
3
Car