2-Bedroom, 2615 Sq Ft Concrete Block/ ICF Design Plan with Outdoor Kitchen

Front Elevation of this Concrete Block/ ICF Design House (#132-1352) at The Plan Collection.

Images/Plans copyrighted by designer. Photos may reflect homeowner modifications.

About House Plan #132-1352

Sq Ft
2615
Sq Ft
Bedrooms
2
Bedrooms
Bathroom
2
Baths
Half Baths
0
Half Baths
Bedrooms
3
Cars
Bedrooms
2
Stories
Bedrooms
85' 8'
Width
Bedrooms
47
Depth
Starting at$1480.00What's included
STEP 1Bedrooms
STEP 2Bedrooms
STEP 3Bedrooms

Subtotal:$0
BedroomsBest Price Guaranteed
Plan Collection

How much will it cost to build?

Estimate your costs based on your location and materials.

Free Cost Instant Estimator

Floor Plans

MAIN FLOOR OPTION
MAIN FLOOR OPTION
LOFT FLOOR PLAN
LOFT FLOOR PLAN
Plan Collection

Can I modify this plan?

Yes! This plan can be customized—contact us for a free quote.

Additional Notes from Designer

PLEASE NOTE! The CAD - Unlimited package is NOT an unlimited license - it is a license to build up to 5 homes. ATTENTION! Printed sets can ONLY be sent via ground shipping. NO priority or express shipping is available. ATTENTION! Printed sets can ONLY be sent by ground - NO priority or express shipping on printed sets!

House Plan Description

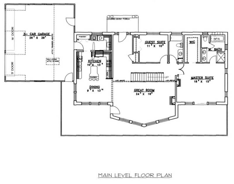
*Insulated Concrete Form Construction *3-Car Garage *Raised Eating Bar In Kitchen *Pantry *Guest Room *Large Great Room With Fireplace *Large Walk-In Closet In Master Suite *Fireplace In Master Suite *Double Sinks In Master Bathroom *Spa In Master Bathroom *Covered Entry Porch *Loft

Home Details

Summary
Plan #:132-1352
Starting at:$1480.00
Floors:2
Bedrooms:2
Full Baths:2
Half Baths:0
Garage:
Square Footage
Heated Area:2615 Sq. Ft.
First Floor:1827 Sq. Ft.
Second Floor:330 Sq. Ft.
Unheated Area:
Bonus Room:458 Sq. Ft.
Garage:804 Sq. Ft.
Dimensions
Width:85' 8''
Depth:47' 6''
Ridge Height:25'5' 0''
Architectural Styles
Exterior Wall Material
Vinyl SidingBrickShakes
Roof Pitch
10/12
Ceiling Height
9 Foot Ceiling8 Foot Ceiling
Special Feature
FireplaceGuest Room
Garage Type
Attached Garage
Fireplaces
Two Fireplaces
Master Suite Features
Fireplace in Master

What’s Included

Most plan sets include the following:

icon text-secondary-400 includedExterior elevations: shows the home on all four sides, calls out exterior finishes, rooflines, window and door locations.

icon text-secondary-400 includedFloor plans: includes interior and exterior dimensions, window/door schedule, wall framing details.

icon text-secondary-400 includedFoundation plan: shows footing, stem wall, and slab placement, including all connection details.

icon text-secondary-400 includedFloor and roof framing plans show truss/rafter placements, including all beams/connection details.

icon text-secondary-400 includedCross-sections: cut-through view of the structure from roof to foundation, shows framing, plate heights, insulation, etc.

icon text-secondary-400 includedElectrical layout

icon text-secondary-400 includedGeneral notes/details to cover the entirety of the project

What’s Not Included

These items are  NOT included:

icon text-secondary-400 includedArchitectural or Engineering Stamp - handled locally if required.

icon text-secondary-400 includedSite Plan - handled locally when required.

icon text-secondary-400 includedMechanical Drawings (location of heating and air equipment and ductwork) - your subcontractors handle this.

icon text-secondary-400 includedPlumbing Drawings (drawings showing the actual plumbing pipe sizes and locations) - your subcontractors handle this.

icon text-secondary-400 includedEnergy calculations - handled locally when required.

Related House Plans

Plan Collection
Plan Collection
Plan Collection
Plan#132-1186
Starting at$1370
2051
Sq Ft
2
Story
2
Bed
2
Bath
0
Car
Plan Collection
Plan Collection
Plan Collection
Plan#108-1550
Starting at$845
1987
Sq Ft
2
Story
2
Bed
2.5
Bath
1
Car
Plan Collection
Plan Collection
Plan Collection
Plan#132-1602
Starting at$1480
2231
Sq Ft
2
Story
2
Bed
2
Bath
2
Car
View All

Other Plans By This Designer

Plan Collection
Plan Collection
Plan Collection
Plan#132-1694
Starting at$1370
1920
Sq Ft
2
Story
3
Bed
3
Bath
3
Car
Plan Collection
Plan Collection
Plan Collection
Plan#132-1697
Starting at$1370
1176
Sq Ft
1
Story
2
Bed
2
Bath
0
Car
Plan Collection
Plan Collection
Plan Collection
Plan#132-1107
Starting at$1205
689
Sq Ft
1
Story
1
Bed
1
Bath
0
Car