Estimate your costs based on your location and materials.
Yes! This plan can be customized—contact us for a free quote.


Yes! This plan can be customized—contact us for a free quote.
On some plans, Basement Foundations, Walkout Basement Foundations, & 2x6 Conversions could take up to ONE WEEK to produce. Materials Lists could take up to FOUR WEEKS to produce and they will be for the ORIGINAL plan! Any modifications will NOT be reflected on the Materials List. NOTE FROM DESIGNER: If you purchase a CAD, you will automatically receive the unlimited build license - no need to purchase separately!
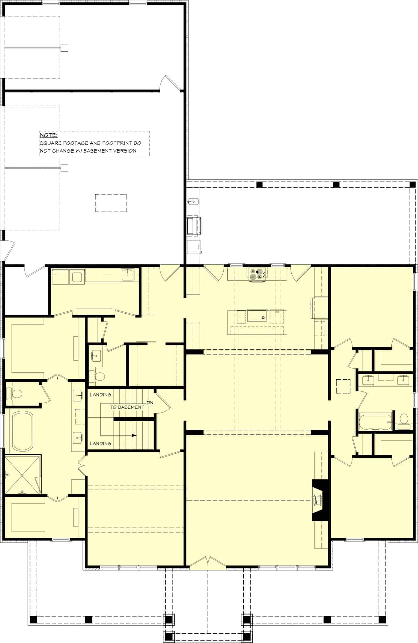
Experience timeless appeal in this 3-Bedroom, 2,494 Sq Ft Modern Farmhouse plan with outdoor kitchen. Designed with Southern cottage charm, this home offers 3 bedrooms, 2.5 baths, and a private home office. A vaulted great room with fireplace anchors the open floor plan, flowing seamlessly into the dining area and island kitchen with a walk-in pantry.
Enjoy outdoor living with a semi-wraparound front porch and an expansive rear porch featuring a fully equipped outdoor kitchen—ideal for entertaining. The private main suite includes a spacious bath and...
Estimate your costs based on your location and materials.
All sales of house plans, modifications, and other products found on this site are final. No refunds or exchanges can be given once your order has begun the fulfillment process. Please see our Policies for additional information.
All plans offered on ThePlanCollection.com are designed to conform to the local building codes when and where the original plan was drawn.
The homes as shown in photographs and renderings may differ from the actual blueprints. For more detailed information, please review the floor plan images herein carefully.
Estimate your costs based on your location and materials.











