Estimate your costs based on your location and materials.
Yes! This plan can be customized—contact us for a free quote.


Yes! This plan can be customized—contact us for a free quote.
Please Note: The plans by this designer DO NOT include electrical plans or electrical layout plans. NOTE: If you are building this home in Washington State, please contact us BEFORE placing your order!
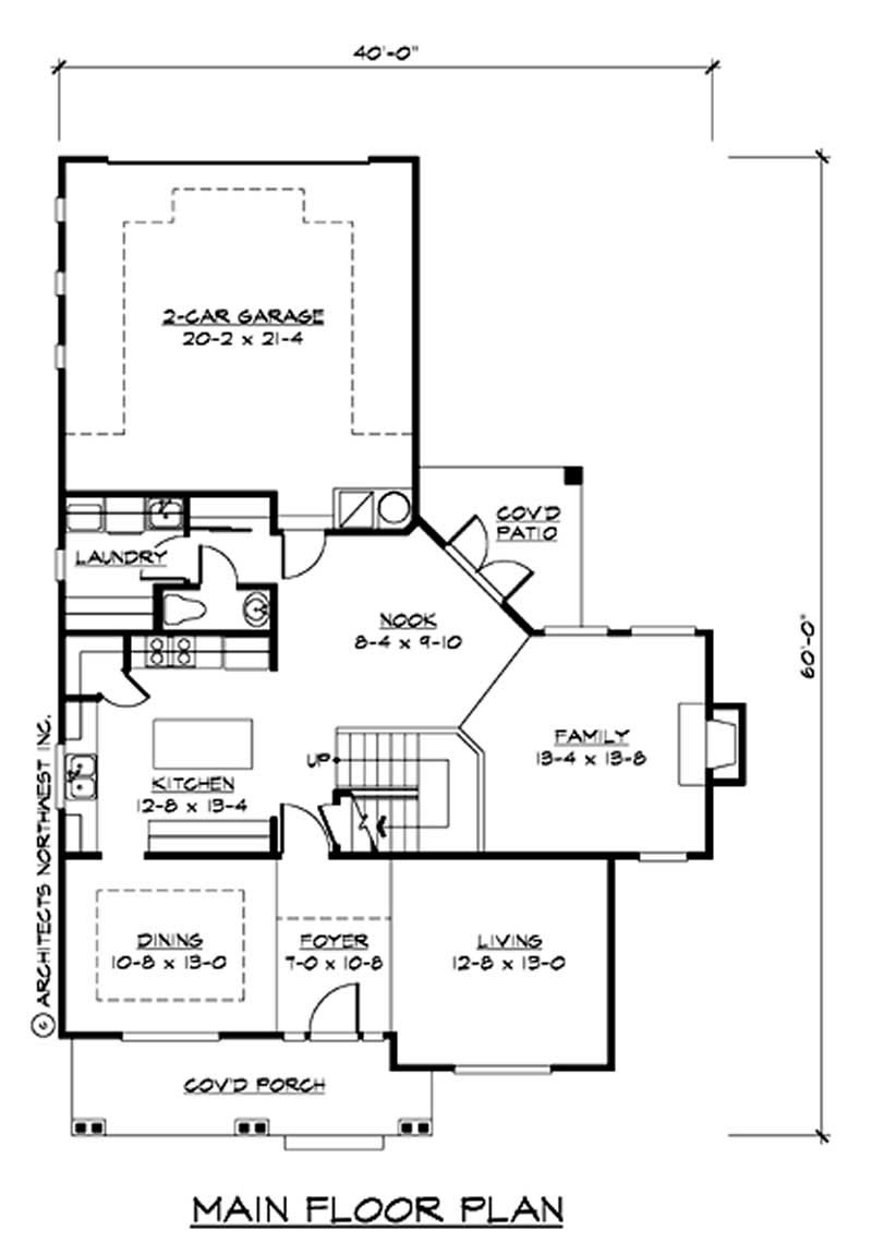
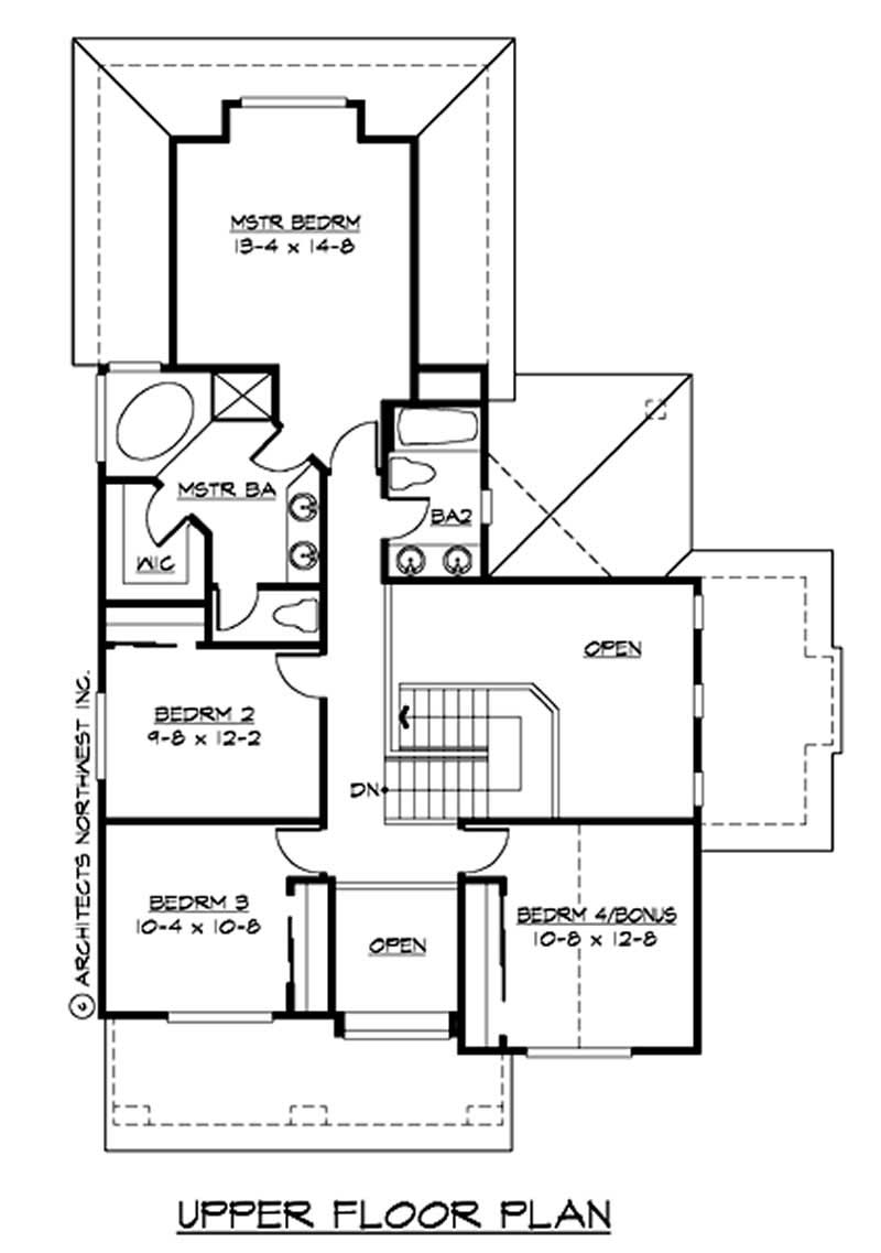
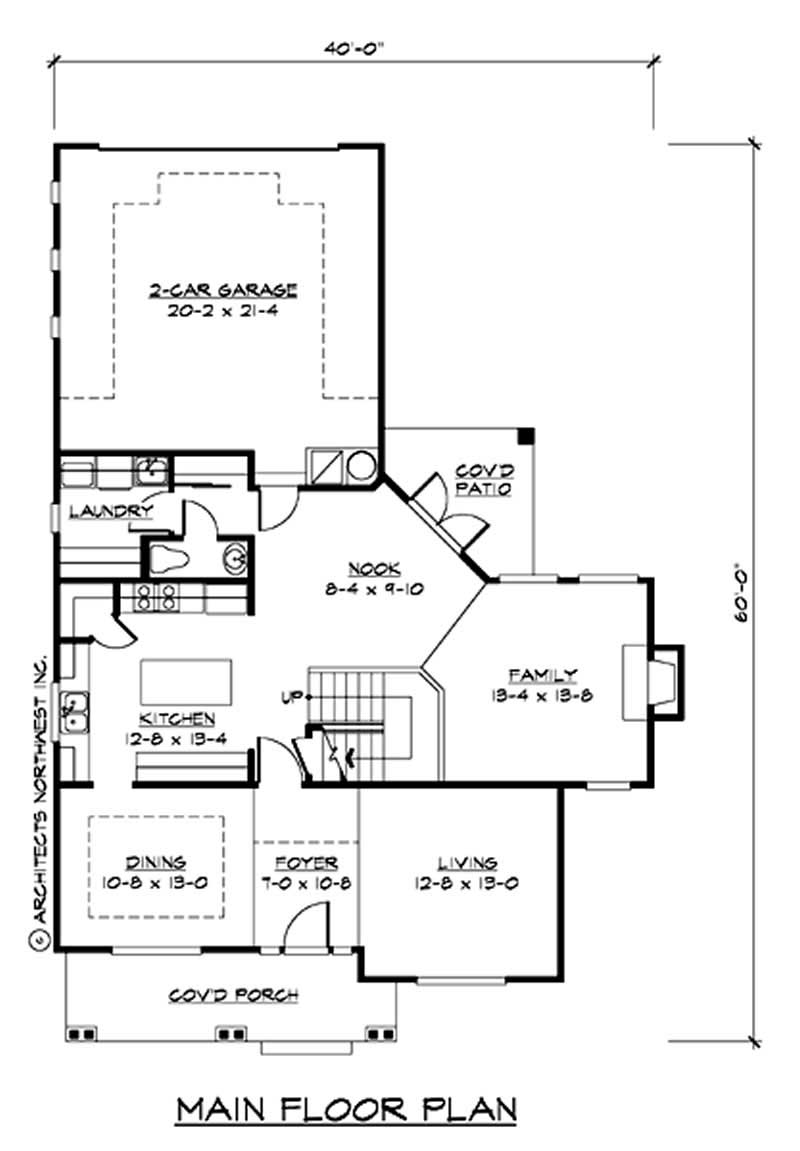
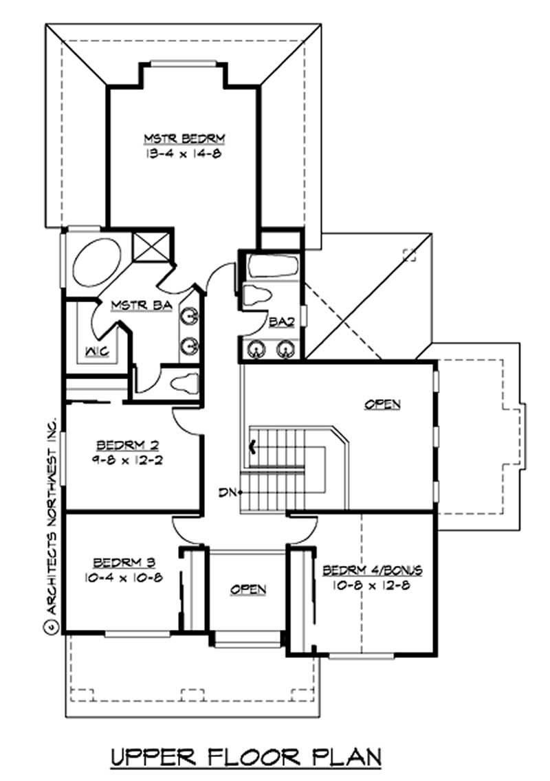
This beautiful and amazing housplan has a nice open floor plan feel to it. The kitchen provides plenty of room for cooking and entertaining guests. In the kitchen you have a nice nook oft that has french doors leading out to a covered patio. The family room has an enjoyable fireplace located in the room. Everything in this floorplan is very open and allows easy access from room to room. The laundry room is located just as you enter into the home through the garage for your convenience.
Estimate your costs based on your location and materials.
All sales of house plans, modifications, and other products found on this site are final. No refunds or exchanges can be given once your order has begun the fulfillment process. Please see our Policies for additional information.
All plans offered on ThePlanCollection.com are designed to conform to the local building codes when and where the original plan was drawn.
The homes as shown in photographs and renderings may differ from the actual blueprints. For more detailed information, please review the floor plan images herein carefully.
Estimate your costs based on your location and materials.



