Estimate your costs based on your location and materials.
Yes! This plan can be customized—contact us for a free quote.


Yes! This plan can be customized—contact us for a free quote.
When ordering RRR, please know that it could take an additional 2-3 business days to complete BEFORE your order is sent out, regardless of the package ordered.
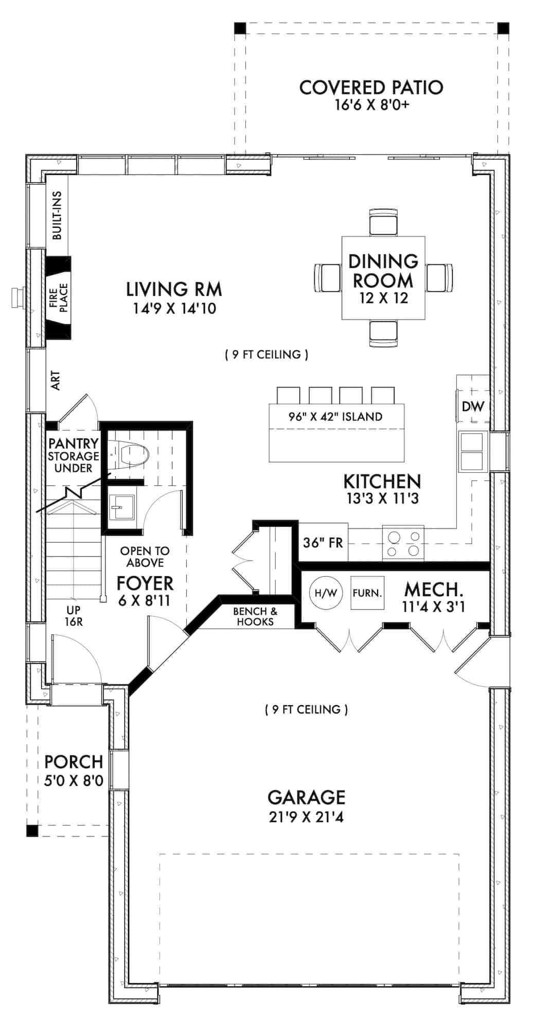
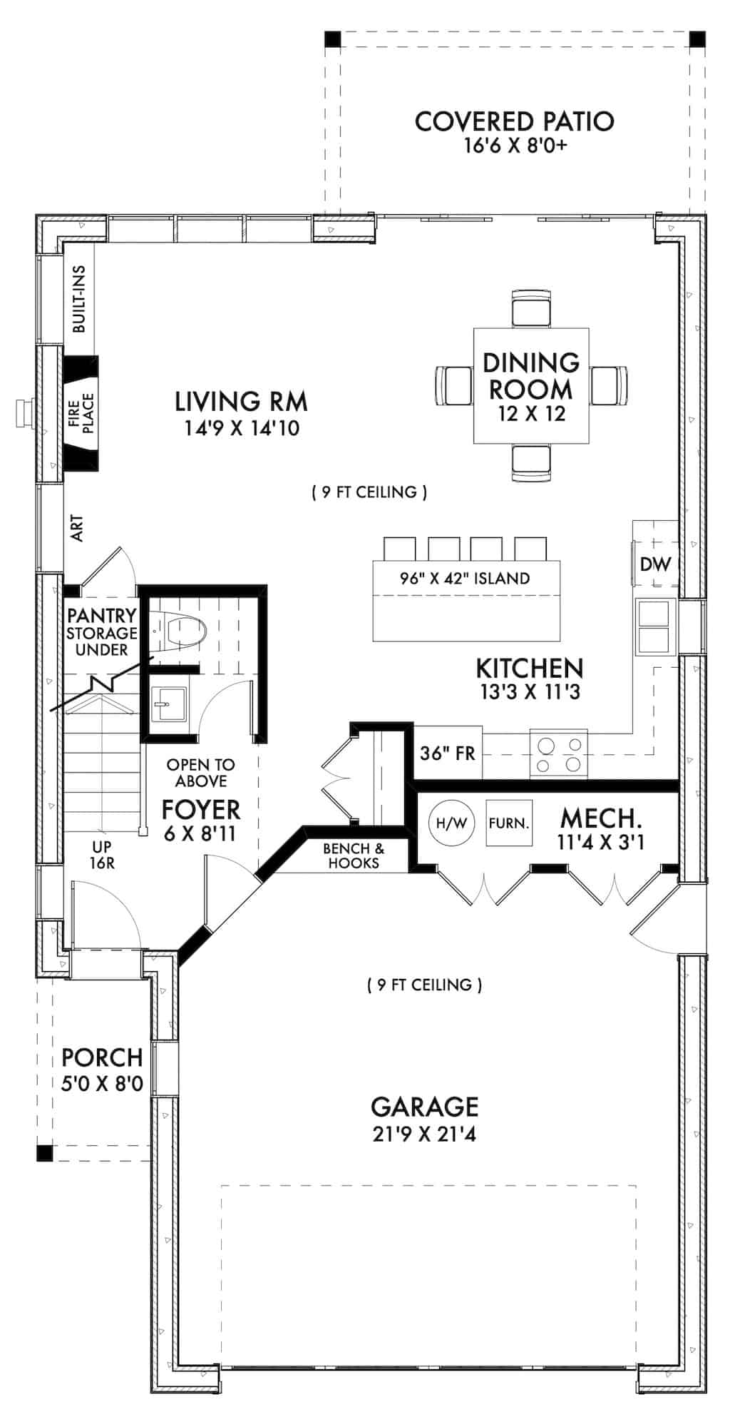
Come and see this exciting new floor plan! When you enter this home, this Farmhouse style home boasts an open floor plan, the first living area which would be perfect for a sitting room or any other desirable bonus space! This elegant 2-story floor plan has 1834 square feet of heated and cooled living space and include adorable amenities that you'll enjoy such as:
• Fireplace in the living room
• Walk-in kitchen pantry
• Powder room for the guest's convenience
• Lots of storage...
Estimate your costs based on your location and materials.
All sales of house plans, modifications, and other products found on this site are final. No refunds or exchanges can be given once your order has begun the fulfillment process. Please see our Policies for additional information.
All plans offered on ThePlanCollection.com are designed to conform to the local building codes when and where the original plan was drawn.
The homes as shown in photographs and renderings may differ from the actual blueprints. For more detailed information, please review the floor plan images herein carefully.
Estimate your costs based on your location and materials.






