Estimate your costs based on your location and materials.
Yes! This plan can be customized—contact us for a free quote.

Yes! This plan can be customized—contact us for a free quote.
PLEASE NOTE: This designer's 5 sets, 8 sets & CADs all come with a PDF as well.
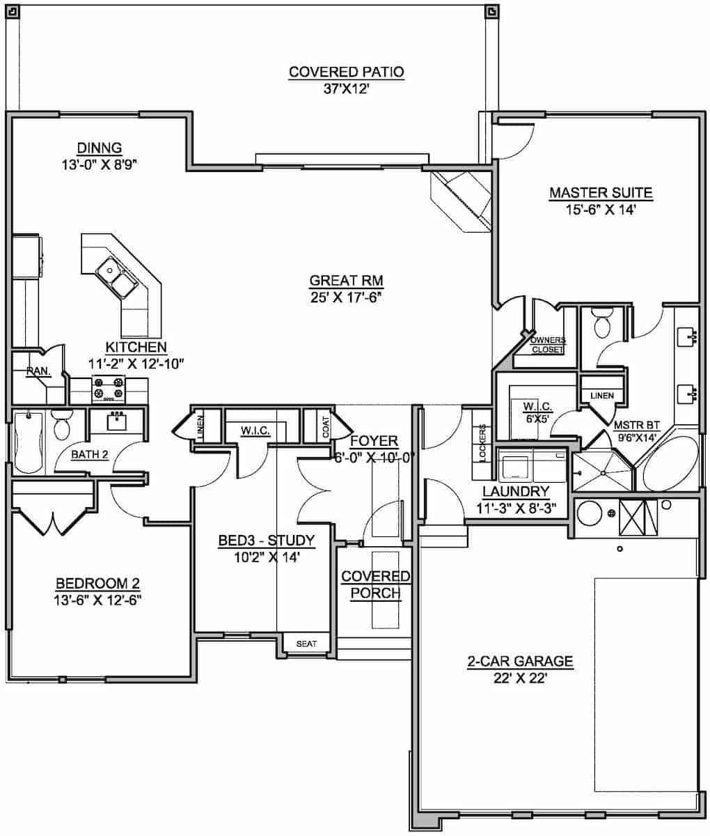
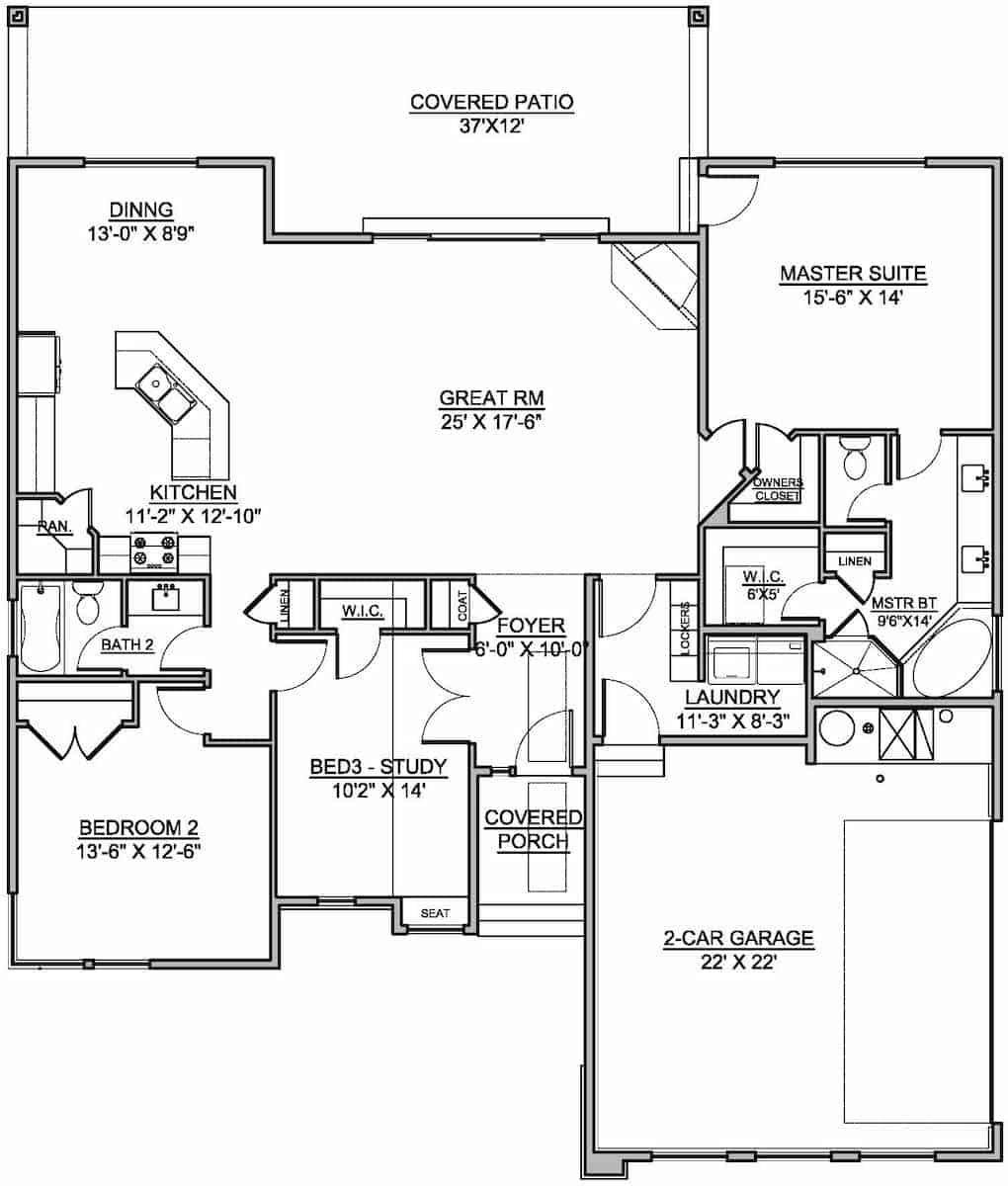
Vaulted ceilings can be found in almost every room. The interior peak of the Great Room vault is 15’-1”. The interior peak of the primary bedroom is 11’-8”.
Easy living and relaxing could be the theme for this Contemporary style home with California Style traits that exudes a very cool and laid-back ambiance. The exterior and interior of the home project a homey yet practical vibe – exemplified by the open floor and split-bedroom layout – that's just perfect for a growing family. The beautiful 1-story home's floor plan has 1791 square feet of heated-cooled living space and includes 3 bedrooms. Estimate your costs based on your location and materials.Home Details
How much will it cost to build?
All sales of house plans, modifications, and other products found on this site are final. No refunds or exchanges can be given once your order has begun the fulfillment process. Please see our Policies for additional information.
All plans offered on ThePlanCollection.com are designed to conform to the local building codes when and where the original plan was drawn.
The homes as shown in photographs and renderings may differ from the actual blueprints. For more detailed information, please review the floor plan images herein carefully.
Estimate your costs based on your location and materials.





