2-Bedroom, 1607 Sq Ft Vacation Homes Plan with Covered Front Porch

Front Elevation of this Vacation Homes House (#132-1506) at The Plan Collection.

Images/Plans copyrighted by designer. Photos may reflect homeowner modifications.

About House Plan #132-1506

Sq Ft
1607
Sq Ft
Bedrooms
2
Bedrooms
Bathroom
2
Baths
Half Baths
0
Half Baths
Bedrooms
2
Cars
Bedrooms
1
Stories
Bedrooms
42' 0'
Width
Bedrooms
80
Depth
Starting at$1370.00What's included
STEP 1Bedrooms
STEP 2Bedrooms
STEP 3Bedrooms

Subtotal:$0
BedroomsBest Price Guaranteed
Plan Collection

How much will it cost to build?

Estimate your costs based on your location and materials.

Free Cost Instant Estimator

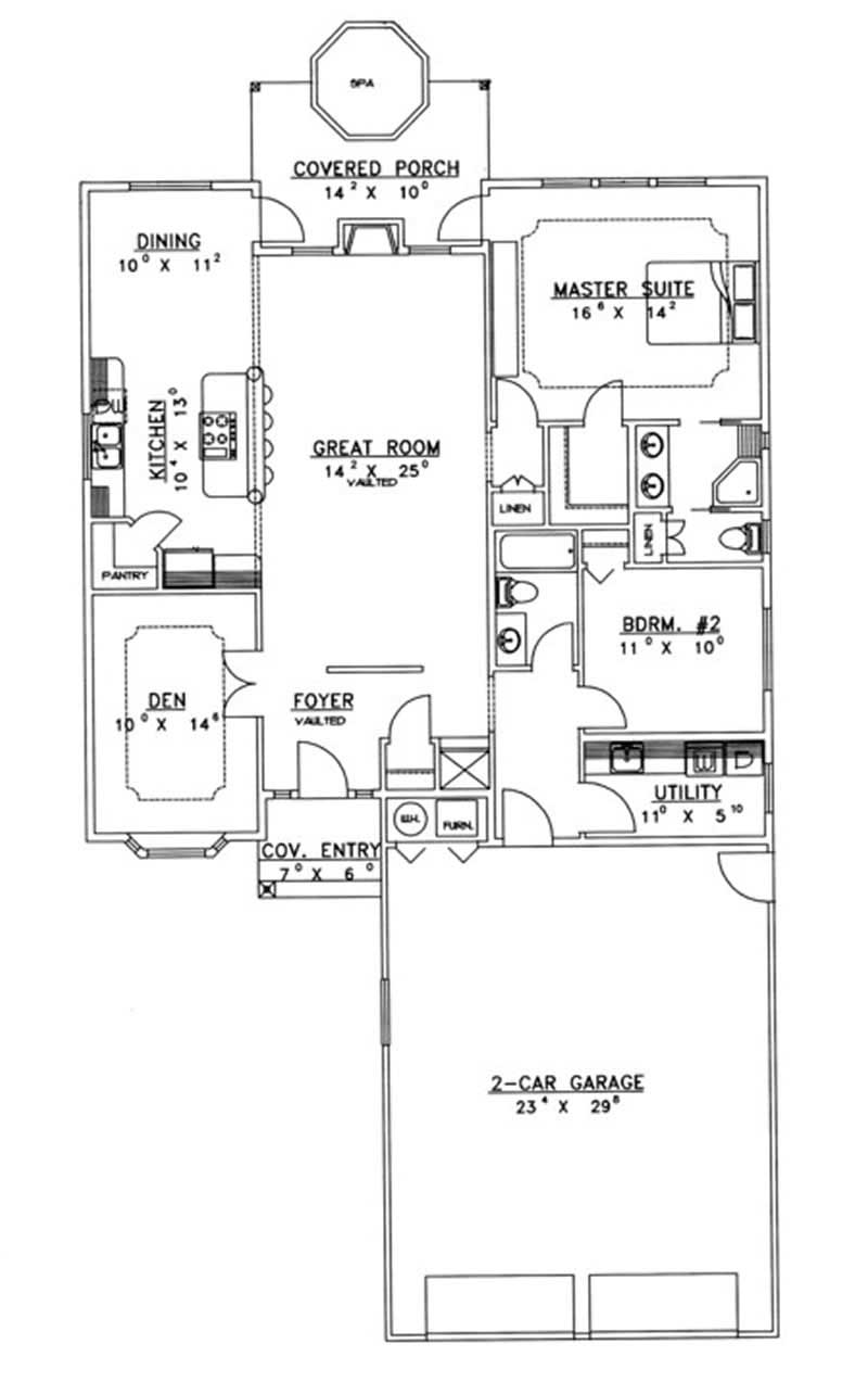
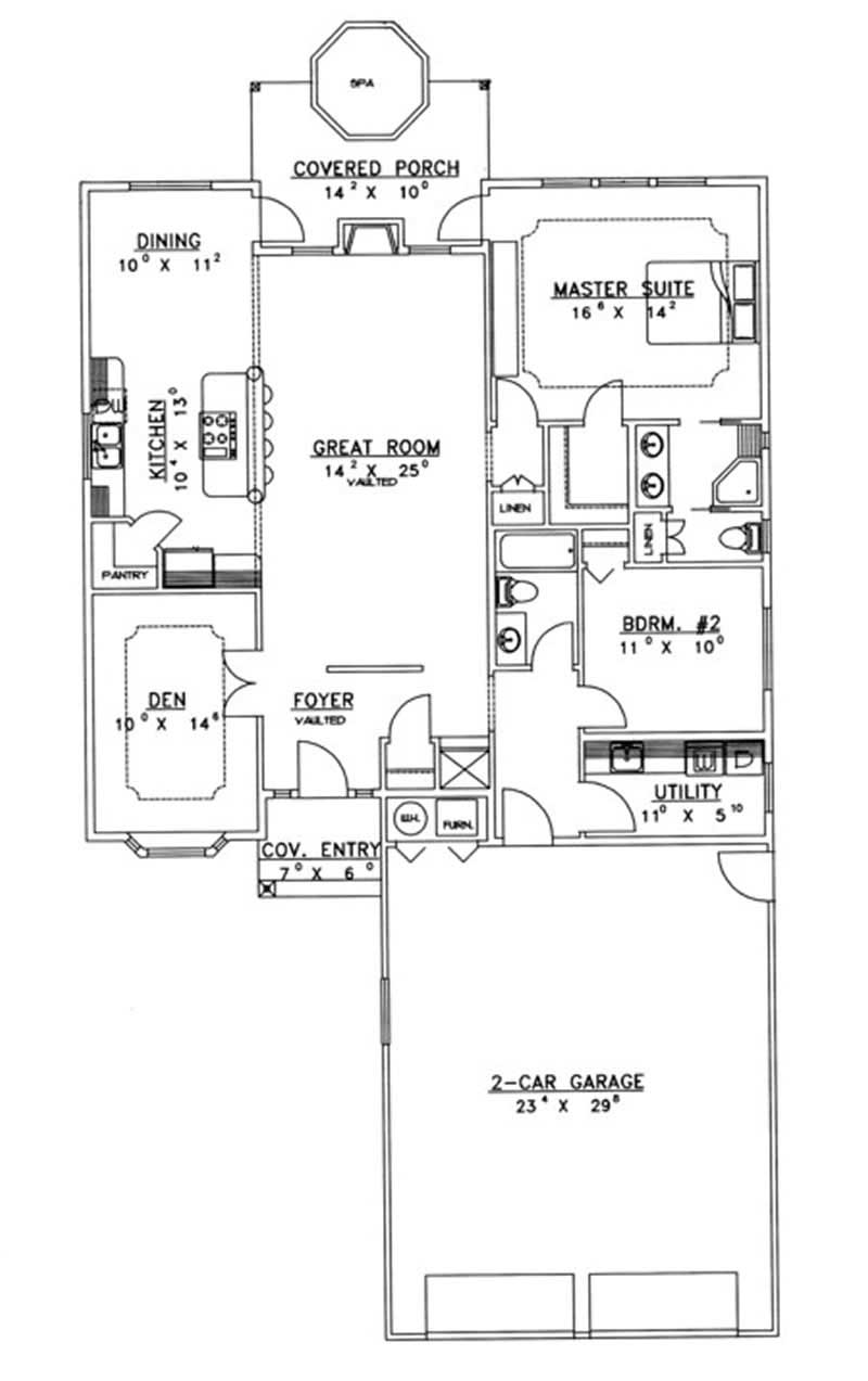
Floor Plans

FLOOR PLAN
FLOOR PLAN
Plan Collection

Can I modify this plan?

Yes! This plan can be customized—contact us for a free quote.

Additional Notes from Designer

PLEASE NOTE! The CAD - Unlimited package is NOT an unlimited license - it is a license to build up to 5 homes. ATTENTION! Printed sets can ONLY be sent via ground shipping. NO priority or express shipping is available. ATTENTION! Printed sets can ONLY be sent by ground - NO priority or express shipping on printed sets!

House Plan Description

*Standard Frame Construction *Beach/Coastal Style *1 Floor *Spa *Covered Porch *Den *Vaulted Foyer *Covered Entry *Utility Room *2 Car Garage

Home Details

Summary
Plan #:132-1506
Starting at:$1370.00
Floors:1
Bedrooms:2
Full Baths:2
Half Baths:0
Garage:
Square Footage
Heated Area:1607 Sq. Ft.
First Floor:1607 Sq. Ft.
Unheated Area:
Dimensions
Ridge Height:20-1' 0''
Architectural Styles
Exterior Wall Material
Wood Siding
Roof Pitch
6/12
Ceiling Height
9 Foot Ceiling
Garage Type
Attached Garage
Exterior Wall Framing
2x6
Building Lot Type
Narrow Lot Design

What’s Included

Most plan sets include the following:

icon text-secondary-400 includedExterior elevations: shows the home on all four sides, calls out exterior finishes, rooflines, window and door locations.

icon text-secondary-400 includedFloor plans: includes interior and exterior dimensions, window/door schedule, wall framing details.

icon text-secondary-400 includedFoundation plan: shows footing, stem wall, and slab placement, including all connection details.

icon text-secondary-400 includedFloor and roof framing plans show truss/rafter placements, including all beams/connection details.

icon text-secondary-400 includedCross-sections: cut-through view of the structure from roof to foundation, shows framing, plate heights, insulation, etc.

icon text-secondary-400 includedElectrical layout

icon text-secondary-400 includedGeneral notes/details to cover the entirety of the project

What’s Not Included

These items are  NOT included:

icon text-secondary-400 includedArchitectural or Engineering Stamp - handled locally if required.

icon text-secondary-400 includedSite Plan - handled locally when required.

icon text-secondary-400 includedMechanical Drawings (location of heating and air equipment and ductwork) - your subcontractors handle this.

icon text-secondary-400 includedPlumbing Drawings (drawings showing the actual plumbing pipe sizes and locations) - your subcontractors handle this.

icon text-secondary-400 includedEnergy calculations - handled locally when required.

Related House Plans

Plan Collection
Plan Collection
Plan Collection
Plan#138-1003
Starting at$1050
1922
Sq Ft
1
Story
2
Bed
2
Bath
1
Car
Plan Collection
Plan Collection
Plan Collection
Plan#108-1612
Starting at$690
1321
Sq Ft
1
Story
2
Bed
2
Bath
1
Car
Plan Collection
Plan Collection
Plan Collection
Plan#142-1263
Starting at$1345
1252
Sq Ft
1
Story
2
Bed
2
Bath
0
Car
View All

Other Plans By This Designer

Plan Collection
Plan Collection
Plan Collection
Plan#132-1107
Starting at$1205
689
Sq Ft
1
Story
1
Bed
1
Bath
0
Car
Plan Collection
Plan Collection
Plan Collection
Plan#132-1694
Starting at$1370
1920
Sq Ft
2
Story
3
Bed
3
Bath
3
Car
Plan Collection
Plan Collection
Plan Collection
Plan#132-1709
Starting at$1480
3391
Sq Ft
2
Story
3
Bed
3.5
Bath
0
Car