Estimate your costs based on your location and materials.
Yes! This plan can be customized—contact us for a free quote.


Yes! This plan can be customized—contact us for a free quote.
PLEASE NOTE! This designer's plans do NOT come with framing!
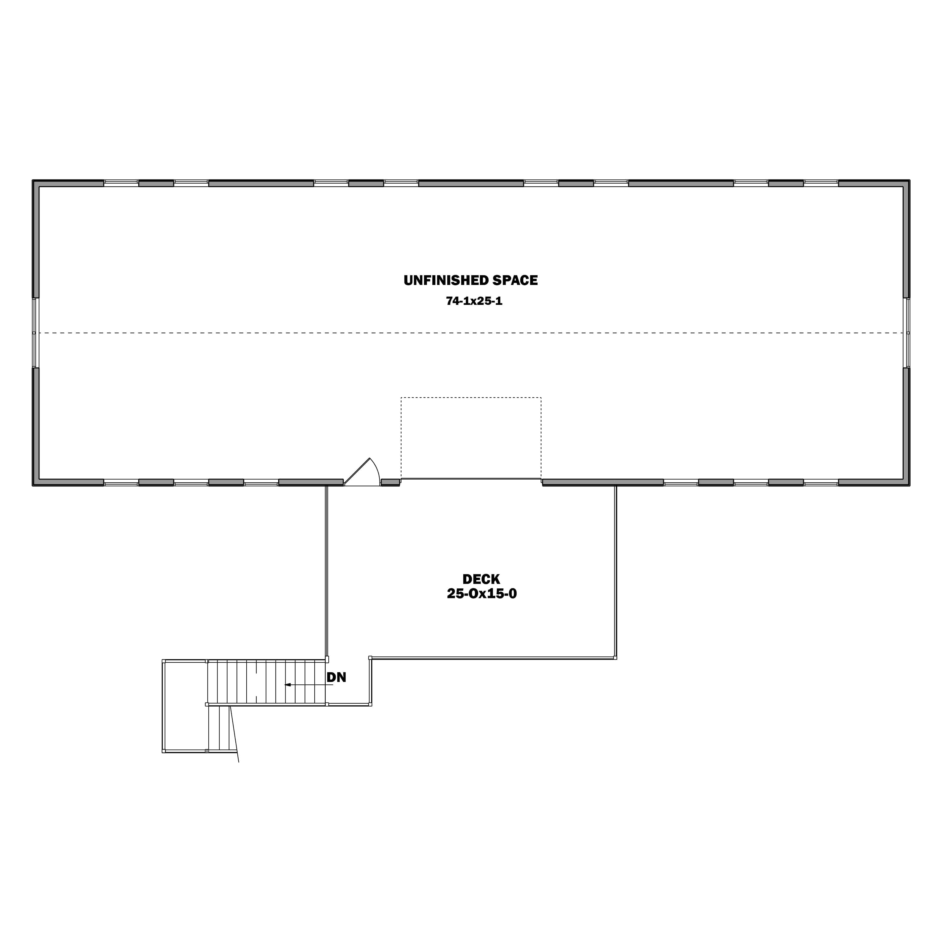
Deck has 375 sq ft.
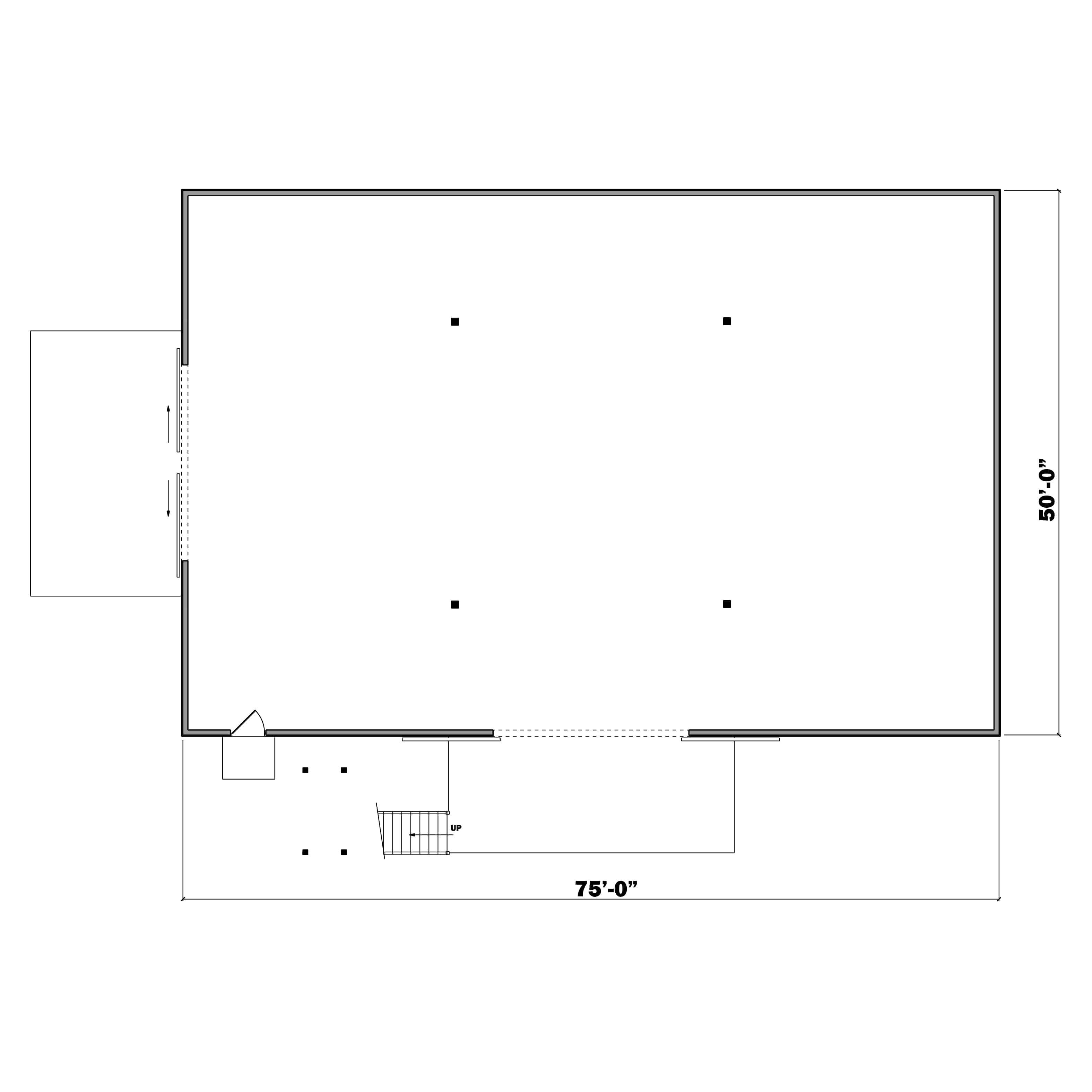
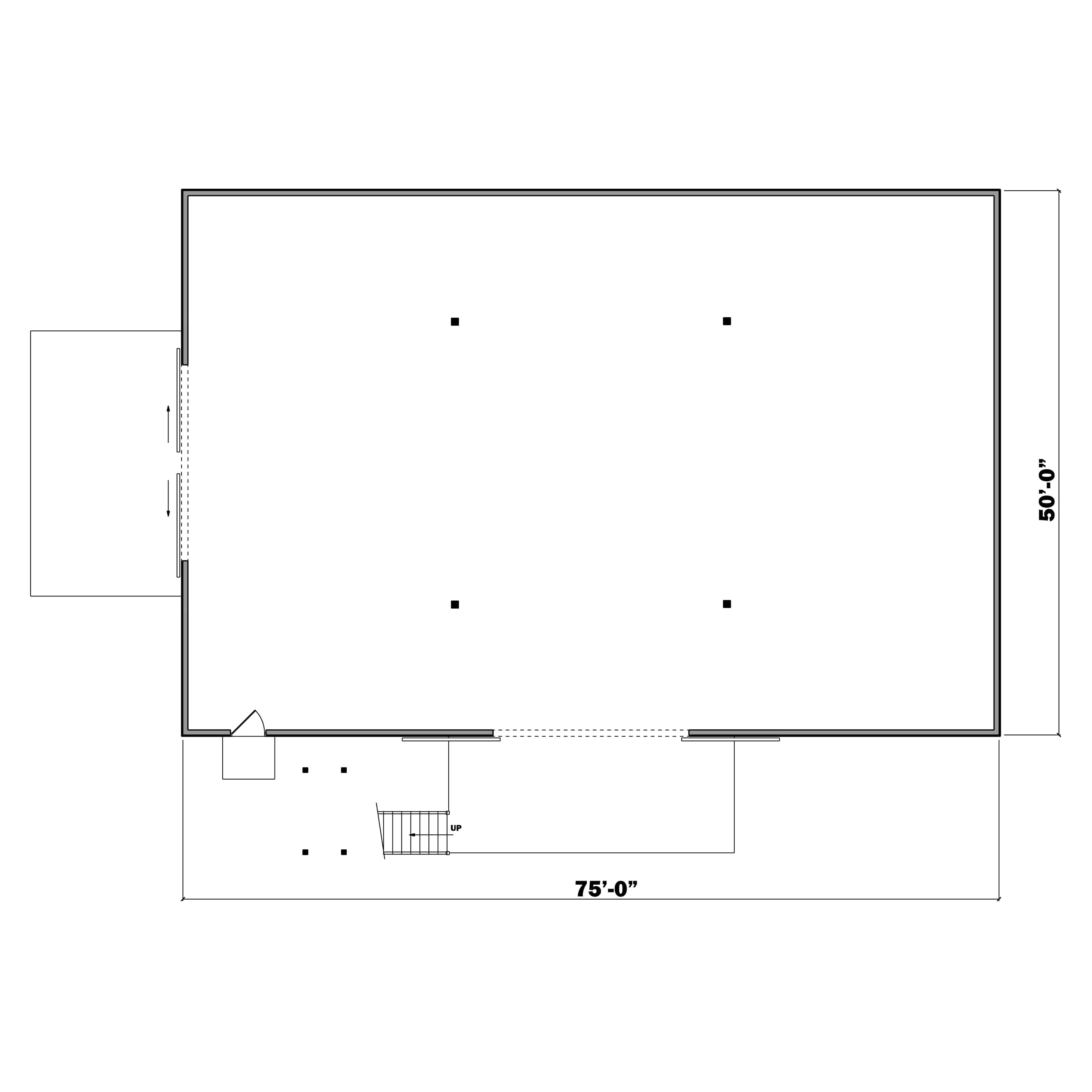
This stylish 2-story barndominium is worth a closer look! With 5700 square feet of unfinished space, you can truly make this your own. The first floor has 2 large barn doors, easy for tractor equipment, cars, or horses to get in and out. Or maybe you want the first floor for a workshop? The second floor is just waiting for you to finish it as your own - keep it as storage or make it your home above your workshop. With a lovely deck off the second floor, it would be a great place to relax. The first floor has 14'3" ceiling height and the second floor has 8'.
Estimate your costs based on your location and materials.
All sales of house plans, modifications, and other products found on this site are final. No refunds or exchanges can be given once your order has begun the fulfillment process. Please see our Policies for additional information.
All plans offered on ThePlanCollection.com are designed to conform to the local building codes when and where the original plan was drawn.
The homes as shown in photographs and renderings may differ from the actual blueprints. For more detailed information, please review the floor plan images herein carefully.
Estimate your costs based on your location and materials.


