4-Bedroom, 4937 Sq Ft Mediterranean Plan with Nook/Breakfast Area

Mediterranean House Plans rendering.

Images/Plans copyrighted by designer. Photos may reflect homeowner modifications.

About House Plan #134-1376

Sq Ft
4937
Sq Ft
Bedrooms
4
Bedrooms
Bathroom
6
Baths
Half Baths
3
Half Baths
Bedrooms
4
Cars
Bedrooms
2
Stories
Bedrooms
79' 0'
Width
Bedrooms
97
Depth
Starting at$11848.80What's included
STEP 1Bedrooms
STEP 2Bedrooms
STEP 3Bedrooms

Subtotal:$0
BedroomsBest Price Guaranteed
Plan Collection

How much will it cost to build?

Estimate your costs based on your location and materials.

Free Cost Instant Estimator

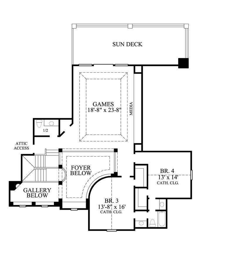
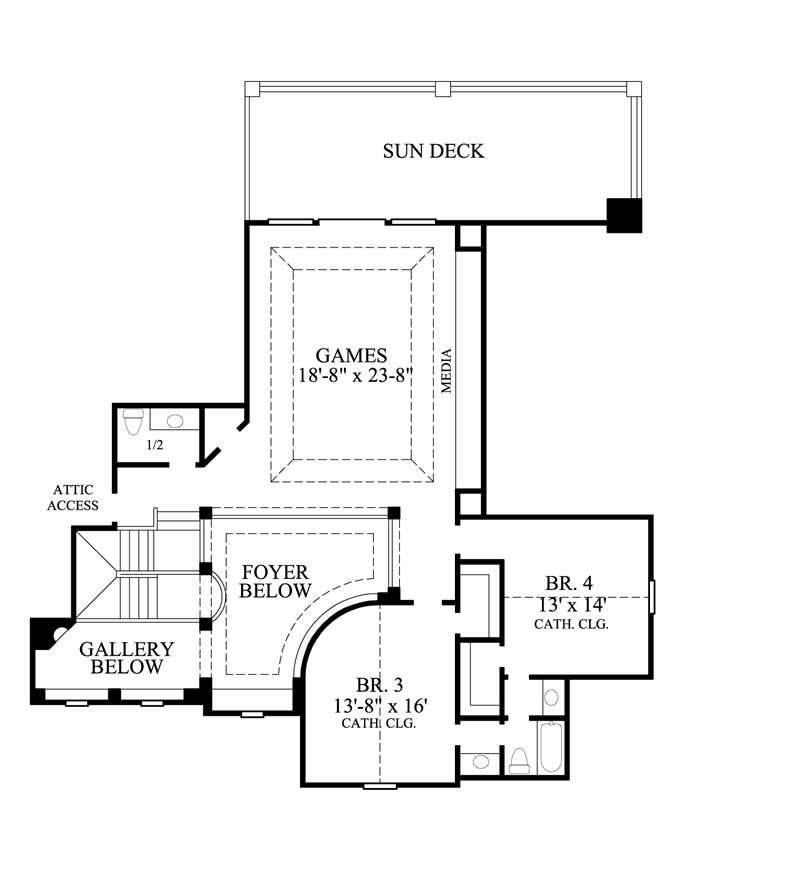
Floor Plans

FLOOR PLAN SECOND STORY
FLOOR PLAN SECOND STORY
FLOOR PLAN SECOND STORY
FLOOR PLAN SECOND STORY
Plan Collection

Can I modify this plan?

Yes! This plan can be customized—contact us for a free quote.

House Plan Description

Mediterranean Home Plans GMLD-937 have a beautiful Mediterranean style. These plans have functional designs and a beautiful exterior. They are great for any type of family.

Home Details

Summary
Plan #:134-1376
Starting at:$11848.80
Floors:2
Bedrooms:4
Full Baths:6
Half Baths:3
Garage:
Square Footage
Heated Area:4937 Sq. Ft.
First Floor:3610 Sq. Ft.
Second Floor:1325 Sq. Ft.
Unheated Area:
Dimensions
Architectural Styles
Ceiling Height
10 Foot Ceiling9 Foot Ceiling
Special Feature
Dining RoomGame RoomMain Level LaundryStorageWorkshop
Garage Type
Attached GarageCourtyard Entry
Exterior Wall Framing
2x4
Kitchen Features
Kitchen IslandPeninsula/Eating Bar
Porches and Exterior Features
CourtyardSundeck
Master Suite Features
Main Floor MasterMaster BathroomWalk In Closet

What’s Included

Most plan sets include the following:

icon text-secondary-400 included1/4 scale elevations

icon text-secondary-400 includedFully dimensioned floor plans

icon text-secondary-400 includedFoundation footprint

icon text-secondary-400 includedRoof plan and section details

What’s Not Included

These items are  NOT included:

icon text-secondary-400 includedArchitectural or Engineering Stamp - handled locally if required.

icon text-secondary-400 includedSite Plan - handled locally when required.

icon text-secondary-400 includedMechanical Drawings (location of heating and air equipment and ductwork) - your subcontractors handle this.

icon text-secondary-400 includedPlumbing Drawings (drawings showing the actual plumbing pipe sizes and locations) - your subcontractors handle this.

icon text-secondary-400 includedEnergy calculations - handled locally when required.

Related House Plans

Plan Collection
Plan Collection
Plan Collection
Plan#134-1373
Starting at$0
4932
Sq Ft
2
Story
4
Bed
6.5
Bath
3
Car
Plan Collection
Plan Collection
Plan Collection
Plan#134-1289
Starting at$0
5314
Sq Ft
2
Story
4
Bed
6.5
Bath
4
Car
Plan Collection
Plan Collection
Plan Collection
Plan#107-1180
Starting at$1900
5789
Sq Ft
2
Story
4
Bed
6.5
Bath
3
Car
View All

Other Plans By This Designer

Plan Collection
Plan Collection
Plan Collection
Plan#134-1365
Starting at$0
9166
Sq Ft
2
Story
6
Bed
6.5
Bath
5
Car
Plan Collection
Plan Collection
Plan Collection
Plan#134-1355
Starting at$0
8617
Sq Ft
2
Story
5
Bed
5.5
Bath
3
Car
Plan Collection
Plan Collection
Plan Collection
Plan#134-1374
Starting at$0
4964
Sq Ft
2
Story
4
Bed
6.5
Bath
3
Car