Estimate your costs based on your location and materials.
Yes! This plan can be customized—contact us for a free quote.


Yes! This plan can be customized—contact us for a free quote.
PLEASE NOTE! If you order an optional foundation and a materials list, the materials list will NOT include the optional foundation, only the standard foundation. The designer can provide an updated materials list for a fee, so please ask for a quote! ATTENTION! All CAD orders include a PDF
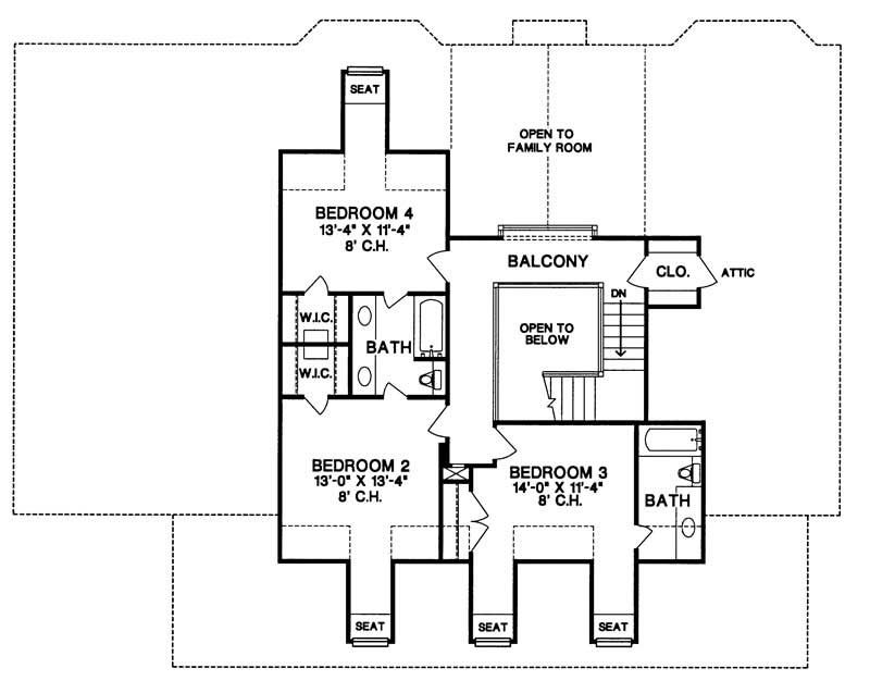
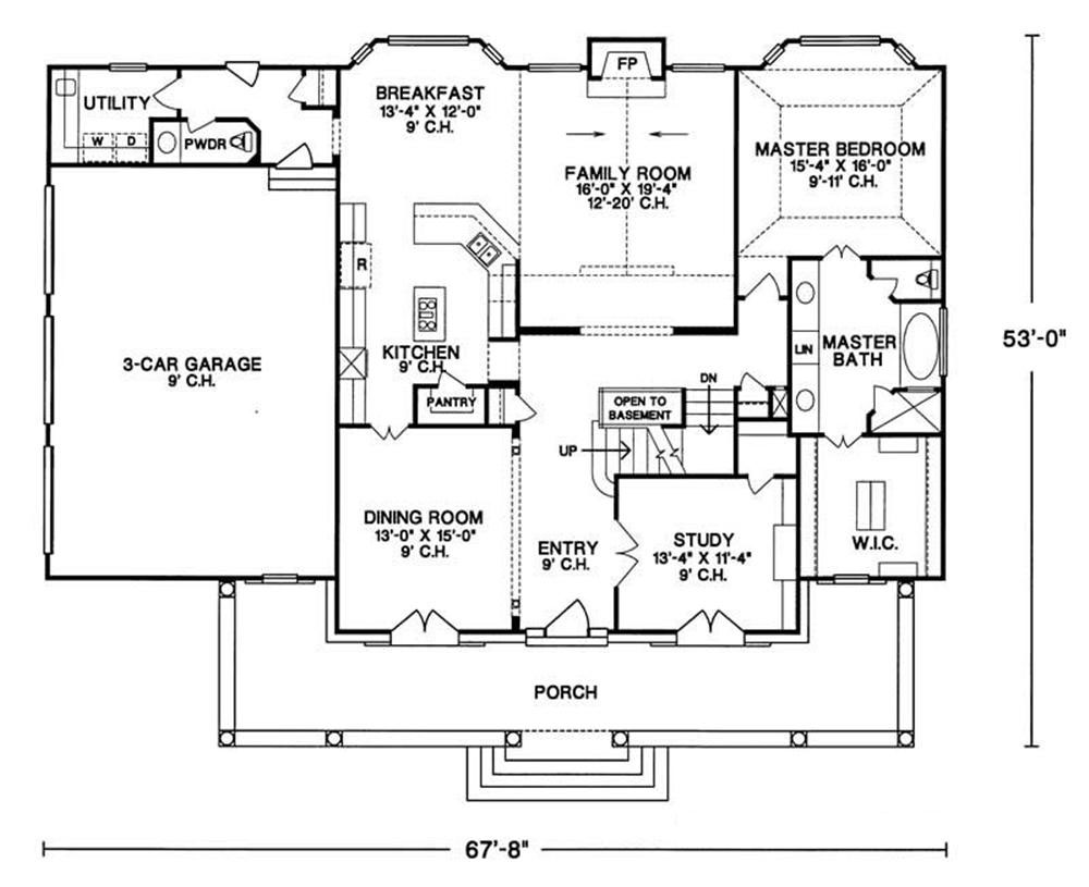
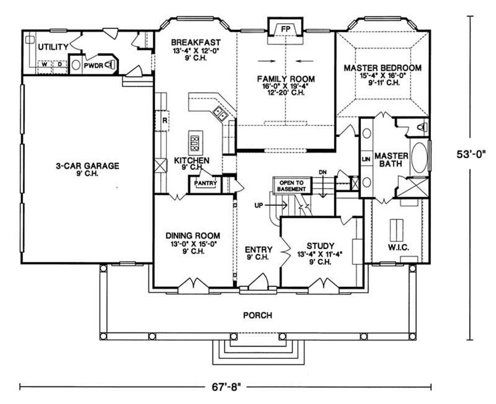
Nothing says "home" quite like this comfortable two story country style house plan. This house plan, with 3072 square feet of total living area, is sure to have a space for everyone. A central focus is sure to be the fireplace in the vaulted family room or the adjoining breakfast nook. Everyone can have their own feeling of space, with ceilings ranging from 9-20 feet high. And the large covered front porch provides a place for everyone to enjoy a pleasant summer evening together.
Estimate your costs based on your location and materials.
All sales of house plans, modifications, and other products found on this site are final. No refunds or exchanges can be given once your order has begun the fulfillment process. Please see our Policies for additional information.
All plans offered on ThePlanCollection.com are designed to conform to the local building codes when and where the original plan was drawn.
The homes as shown in photographs and renderings may differ from the actual blueprints. For more detailed information, please review the floor plan images herein carefully.
Estimate your costs based on your location and materials.


















