Estimate your costs based on your location and materials.
Yes! This plan can be customized—contact us for a free quote.



Yes! This plan can be customized—contact us for a free quote.
NO Material lists.
First floor ceilings: 10 feet; Optional second floor / bonus room (in-law suite) ceilings: 9 feet; Optional walk-out basement ceilings: 9 feet.
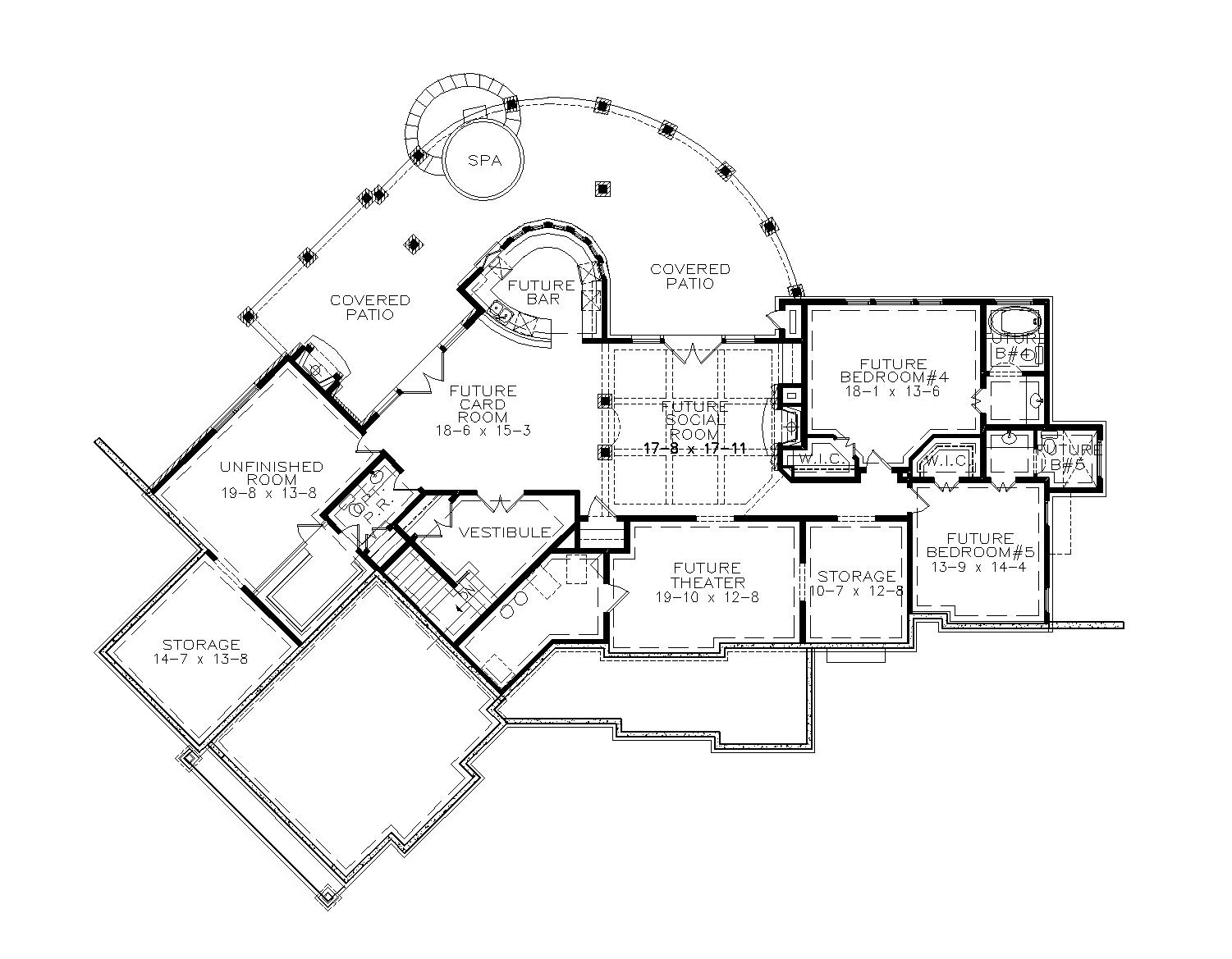
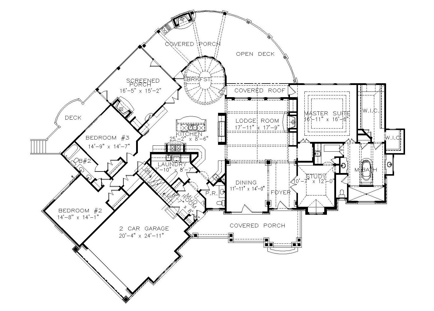
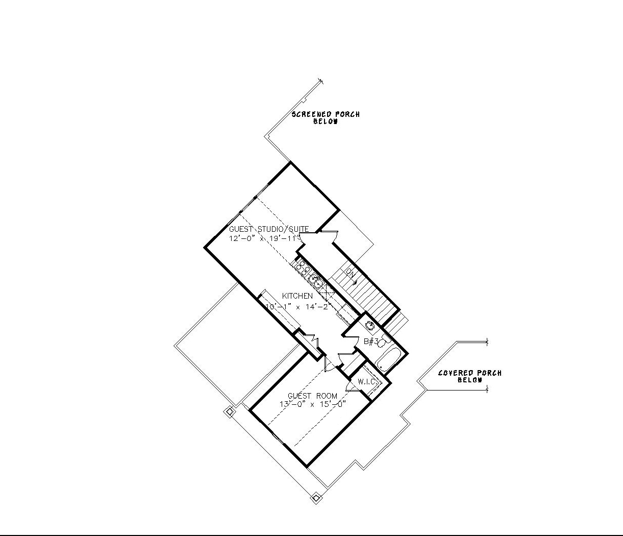
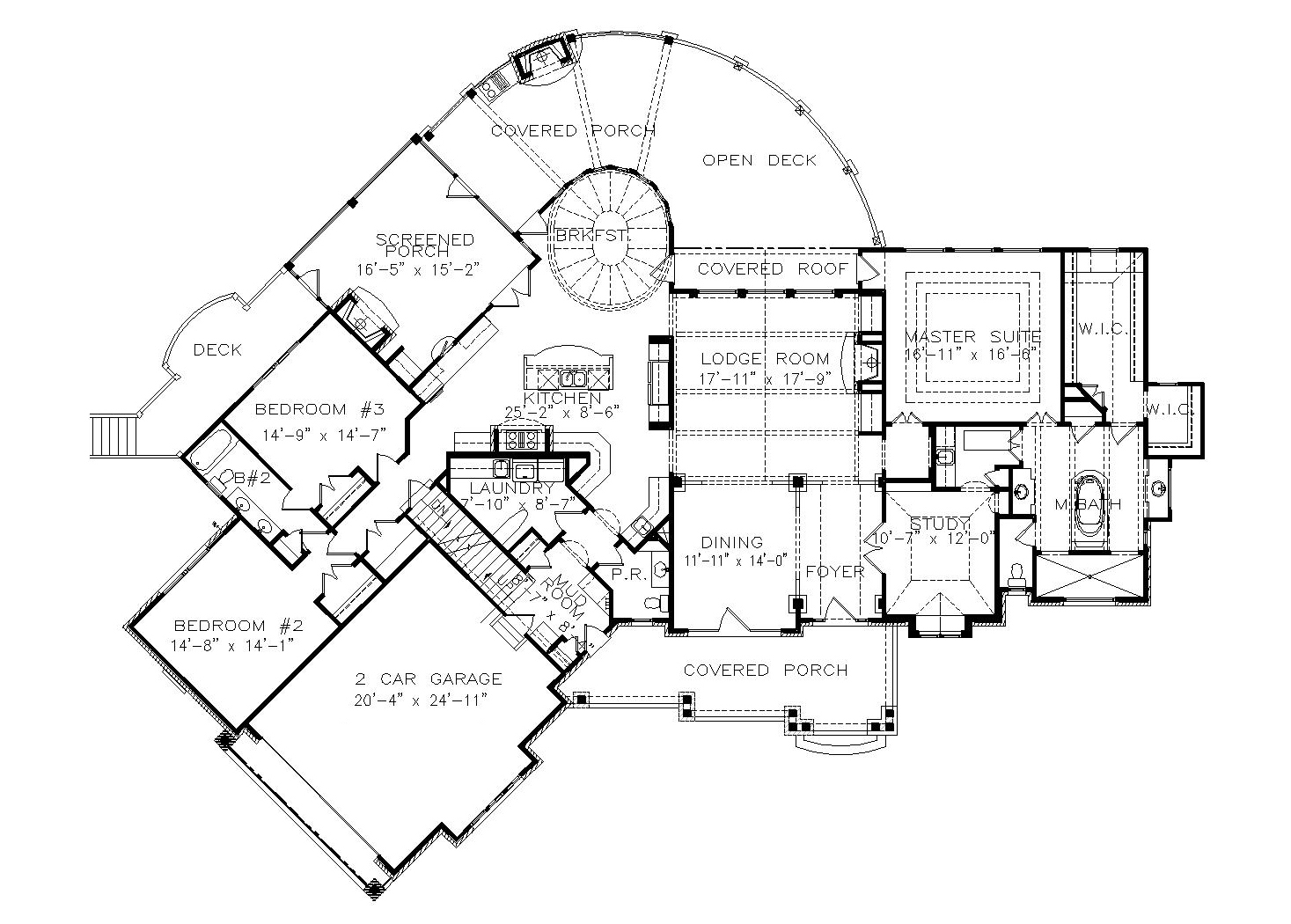
This awe-inspiring Rustic Craftsman house plan boasts smart and creative design inside and out (Plan# 198-1001). Outside, the home's curb appeal will stop neighbors in their tracks. A mixture of shakes, rock and stone come together to give the home an enchanting look.
Step inside to the foyer and the expertly designed floor plan can be truly appreciated. To the left is the dining room and to the right is the study. Continue ahead into the lodge room where exposed beams and a large stone fireplace bring the entire space together. Off the lodge room is the chef's...
Estimate your costs based on your location and materials.
All sales of house plans, modifications, and other products found on this site are final. No refunds or exchanges can be given once your order has begun the fulfillment process. Please see our Policies for additional information.
All plans offered on ThePlanCollection.com are designed to conform to the local building codes when and where the original plan was drawn.
The homes as shown in photographs and renderings may differ from the actual blueprints. For more detailed information, please review the floor plan images herein carefully.
Estimate your costs based on your location and materials.





















