Estimate your costs based on your location and materials.
Yes! This plan can be customized—contact us for a free quote.


Yes! This plan can be customized—contact us for a free quote.
Please Note! This designer does NOT ship paper copies to Canada. Please order your plans in electronic format (PDF or CAD)! USDA Approval is available for this plan. If interested, submit a modification request for a free quote. What is USDA Approval? Certification that a particular house plan meets the housing requirements of the US Department of Agriculture's Rural Housing Service. This is one of the requirements if you intend to apply for a loan through the Rural Housing Service.
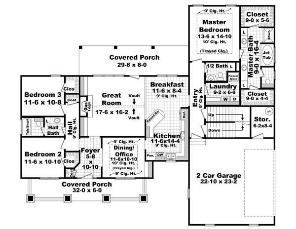
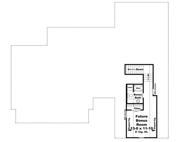
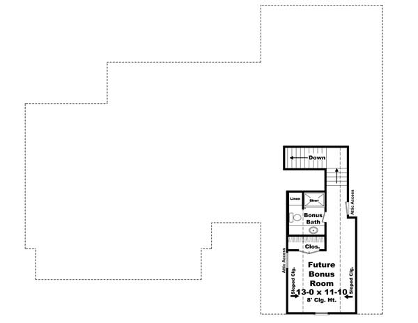
Looking for the plan that has it all? Then look no further. This home is packed with all the features that you've always wanted, all around 1900 s.f. A foyer, formal dining room, and half bath are all extras that you would expect to find in a much larger home. The great room includes vaulted ceilings, built-in cabinets and a gas log fireplace. The kitchen is well-equipped and is located within close proximity to the breakfast area, dining room, and garage entrance. The master suite includes a trayed ceiling, dual lavatories, compartmented toilet, whirlpool tub, separate shower, and his...
Estimate your costs based on your location and materials.
All sales of house plans, modifications, and other products found on this site are final. No refunds or exchanges can be given once your order has begun the fulfillment process. Please see our Policies for additional information.
All plans offered on ThePlanCollection.com are designed to conform to the local building codes when and where the original plan was drawn.
The homes as shown in photographs and renderings may differ from the actual blueprints. For more detailed information, please review the floor plan images herein carefully.
Estimate your costs based on your location and materials.




