Estimate your costs based on your location and materials.
Yes! This plan can be customized—contact us for a free quote.


Yes! This plan can be customized—contact us for a free quote.
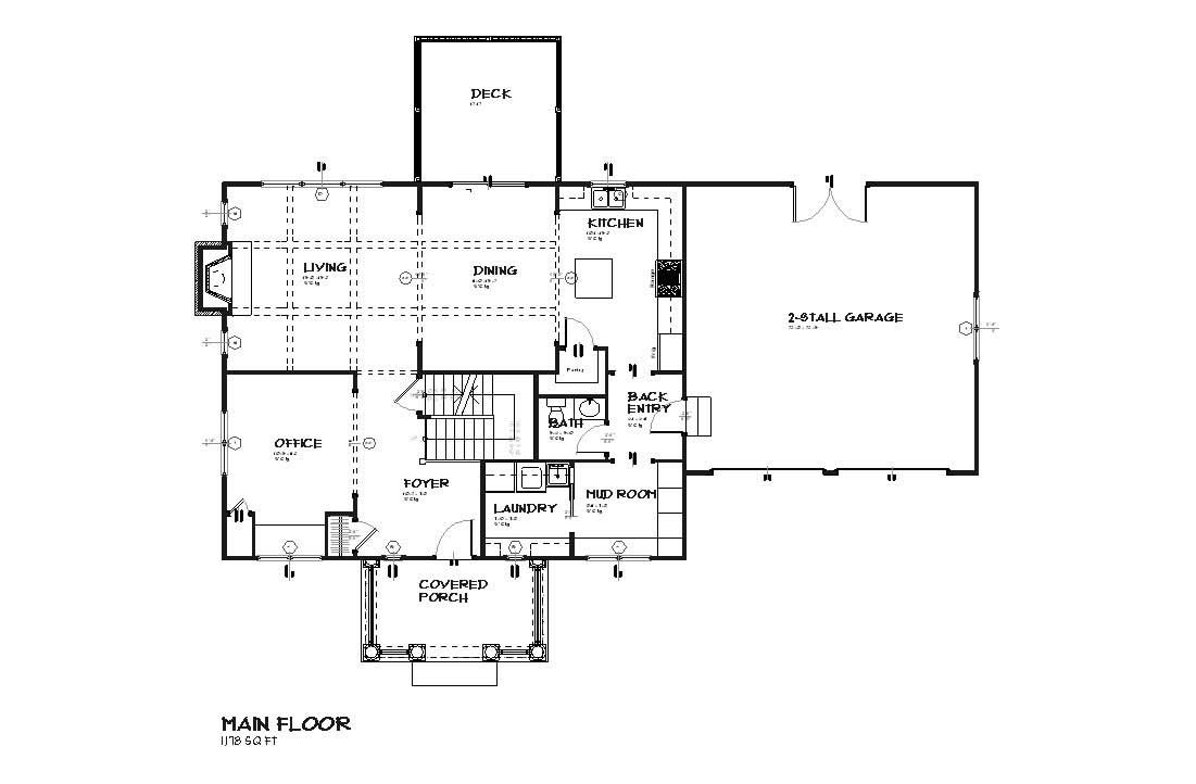
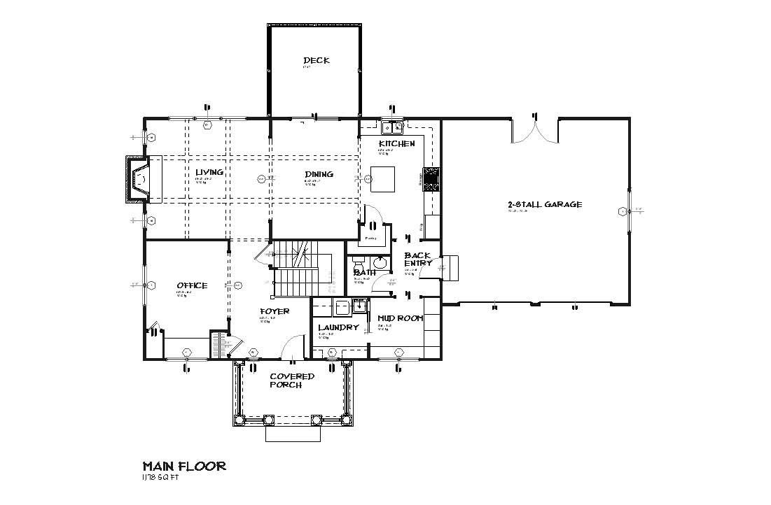
The large foyer open to the staircase is welcoming for guests. The home office complete with built-in and window seat is set apart from the rest of the home. Kitchen, Dining, and living rooms are centered on the fireplace near the rear of the home. Spacious mudroom with lockers and bench are great for storage, with laundry and bath filling the back entry. On the second story the kids study is located between the two additional bedrooms. A master suite with large closet and separated master bath provides privacy and comfort.
Estimate your costs based on your location and materials.
All sales of house plans, modifications, and other products found on this site are final. No refunds or exchanges can be given once your order has begun the fulfillment process. Please see our Policies for additional information.
All plans offered on ThePlanCollection.com are designed to conform to the local building codes when and where the original plan was drawn.
The homes as shown in photographs and renderings may differ from the actual blueprints. For more detailed information, please review the floor plan images herein carefully.
Estimate your costs based on your location and materials.



