Estimate your costs based on your location and materials.
Yes! This plan can be customized—contact us for a free quote.


Yes! This plan can be customized—contact us for a free quote.
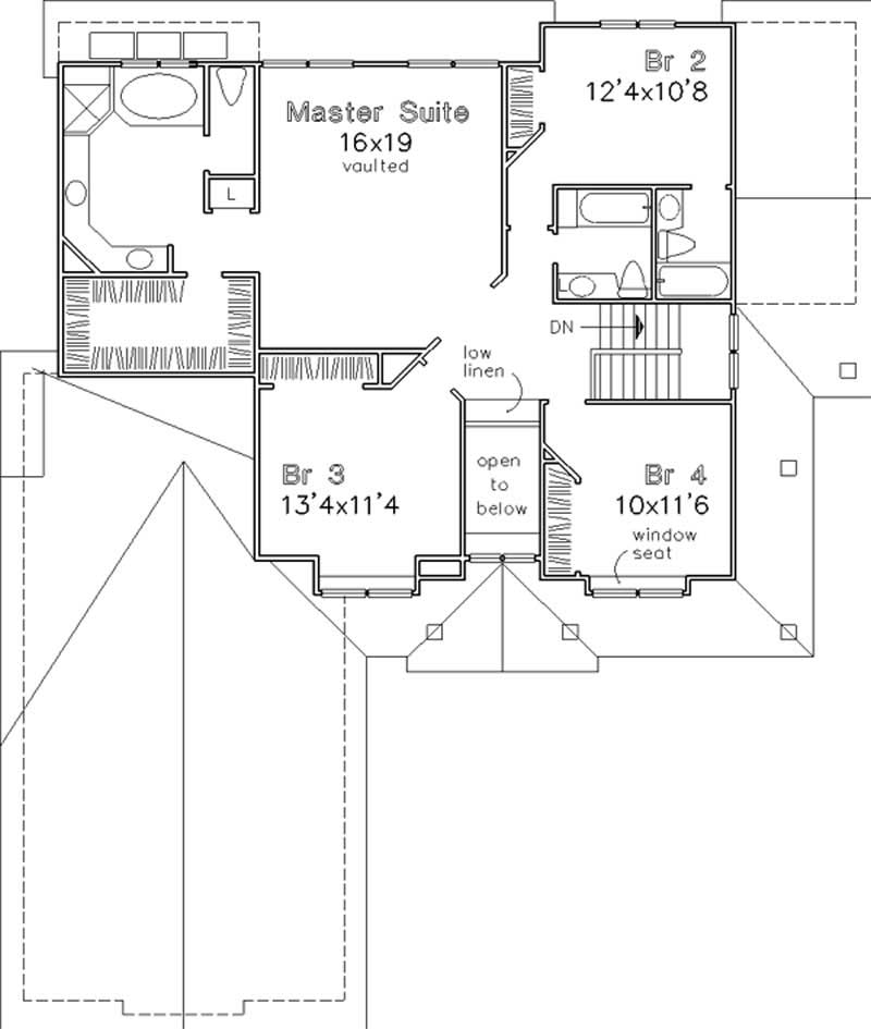
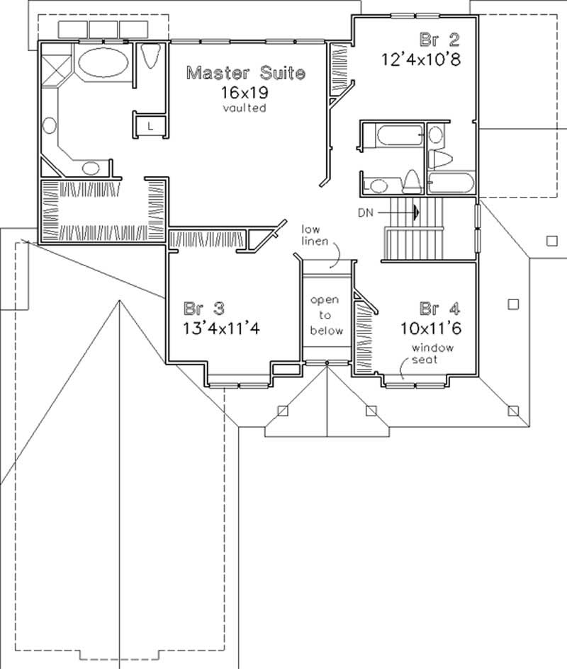
This charming traditional home is greatly enhanced with the flexibility of a swing suite. Perfect as an in-law apartment or as a private shelter for a child returning to the nest, the swing suite is an added feature of this design. The spacious kitchen is the focal point of family activities. A long, angled counter nicely serves the breakfast room, dining room and family room. The bayed breakfast room has its own snack bar that doubles as a wet bar for guests in the family room. To the rear is an exciting, skylighted sun room that opens to a backyard patio. A unique corner fireplace at the...
Estimate your costs based on your location and materials.
All sales of house plans, modifications, and other products found on this site are final. No refunds or exchanges can be given once your order has begun the fulfillment process. Please see our Policies for additional information.
All plans offered on ThePlanCollection.com are designed to conform to the local building codes when and where the original plan was drawn.
The homes as shown in photographs and renderings may differ from the actual blueprints. For more detailed information, please review the floor plan images herein carefully.
Estimate your costs based on your location and materials.


