Estimate your costs based on your location and materials.
Yes! This plan can be customized—contact us for a free quote.


Yes! This plan can be customized—contact us for a free quote.
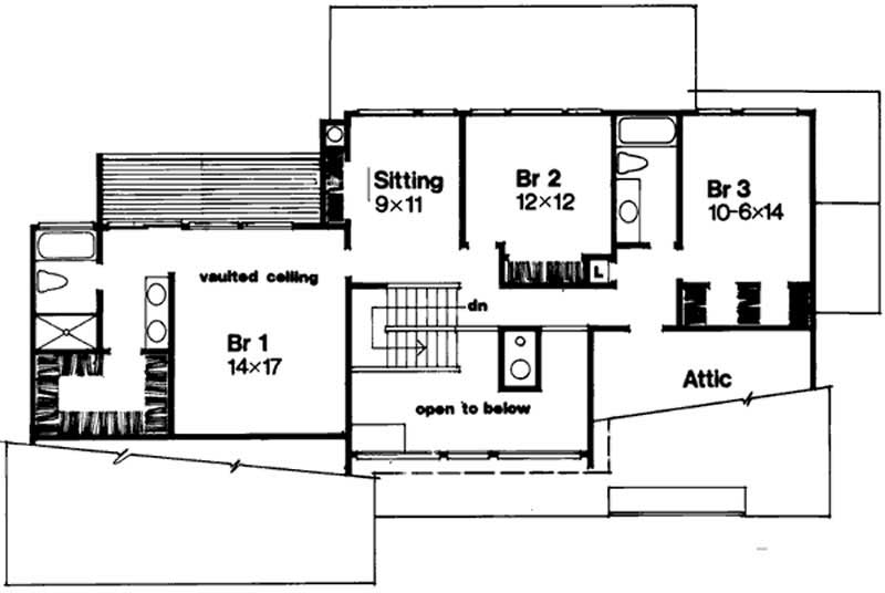
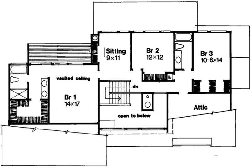
Vertical siding, a bold roofline, two decks and lots of glass are the hallmarks of this exciting design. An open room arrangement dominates the main level. The vaulted entry leads to the informal living areas straight ahead or to the formal living and dining rooms on the right. A half-bath is centrally located. The combination family room, breakfast area and kitchen is sure to be the hot spot of the house. Lots of windows, a fireplace and an adjoining deck make this spacious area warm and inviting. The upper level is highlighted by the vaulted master bedroom with windows that overlook a...
Estimate your costs based on your location and materials.
All sales of house plans, modifications, and other products found on this site are final. No refunds or exchanges can be given once your order has begun the fulfillment process. Please see our Policies for additional information.
All plans offered on ThePlanCollection.com are designed to conform to the local building codes when and where the original plan was drawn.
The homes as shown in photographs and renderings may differ from the actual blueprints. For more detailed information, please review the floor plan images herein carefully.
Estimate your costs based on your location and materials.


