Estimate your costs based on your location and materials.
Yes! This plan can be customized—contact us for a free quote.


Yes! This plan can be customized—contact us for a free quote.
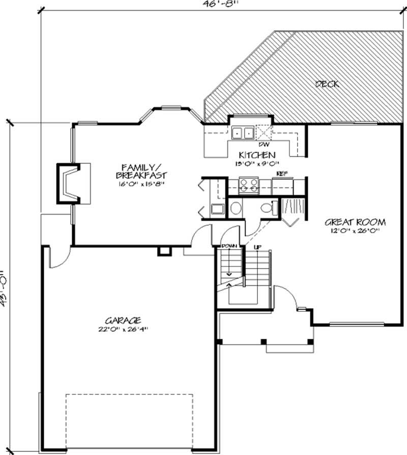
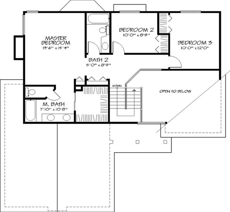
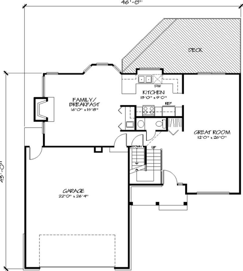
This handsome home features a wide assortment of windows, flooding the interior with light and accentuating the open, airy atmosphere. The two-story-high entry is brightened by a beautiful Palladian window above. Just ahead, the vaulted Great Room also showcases a Palladian window. The adjoining dining area offers sliding glass doors that open to a large deck. The family/breakfast area hosts a snack bar and a wet bar, in addition to a fireplace that warms the entire area. Upstairs, the master suite boasts corner windows, a large walk-in closet and a compartmentalized bath with a dual- sink...
Estimate your costs based on your location and materials.
All sales of house plans, modifications, and other products found on this site are final. No refunds or exchanges can be given once your order has begun the fulfillment process. Please see our Policies for additional information.
All plans offered on ThePlanCollection.com are designed to conform to the local building codes when and where the original plan was drawn.
The homes as shown in photographs and renderings may differ from the actual blueprints. For more detailed information, please review the floor plan images herein carefully.
Estimate your costs based on your location and materials.



