Estimate your costs based on your location and materials.
Yes! This plan can be customized—contact us for a free quote.


Yes! This plan can be customized—contact us for a free quote.
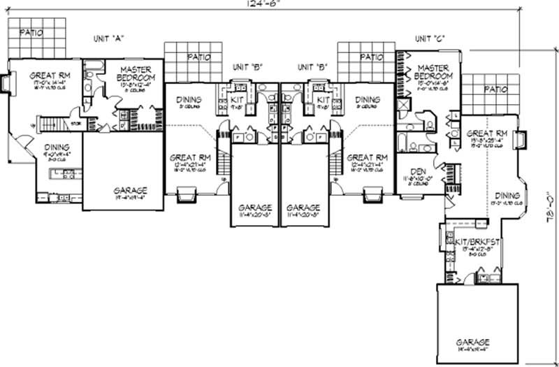
These clustered town homes feature a unique corner design and three distinct floor plans. Unit A boasts dual master bedrooms, two full baths, main-floor laundry facilities, and a vaulted Great Room complete with a warming fireplace. Upstairs, Unit B offers a master bedroom and a second loft/bedroom. Downstairs, laundry facilities, a large vaulted Great Room with a fireplace, and a dining area with views of the patio will be found. Unit C stretches around the corner in a classic two-bedroom ranch design.
Estimate your costs based on your location and materials.
All sales of house plans, modifications, and other products found on this site are final. No refunds or exchanges can be given once your order has begun the fulfillment process. Please see our Policies for additional information.
All plans offered on ThePlanCollection.com are designed to conform to the local building codes when and where the original plan was drawn.
The homes as shown in photographs and renderings may differ from the actual blueprints. For more detailed information, please review the floor plan images herein carefully.
Estimate your costs based on your location and materials.


