Estimate your costs based on your location and materials.
Yes! This plan can be customized—contact us for a free quote.


Yes! This plan can be customized—contact us for a free quote.
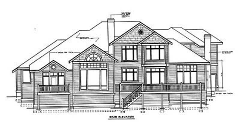
The Craftsman house plan 97-211 has the following features: Suited for view lot. Volume/vaulted ceiling and open floor plan. Family room, bonus room, den/office/computer, kitchen island, dining room, and nook/breakfast area. Main floor master, walk-in closet, and teen suite. Side-entry garage, oversized garage, and wine cellar.
Estimate your costs based on your location and materials.
All sales of house plans, modifications, and other products found on this site are final. No refunds or exchanges can be given once your order has begun the fulfillment process. Please see our Policies for additional information.
All plans offered on ThePlanCollection.com are designed to conform to the local building codes when and where the original plan was drawn.
The homes as shown in photographs and renderings may differ from the actual blueprints. For more detailed information, please review the floor plan images herein carefully.
Estimate your costs based on your location and materials.



