Estimate your costs based on your location and materials.
Yes! This plan can be customized—contact us for a free quote.


Yes! This plan can be customized—contact us for a free quote.
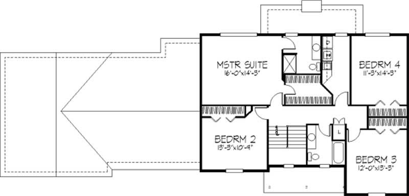
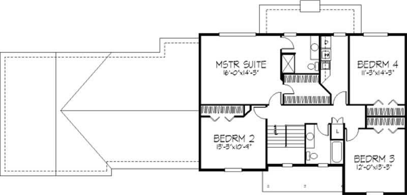
A dramatic roofline, distinctive gables and a partial stone facade create a truly unique impression for this fine two-story. The cozy family room at the center of the main floor features a sunken floor and a warm fireplace. A secluded study lies nearby. The second-floor master suite offers a walk-in closet and a private bath, while three additional bedrooms sport ample room and share a full bath.
Estimate your costs based on your location and materials.
All sales of house plans, modifications, and other products found on this site are final. No refunds or exchanges can be given once your order has begun the fulfillment process. Please see our Policies for additional information.
All plans offered on ThePlanCollection.com are designed to conform to the local building codes when and where the original plan was drawn.
The homes as shown in photographs and renderings may differ from the actual blueprints. For more detailed information, please review the floor plan images herein carefully.
Estimate your costs based on your location and materials.


