Estimate your costs based on your location and materials.
Yes! This plan can be customized—contact us for a free quote.


Yes! This plan can be customized—contact us for a free quote.
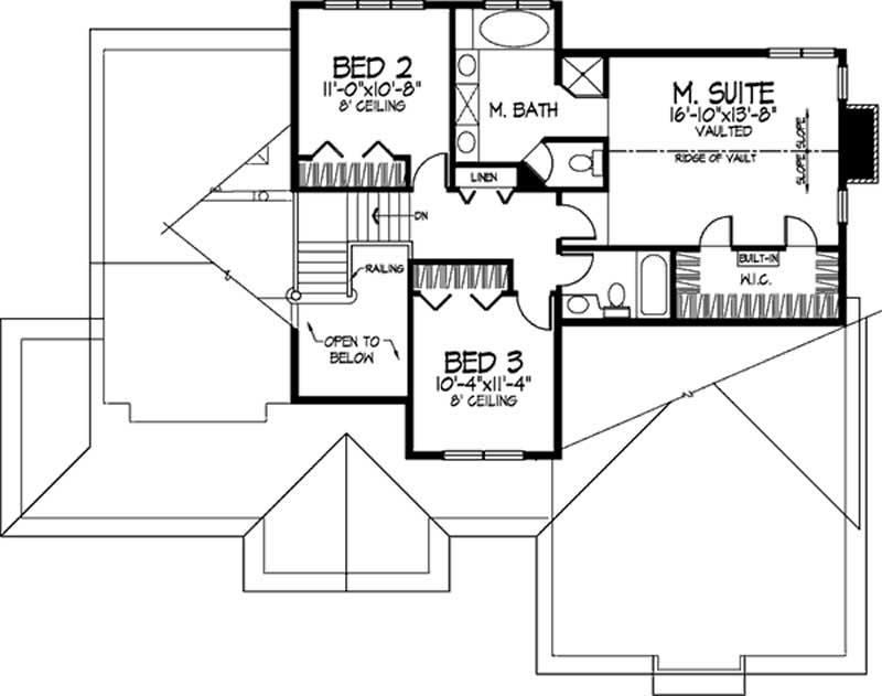
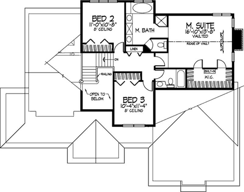
Past the formal two-story entry of this home lies a variety of living spaces for the growing family, including a lavish master suite and two additional bedrooms on the upper level. A secluded den on the main floor offers privacy and convenience for those necessary home projects, while a spacious family room with a fireplace makes the perfect place to relax. The generous living room boasts a vaulted ceiling and opens to the formal dining room. The nearby island kitchen includes a breakfast nook opening to the rear deck.
Estimate your costs based on your location and materials.
All sales of house plans, modifications, and other products found on this site are final. No refunds or exchanges can be given once your order has begun the fulfillment process. Please see our Policies for additional information.
All plans offered on ThePlanCollection.com are designed to conform to the local building codes when and where the original plan was drawn.
The homes as shown in photographs and renderings may differ from the actual blueprints. For more detailed information, please review the floor plan images herein carefully.
Estimate your costs based on your location and materials.


