Estimate your costs based on your location and materials.
Yes! This plan can be customized—contact us for a free quote.
Yes! This plan can be customized—contact us for a free quote.
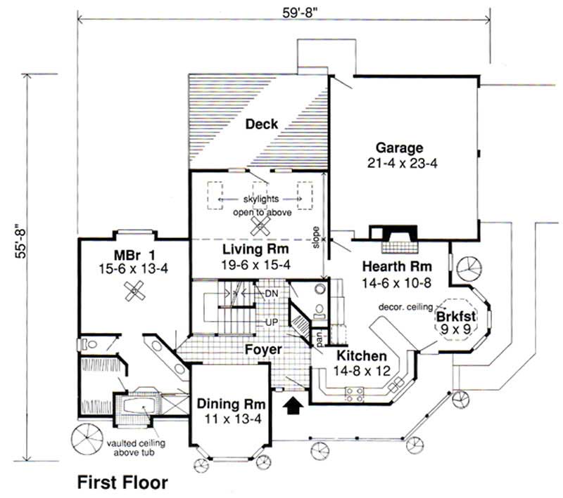
This home combines the best of all worlds: a classic Victorian exterior and an interior that more than answers the demands of modern family life. Step past the covered porch into the tiled foyer dominated by an open staircase. A short hall leads past the formal dining room to the first-floor master suite. To the right, the angular kitchen, sunny breakfast bay, and fireplaced hearth room flow together into a pleasing, open space that's perfect for family gatherings. When guests arrive, show them into the spectacular skylit atmosphere of the soaring living room with its adjoining outdoor deck....
Estimate your costs based on your location and materials.
All sales of house plans, modifications, and other products found on this site are final. No refunds or exchanges can be given once your order has begun the fulfillment process. Please see our Policies for additional information.
All plans offered on ThePlanCollection.com are designed to conform to the local building codes when and where the original plan was drawn.
The homes as shown in photographs and renderings may differ from the actual blueprints. For more detailed information, please review the floor plan images herein carefully.
Estimate your costs based on your location and materials.
