4-Bedroom, 4579 Sq Ft Country Plan with Covered Front Porch

Main image for house plan # 17546

Images/Plans copyrighted by designer. Photos may reflect homeowner modifications.

About House Plan #101-1070

Sq Ft
4579
Sq Ft
Bedrooms
4
Bedrooms
Bathroom
3
Baths
Half Baths
0
Half Baths
Bedrooms
3
Cars
Bedrooms
1
Stories
Bedrooms
89' 4'
Width
Bedrooms
67
Depth
Starting at$2152.13What's included
STEP 1Bedrooms
STEP 2Bedrooms
STEP 3Bedrooms

Subtotal:$0
BedroomsBest Price Guaranteed
Plan Collection

How much will it cost to build?

Estimate your costs based on your location and materials.

Free Cost Instant Estimator

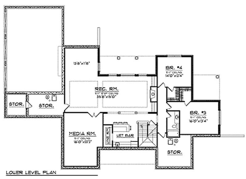
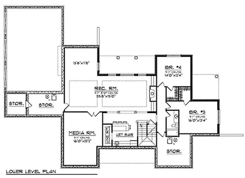
Floor Plans

MAIN FLOOR PLAN
MAIN FLOOR PLAN
BASEMENT FLOOR PLAN
BASEMENT FLOOR PLAN
Plan Collection

Can I modify this plan?

Yes! This plan can be customized—contact us for a free quote.

House Plan Description

This cottage inspired ranch house plan combines the perfect blend of stone and shingle siding with shuttered details to create a curb appeal that is truly unique. The cathedral ceiling of the entry carries through the great room where you’ll find exposed wood beams and a fire place flanked by built-in cabinets. The kitchen features a large eat-in island and a view into the country-inspired dining room with its wood beam ceiling. The master suite is sure to please with its large walk-in closet and spacious bathroom with Jacuzzi tub. The second bedroom is located...

Home Details

Summary
Plan #:101-1070
Starting at:$2152.13
Floors:1
Bedrooms:4
Full Baths:3
Half Baths:0
Garage:
Square Footage
Heated Area:4579 Sq. Ft.
First Floor:2551 Sq. Ft.
Unheated Area:
Basement:2028 Sq. Ft.
Garage:821 Sq. Ft.
Dimensions
Width:89' 4''
Architectural Styles
Exterior Wall Material
Rock/StoneShakes
Roof Pitch
12/1210/12
Ceiling Height
10 Foot Ceiling
Special Feature
Mother in law apartmentDining RoomMedia Room
Garage Type
Attached Garage
Exterior Wall Framing
2x6
Porches and Exterior Features
Covered Front Porch

What’s Included

Most plan sets include the following:

icon text-secondary-400 includedFront, Back & Side Elevations

icon text-secondary-400 includedFloor Plans

icon text-secondary-400 includedElectrical Layout (location of outlets, switches, etc. - it does not have wiring schematics)

icon text-secondary-400 includedRoof Plan (Birdseye view)

icon text-secondary-400 includedFoundation Layout

icon text-secondary-400 includedWall & Stair Sections

icon text-secondary-400 includedCross Section

icon text-secondary-400 includedKitchen Layout

icon text-secondary-400 includedGeneral Notes

What’s Not Included

These items are  NOT included:

icon text-secondary-400 includedArchitectural or Engineering Stamp - handled locally if required.

icon text-secondary-400 includedSite Plan - handled locally when required.

icon text-secondary-400 includedMechanical Drawings (location of heating and air equipment and ductwork) - your subcontractors handle this.

icon text-secondary-400 includedPlumbing Drawings (drawings showing the actual plumbing pipe sizes and locations) - your subcontractors handle this.

icon text-secondary-400 includedFraming layouts with beam sizes and locations.

icon text-secondary-400 includedEnergy calculations - handled locally when required.

Related House Plans

Plan Collection
Plan Collection
Plan Collection
Plan#206-1020
Starting at$1625
3585
Sq Ft
1
Story
4
Bed
3.5
Bath
3
Car
Plan Collection
Plan Collection
Plan Collection
Plan#153-1130
Starting at$1850
4810
Sq Ft
1
Story
4
Bed
3.5
Bath
3
Car
Plan Collection
Plan Collection
Plan Collection
Plan#142-1141
Starting at$2045
3527
Sq Ft
1
Story
4
Bed
3
Bath
3
Car
View All

Other Plans By This Designer

Plan Collection
Plan Collection
Plan Collection
Plan#101-1503
Starting at$1090
2098
Sq Ft
2
Story
4
Bed
2
Bath
2
Car
Plan Collection
Plan Collection
Plan Collection
Plan#101-1028
Starting at$1240
3020
Sq Ft
2
Story
4
Bed
2.5
Bath
3
Car
Plan Collection
Plan Collection
Plan Collection
Plan#101-2024
Starting at$1240
3235
Sq Ft
1
Story
5
Bed
3.5
Bath
3
Car