4-Bedroom, 2757 Sq Ft Cottage Plan with 2-Story Great Room

Front elevation of Cottage home (ThePlanCollection: House Plan #106-1129)

Images/Plans copyrighted by designer. Photos may reflect homeowner modifications.

About House Plan #106-1129

Sq Ft
2757
Sq Ft
Bedrooms
4
Bedrooms
Bathroom
4
Baths
Half Baths
1
Half Baths
Bedrooms
2
Cars
Bedrooms
2
Stories
Bedrooms
84' 0'
Width
Bedrooms
77
Depth
Starting at$1295.00What's included
STEP 1Bedrooms
STEP 2Bedrooms
STEP 3Bedrooms

Subtotal:$0
BedroomsBest Price Guaranteed
Plan Collection

How much will it cost to build?

Estimate your costs based on your location and materials.

Free Cost Instant Estimator

Floor Plans

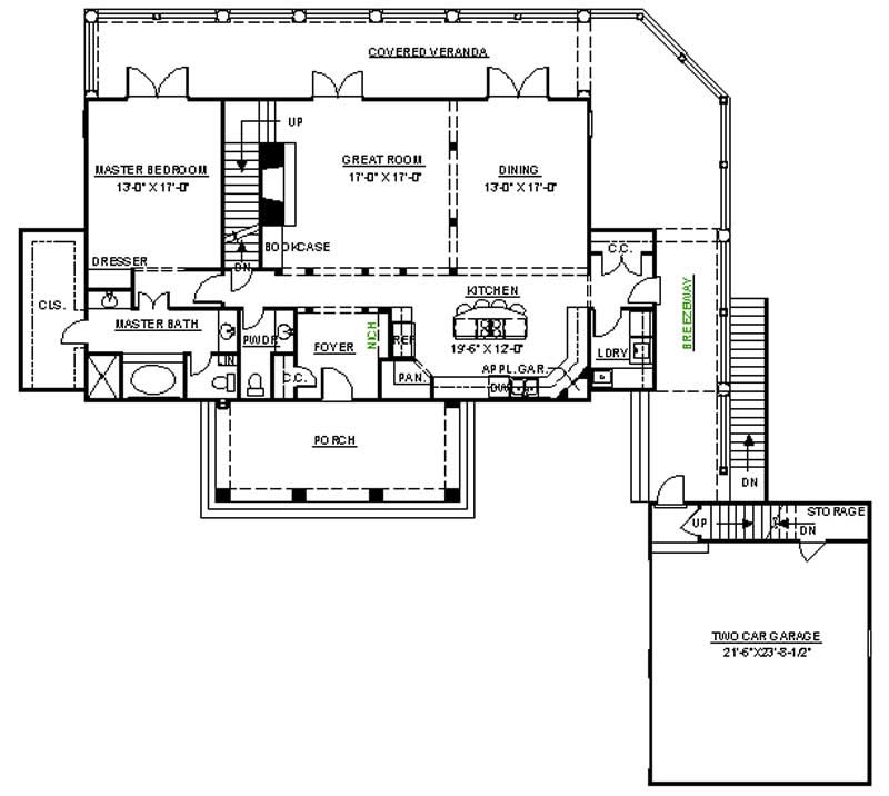
Floor Plan First Story
Floor Plan First Story
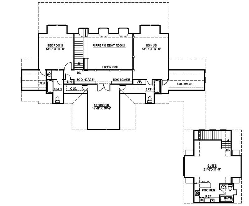
Floor Plan Second Story
Floor Plan Second Story
Plan Collection

Can I modify this plan?

Yes! This plan can be customized—contact us for a free quote.

Additional Notes from Designer

The plans by this designer do NOT include framing. PLEASE NOTE: An Unlimited Use License is available for purchase through the designer BUT YOU MUST purchase a CAD package!

House Plan Description

This European-influenced cottage with carport courtyard entry fitting 2 cars with a breezeway connecting to the house. 3 bed, 3.5 baths. Upstairs includes a bonus room, upper great room, and storage space. Above the garage, there is a suite with a kitchen and bath. For a similar plan, see Plan #106-1097.

Home Details

Summary
Plan #:106-1129
Starting at:$1295.00
Floors:2
Bedrooms:4
Full Baths:4
Half Baths:1
Garage:
Square Footage
Heated Area:2757 Sq. Ft.
First Floor:1708 Sq. Ft.
Second Floor:1049 Sq. Ft.
Unheated Area:
Dimensions
Architectural Styles
Exterior Wall Material
Rock/Stone
Special Feature
FireplaceBonus RoomMain Level LaundryApartmentOpen Floor Plan
Garage Type
Detached GarageCourtyard Entry
Fireplaces
One Fireplace
Building Lot Type
Down Site
Kitchen Features
Kitchen IslandPeninsula/Eating Bar
Porches and Exterior Features
BreezewayCovered Front PorchCovered Rear Porch
Master Suite Features
Main Floor MasterMaster BathroomWalk In ClosetSplit Master Bedroom

What’s Included

Most plan sets include the following:

icon text-secondary-400 includedFoundation Plan

icon text-secondary-400 includedFloor plans

icon text-secondary-400 includedElectrical layout

icon text-secondary-400 includedExterior elevations

icon text-secondary-400 includedCross-section

icon text-secondary-400 includedTypical Call detail

icon text-secondary-400 includedTypical footing detail

icon text-secondary-400 includedMiscellaneous details

icon text-secondary-400 includedWindow/Door sizes

icon text-secondary-400 includedRoof plan

What’s Not Included

These items are  NOT included:

icon text-secondary-400 includedFraming.

icon text-secondary-400 includedArchitectural or Engineering Stamp - handled locally if required.

icon text-secondary-400 includedSite Plan - handled locally when required.

icon text-secondary-400 includedMechanical Drawings (location of heating and air equipment and ductwork) - your subcontractors handle this.

icon text-secondary-400 includedPlumbing Drawings (drawings showing the actual plumbing pipe sizes and locations) - your subcontractors handle this.

icon text-secondary-400 includedEnergy calculations - handled locally when required.

Related House Plans

Plan Collection
Plan Collection
Plan Collection
Plan#106-1292
Starting at$1695
3302
Sq Ft
2
Story
4
Bed
4.5
Bath
5
Car
Plan Collection
Plan Collection
Plan Collection
Plan#142-1140
Starting at$1645
3360
Sq Ft
2
Story
4
Bed
4.5
Bath
3
Car
Plan Collection
Plan Collection
Plan Collection
Plan#108-1708
Starting at$1100
2686
Sq Ft
2
Story
4
Bed
4
Bath
2
Car
View All

Other Plans By This Designer

Plan Collection
Plan Collection
Plan Collection
Plan#106-1325
Starting at$4095
8628
Sq Ft
2
Story
7
Bed
7.5
Bath
5
Car
Plan Collection
Plan Collection
Plan Collection
Plan#106-1315
Starting at$1695
2830
Sq Ft
1
Story
3
Bed
2.5
Bath
3
Car
Plan Collection
Plan Collection
Plan Collection
Plan#106-1206
Starting at$4095
8210
Sq Ft
2
Story
6
Bed
6.5
Bath
4
Car