Estimate your costs based on your location and materials.
Yes! This plan can be customized—contact us for a free quote.
Yes! This plan can be customized—contact us for a free quote.
PLEASE NOTE! The CAD - Unlimited package is NOT an unlimited license - it is a license to build up to 5 homes. ATTENTION! Printed sets can ONLY be sent via ground shipping. NO priority or express shipping is available. ATTENTION! Printed sets can ONLY be sent by ground - NO priority or express shipping on printed sets!
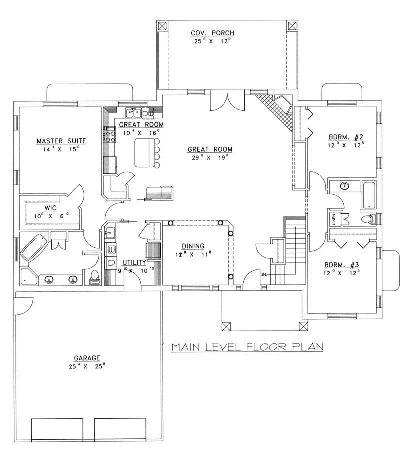
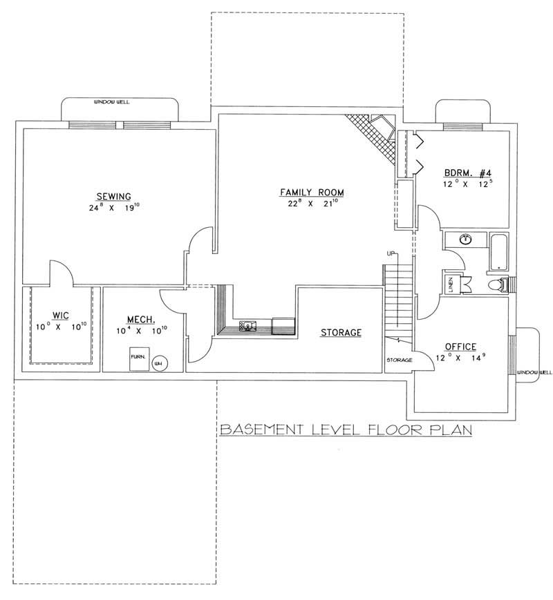
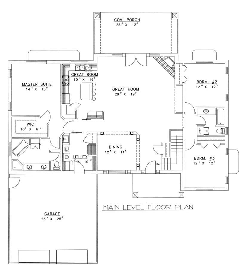
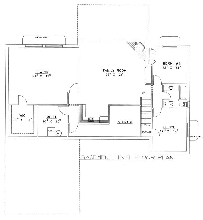
Ranch/Vacation Style 4 Bed 3 Bath *Insulated Concrete Form Construction *Large Family Room With Corner Fireplace *Office *Sewing Room *Storage Area *Large Great Room With Corner Fireplace *Covered Front Porch *Laundry Room *Full Master Bathroon With Corner Shower *2-Car Garage
Estimate your costs based on your location and materials.
All sales of house plans, modifications, and other products found on this site are final. No refunds or exchanges can be given once your order has begun the fulfillment process. Please see our Policies for additional information.
All plans offered on ThePlanCollection.com are designed to conform to the local building codes when and where the original plan was drawn.
The homes as shown in photographs and renderings may differ from the actual blueprints. For more detailed information, please review the floor plan images herein carefully.
Estimate your costs based on your location and materials.
