4-Bedroom, 4380 Sq Ft Luxury Plan with Nook/Breakfast Area

Main image for house plan # 15443

Images/Plans copyrighted by designer. Photos may reflect homeowner modifications.

About House Plan #156-1805

Sq Ft
4380
Sq Ft
Bedrooms
4
Bedrooms
Bathroom
3
Baths
Half Baths
0
Half Baths
Bedrooms
3
Cars
Bedrooms
2
Stories
Bedrooms
65' 0'
Width
Bedrooms
82
Depth
Starting at$1150.00What's included
STEP 1Bedrooms
STEP 2Bedrooms
STEP 3Bedrooms

Subtotal:$0
BedroomsBest Price Guaranteed
Plan Collection

How much will it cost to build?

Estimate your costs based on your location and materials.

Free Cost Instant Estimator

Floor Plans

FIRST STORY FLOOR PLAN
FIRST STORY FLOOR PLAN
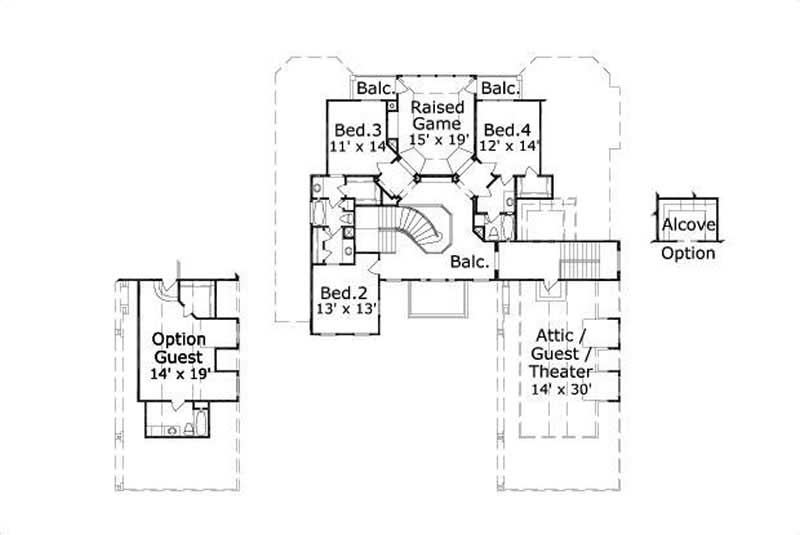
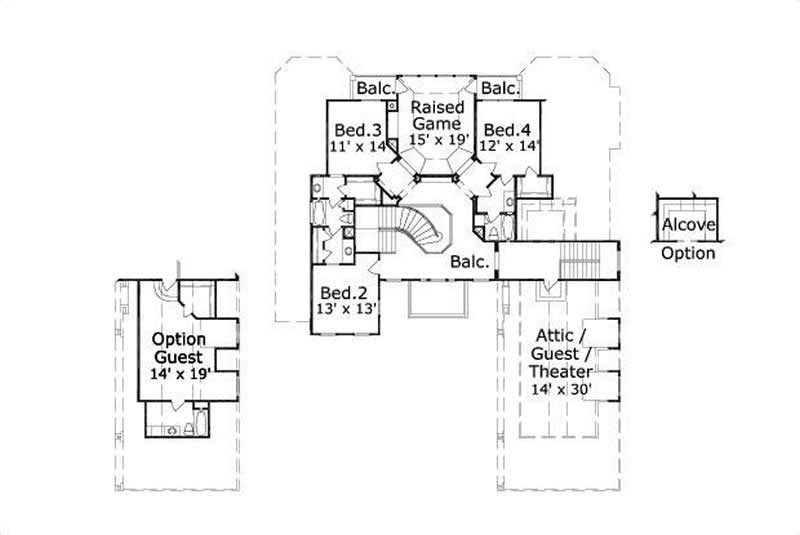
SECOND STORY FLOOR PLAN
SECOND STORY FLOOR PLAN
Plan Collection

Can I modify this plan?

Yes! This plan can be customized—contact us for a free quote.

Additional Notes from Designer

CAD files may take up to 3 business days to receive - please contact us for availability.

House Plan Description

Home plan number 20424-3 is a two story, Traditional style home with a total square footage of 4,380. There are 4 bedrooms and 3 and 1/2 bathrooms, along with a swing entry, front loading, 3 car garage. The master bedroom includes seperate closets and a sitting area. Plan number 20424-3 has a covered rear porch and terrace. There are also exterior and interior balconies. Special features include a theater/media room and bonus room. Other features include a bar, butler pantry, gallery, foyer, computer alcove and unfinished storage.

Home Details

Summary
Plan #:156-1805
Starting at:$1150.00
Floors:2
Bedrooms:4
Full Baths:3
Half Baths:0
Garage:
Square Footage
Heated Area:4380 Sq. Ft.
First Floor:2843 Sq. Ft.
Second Floor:1537 Sq. Ft.
Unheated Area:
Dimensions
Ridge Height:35' 0''
Architectural Styles
Exterior Wall Material
Stucco
Ceiling Height
10 Foot Ceiling
Special Feature
Bonus RoomMedia Room
Garage Type
Front Entry
Porches and Exterior Features
Covered Rear Porch

What’s Included

Most plan sets include the following:

icon text-secondary-400 includedExterior,

icon text-secondary-400 includedElevations

icon text-secondary-400 includedFloor Plans

icon text-secondary-400 includedElectrical Layout

icon text-secondary-400 includedBuilding Sections

icon text-secondary-400 includedRoofing Plan

icon text-secondary-400 includedInterior Elevations

icon text-secondary-400 includedGeneral Details

icon text-secondary-400 includedWall Sections

What’s Not Included

These items are  NOT included:

icon text-secondary-400 includedArchitectural or Engineering Stamp - handled locally if required.

icon text-secondary-400 includedSite Plan - handled locally when required.

icon text-secondary-400 includedMechanical Drawings (location of heating and air equipment and ductwork) - your subcontractors handle this.

icon text-secondary-400 includedPlumbing Drawings (drawings showing the actual plumbing pipe sizes and locations) - your subcontractors handle this.

icon text-secondary-400 includedEnergy calculations - handled locally when required.

Related House Plans

Plan Collection
Plan Collection
Plan Collection
Plan#161-1067
Starting at$2400
3897
Sq Ft
2
Story
4
Bed
3.5
Bath
3
Car
Plan Collection
Plan Collection
Plan Collection
Plan#161-1145
Starting at$2650
3907
Sq Ft
2
Story
4
Bed
3.5
Bath
3
Car
Plan Collection
Plan Collection
Plan Collection
Plan#106-1169
Starting at$1695
3912
Sq Ft
2
Story
4
Bed
3.5
Bath
3
Car
View All

Other Plans By This Designer

Plan Collection
Plan Collection
Plan Collection
Plan#156-1456
Starting at$1450
8541
Sq Ft
2
Story
5
Bed
5
Bath
4
Car
Plan Collection
Plan Collection
Plan Collection
Plan#156-1085
Starting at$1100
3900
Sq Ft
2
Story
4
Bed
3.5
Bath
3
Car
Plan Collection
Plan Collection
Plan Collection
Plan#156-1734
Starting at$1700
6775
Sq Ft
2
Story
6
Bed
4.5
Bath
2
Car