Estimate your costs based on your location and materials.
Yes! This plan can be customized—contact us for a free quote.


Yes! This plan can be customized—contact us for a free quote.
Please Note: The plans by this designer DO NOT include electrical plans or electrical layout plans. NOTE: If you are building this home in Washington State, please contact us BEFORE placing your order!
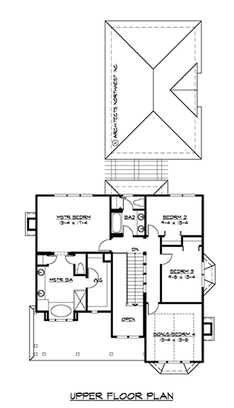
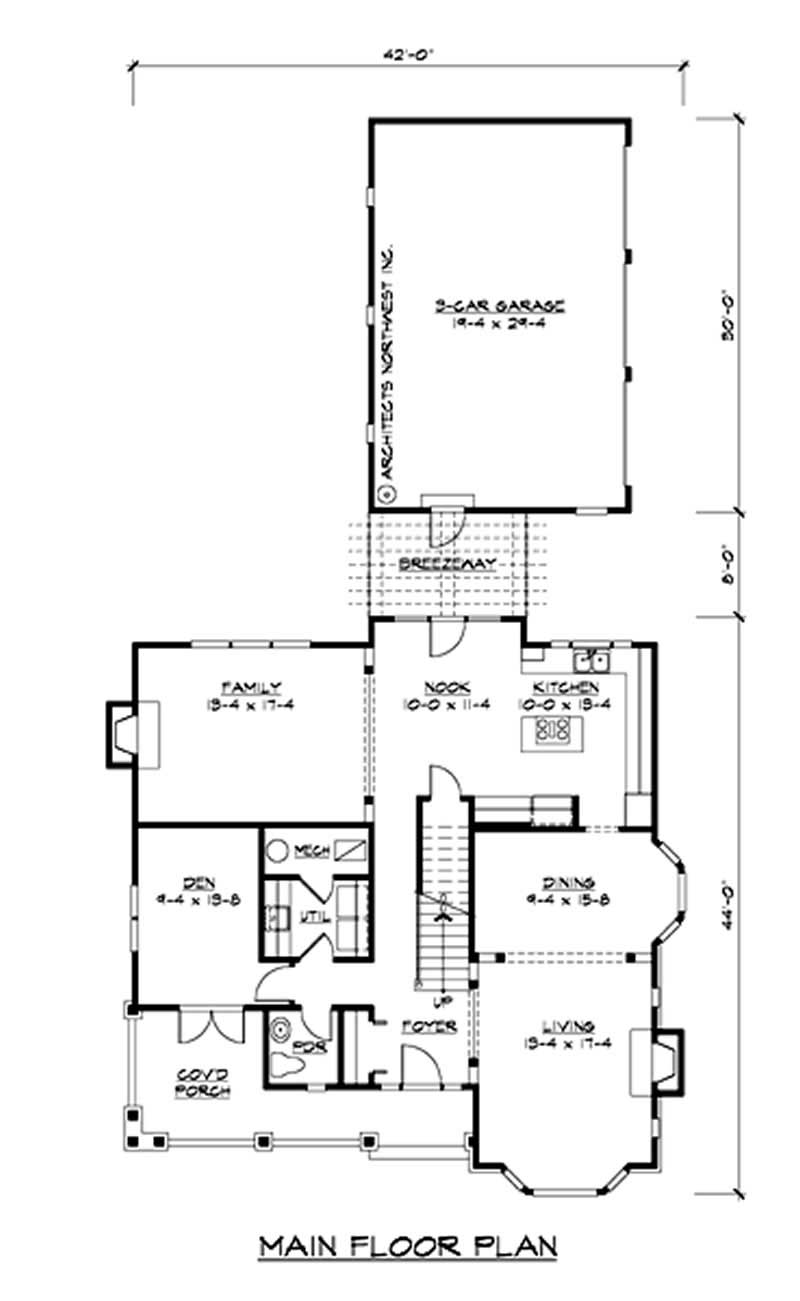
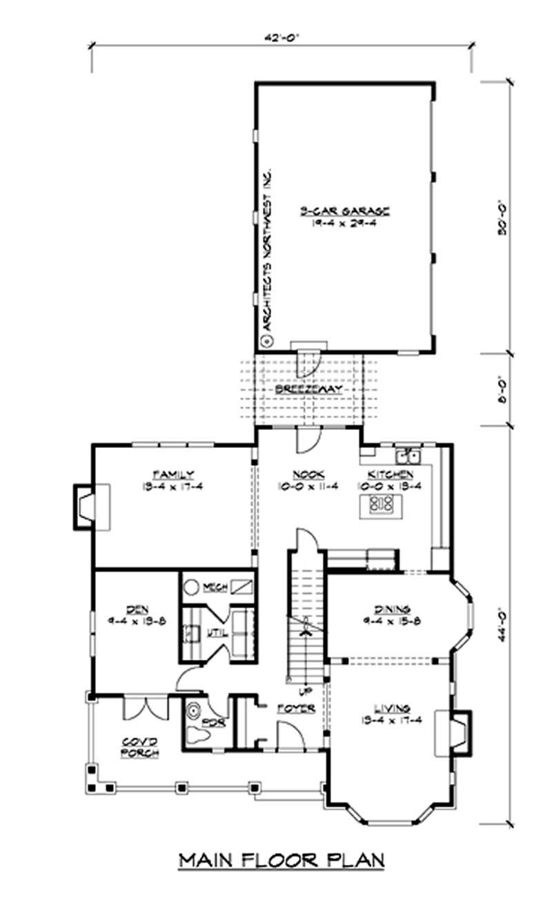
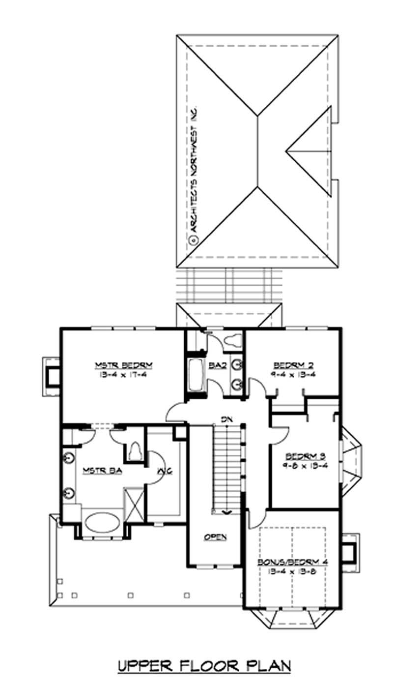
This beautiful and amazing houseplan has many great features to offer you such as: a cozy den, breakfast nook, an open kitchen, utility room, powder room, covered porch as the entrance of the home, family room with a pleasant fireplace, dining room, three car garage with a breezeway leading to it, bonus room upstairs, and a master bedroom with the luxury of your own walk-in closet along with an enjoyable master bath.
Estimate your costs based on your location and materials.
All sales of house plans, modifications, and other products found on this site are final. No refunds or exchanges can be given once your order has begun the fulfillment process. Please see our Policies for additional information.
All plans offered on ThePlanCollection.com are designed to conform to the local building codes when and where the original plan was drawn.
The homes as shown in photographs and renderings may differ from the actual blueprints. For more detailed information, please review the floor plan images herein carefully.
Estimate your costs based on your location and materials.



