Estimate your costs based on your location and materials.
Yes! This plan can be customized—contact us for a free quote.


Yes! This plan can be customized—contact us for a free quote.
Please Note: The plans by this designer DO NOT include electrical plans or electrical layout plans. NOTE: If you are building this home in Washington State, please contact us BEFORE placing your order!
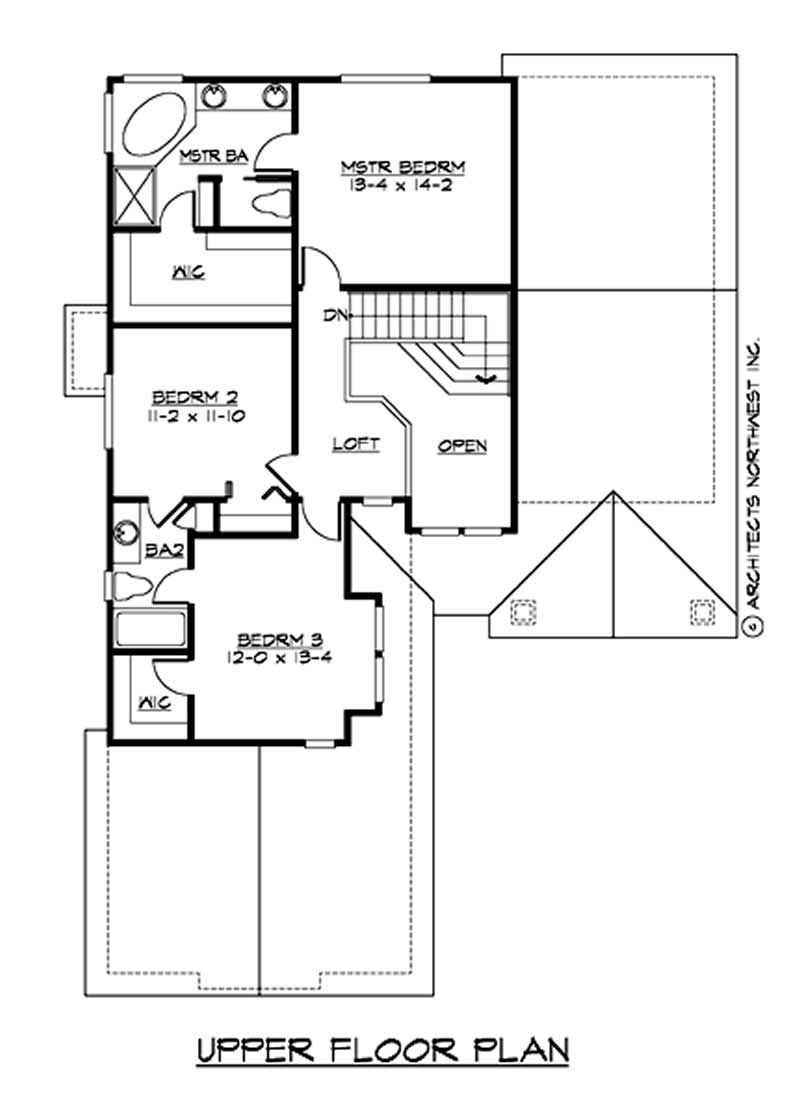
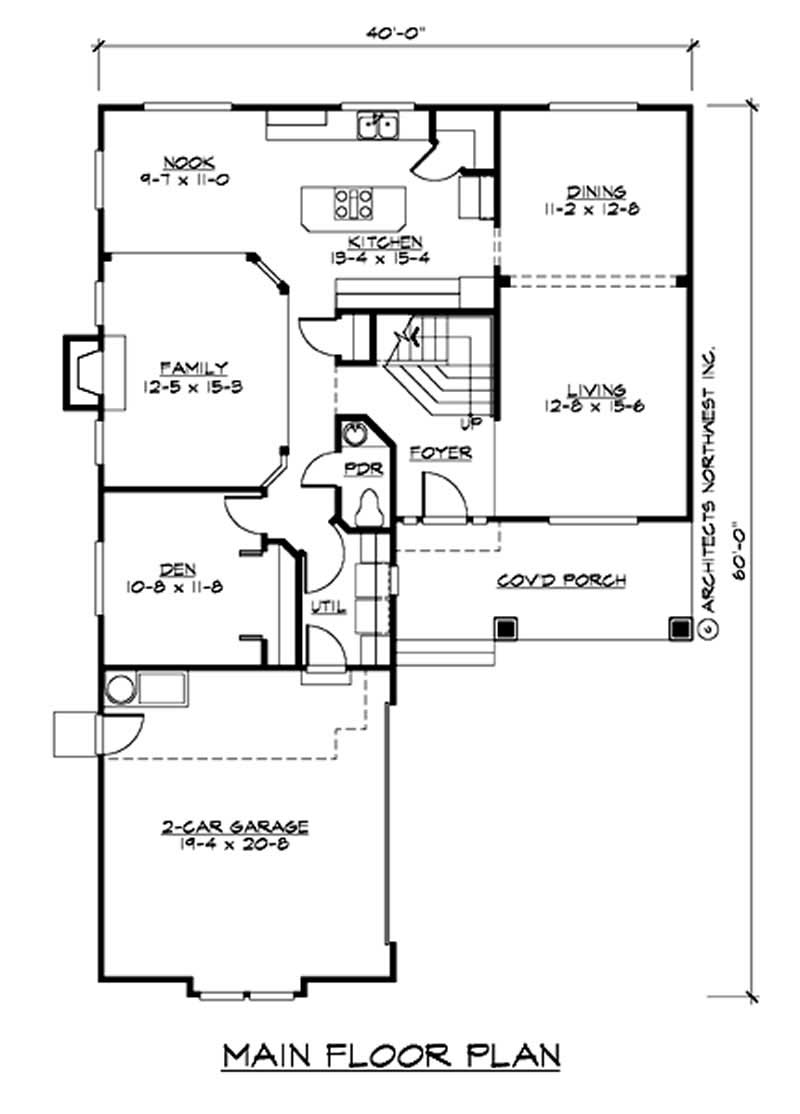
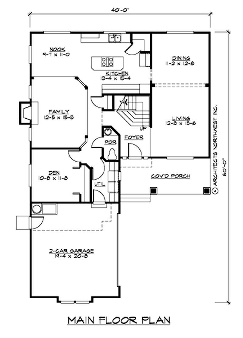
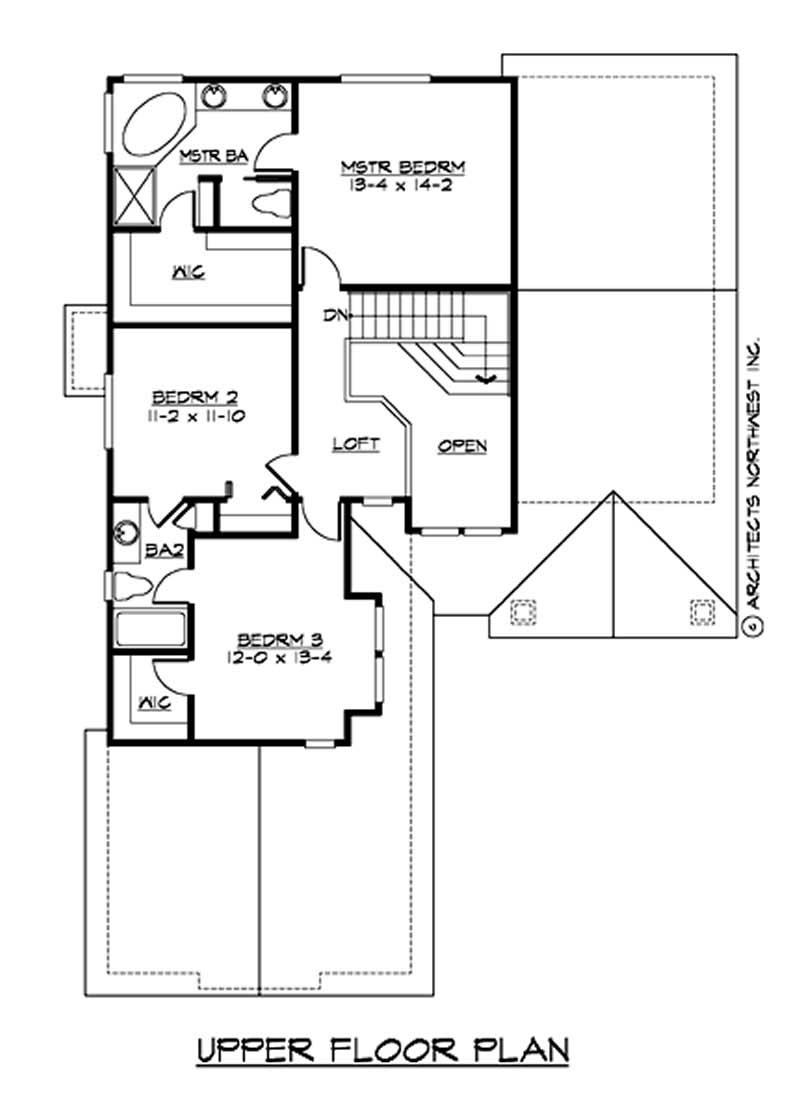
This beautiful and amazing houseplan has many great features to offer you. The kitchen gives you plenty of room for cooking with an island in the middle. In the family room you have a nice and cozy fireplace to enjoy reading a good book by. For the convenience of your guests you have a nice powder room for them to freshen up in. There is a den where you can enjoy the quietness of the room. You have easy access between the dining area and the living room. Upstairs is the master bedroom with a walk-in closet and a relaxing master bath.
Estimate your costs based on your location and materials.
All sales of house plans, modifications, and other products found on this site are final. No refunds or exchanges can be given once your order has begun the fulfillment process. Please see our Policies for additional information.
All plans offered on ThePlanCollection.com are designed to conform to the local building codes when and where the original plan was drawn.
The homes as shown in photographs and renderings may differ from the actual blueprints. For more detailed information, please review the floor plan images herein carefully.
Estimate your costs based on your location and materials.



