Estimate your costs based on your location and materials.
Yes! This plan can be customized—contact us for a free quote.



Yes! This plan can be customized—contact us for a free quote.
Please Note: The plans by this designer DO NOT include electrical plans or electrical layout plans. NOTE: If you are building this home in Washington State, please contact us BEFORE placing your order!
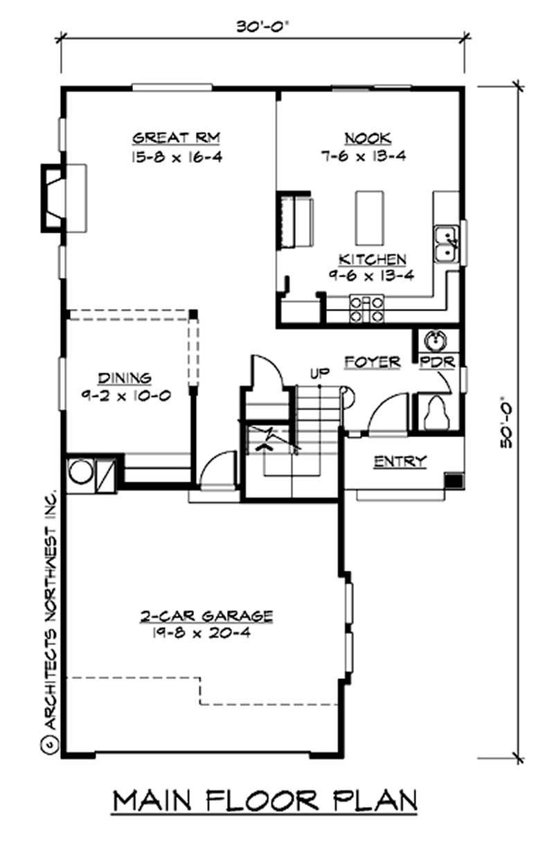
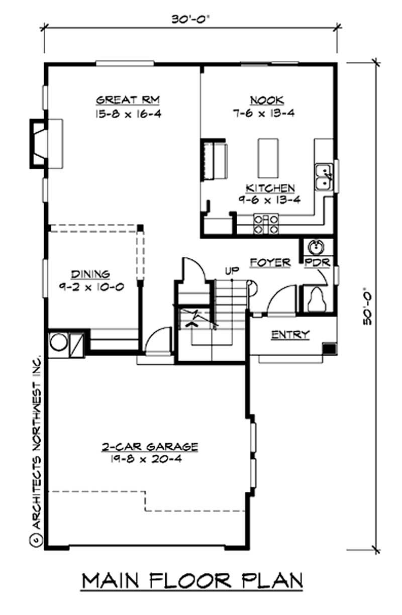
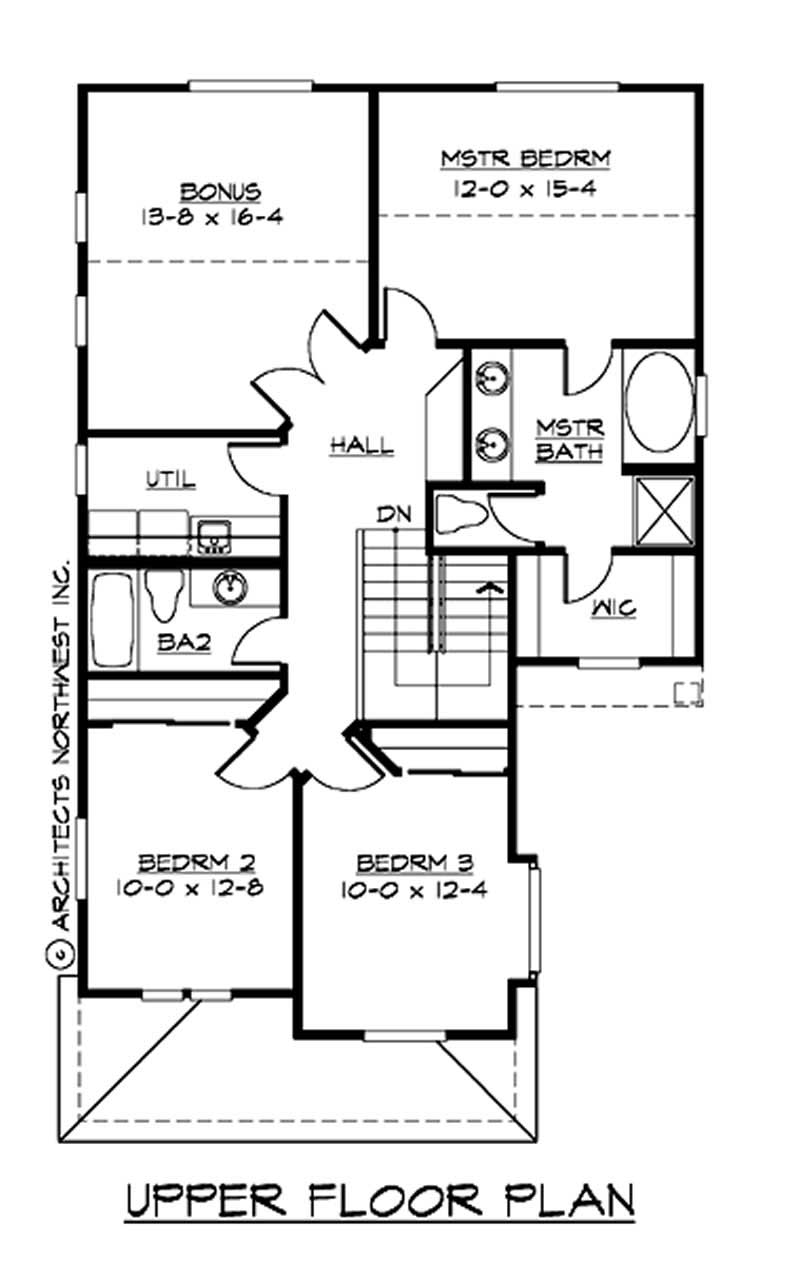
This beautiful and amazing houseplan has an open feel to it. The great room has a nice and cozy fireplace to enjoy reading a good book by. There is a nook where you can have an enjoyable breakfast together as a family. In the kitchen area you have plenty of room for cooking and entertaining family and friends. You have the nice convenience of a powder room where your guests can freshen up in. Upstairs the master bedroom is located. The master suite has the nice features of a relaxing master bath along with a walk-in closet to organize all your clothes in.
Estimate your costs based on your location and materials.
All sales of house plans, modifications, and other products found on this site are final. No refunds or exchanges can be given once your order has begun the fulfillment process. Please see our Policies for additional information.
All plans offered on ThePlanCollection.com are designed to conform to the local building codes when and where the original plan was drawn.
The homes as shown in photographs and renderings may differ from the actual blueprints. For more detailed information, please review the floor plan images herein carefully.
Estimate your costs based on your location and materials.




