Estimate your costs based on your location and materials.
Yes! This plan can be customized—contact us for a free quote.


Yes! This plan can be customized—contact us for a free quote.
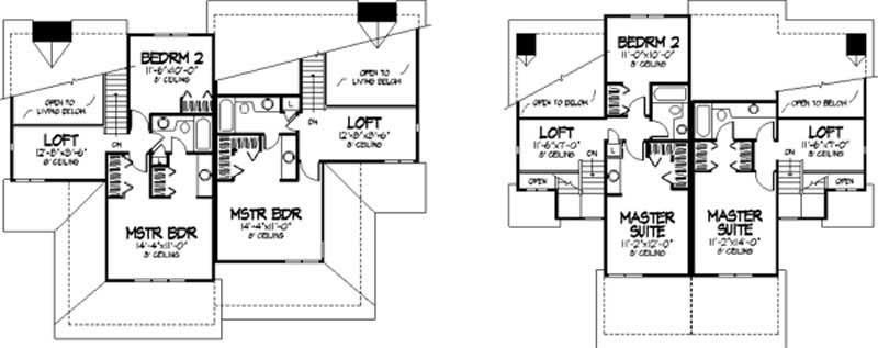
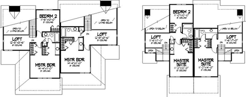
These duplex designs feature different floor plans to accommodate any lifestyle. Each design offers a lower-level vaulted living room with a fireplace. Sliding doors access a rear deck. Separate dining areas adjoin good-sized kitchens. Upstairs, each unit has a master suite; a nearby loft overlooks the open living room below. Some of the units feature second bedrooms. A units feature single garages; B units feature 2-car garages.
Estimate your costs based on your location and materials.
All sales of house plans, modifications, and other products found on this site are final. No refunds or exchanges can be given once your order has begun the fulfillment process. Please see our Policies for additional information.
All plans offered on ThePlanCollection.com are designed to conform to the local building codes when and where the original plan was drawn.
The homes as shown in photographs and renderings may differ from the actual blueprints. For more detailed information, please review the floor plan images herein carefully.
Estimate your costs based on your location and materials.


