Estimate your costs based on your location and materials.
Yes! This plan can be customized—contact us for a free quote.


Yes! This plan can be customized—contact us for a free quote.
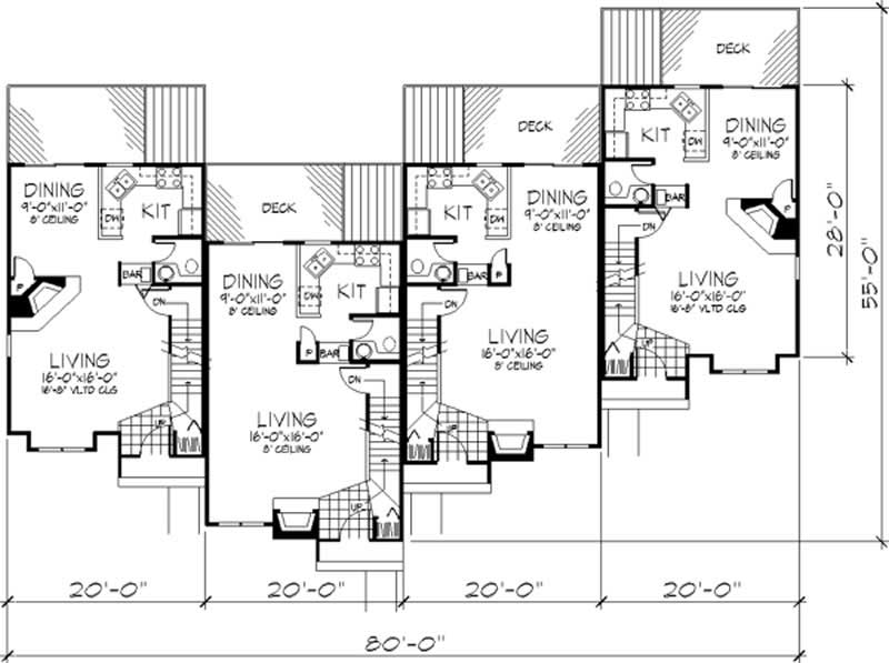
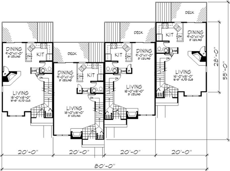
Unit A plans include a vaulted-ceilinged living room with a handsome angled fireplace and a boxed-out window seat. The open, U-shaped kitchen and the wet bar easily serve the dining nook and the living room. The master suite is on the second floor, and features a large closet and a private toilet. Unit B plans have a first floor similar to that of Unit A's, but the fireplace is oriented inward. Upstairs, there is an additional bedroom that could easily double as a study or den. All plans have a rear deck and trellis, extending living to the outdoors and giving the multi-plex a...
Estimate your costs based on your location and materials.
All sales of house plans, modifications, and other products found on this site are final. No refunds or exchanges can be given once your order has begun the fulfillment process. Please see our Policies for additional information.
All plans offered on ThePlanCollection.com are designed to conform to the local building codes when and where the original plan was drawn.
The homes as shown in photographs and renderings may differ from the actual blueprints. For more detailed information, please review the floor plan images herein carefully.
Estimate your costs based on your location and materials.


