4-Bedroom, 8636 Sq Ft Luxury Plan with Kitchen Island

Luxury home (ThePlanCollection: Plan #134-1303)

Images/Plans copyrighted by designer. Photos may reflect homeowner modifications.

About House Plan #134-1303

Sq Ft
8636
Sq Ft
Bedrooms
4
Bedrooms
Bathroom
6
Baths
Half Baths
2
Half Baths
Bedrooms
5
Cars
Bedrooms
2
Stories
Bedrooms
137' 0'
Width
Bedrooms
183
Depth
Starting at$20726.40What's included
STEP 1Bedrooms
STEP 2Bedrooms
STEP 3Bedrooms

Subtotal:$0
BedroomsBest Price Guaranteed
Plan Collection

How much will it cost to build?

Estimate your costs based on your location and materials.

Free Cost Instant Estimator

Floor Plans

FLOOR PLAN FIRST STORY
FLOOR PLAN FIRST STORY
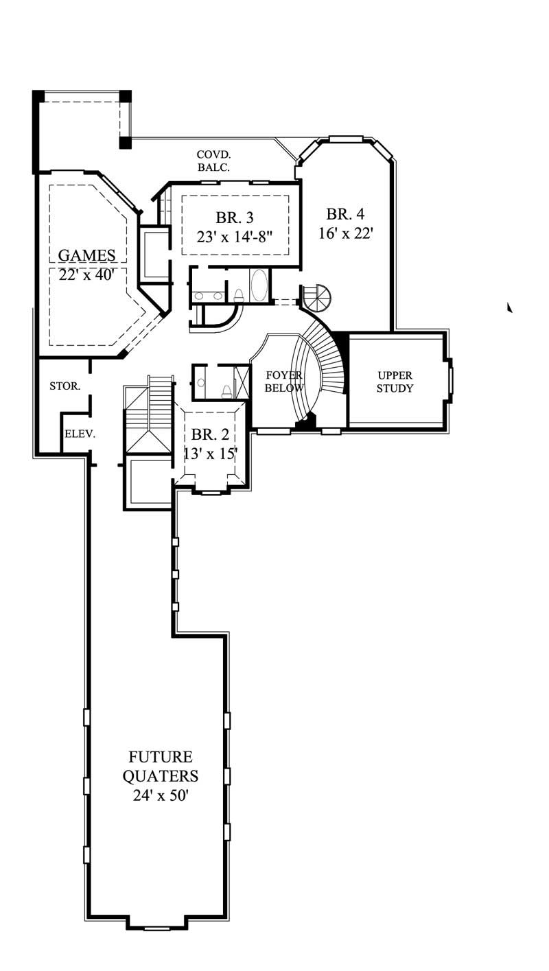
FLOOR PLAN SECOND STORY
FLOOR PLAN SECOND STORY
BONUS ROOM
BONUS ROOM
Plan Collection

Can I modify this plan?

Yes! This plan can be customized—contact us for a free quote.

House Plan Description

This extraordinary luxury home has 8,636 square feet of living space. The two-story floor plan includes 4 bedrooms and 6.5 bathrooms.

Home Details

Summary
Plan #:134-1303
Starting at:$20726.40
Floors:2
Bedrooms:4
Full Baths:6
Half Baths:2
Garage:
Square Footage
Heated Area:8636 Sq. Ft.
First Floor:5439 Sq. Ft.
Second Floor:2974 Sq. Ft.
Unheated Area:
Bonus Room:223 Sq. Ft.
Dimensions
Architectural Styles

What’s Included

Most plan sets include the following:

icon text-secondary-400 included1/4 scale elevations

icon text-secondary-400 includedFully dimensioned floor plans

icon text-secondary-400 includedFoundation footprint

icon text-secondary-400 includedRoof plan and section details

What’s Not Included

These items are  NOT included:

icon text-secondary-400 includedArchitectural or Engineering Stamp - handled locally if required.

icon text-secondary-400 includedSite Plan - handled locally when required.

icon text-secondary-400 includedMechanical Drawings (location of heating and air equipment and ductwork) - your subcontractors handle this.

icon text-secondary-400 includedPlumbing Drawings (drawings showing the actual plumbing pipe sizes and locations) - your subcontractors handle this.

icon text-secondary-400 includedEnergy calculations - handled locally when required.

Related House Plans

Plan Collection
Plan Collection
Plan Collection
Plan#134-1302
Starting at$0
6813
Sq Ft
2
Story
4
Bed
6.5
Bath
3
Car
Plan Collection
Plan Collection
Plan Collection
Plan#134-1282
Starting at$0
7129
Sq Ft
2
Story
4
Bed
6.5
Bath
4
Car
Plan Collection
Plan Collection
Plan Collection
Plan#156-2344
Starting at$1700
6713
Sq Ft
2
Story
4
Bed
6.5
Bath
4
Car
View All

Other Plans By This Designer

Plan Collection
Plan Collection
Plan Collection
Plan#134-1365
Starting at$0
9166
Sq Ft
2
Story
6
Bed
6.5
Bath
5
Car
Plan Collection
Plan Collection
Plan Collection
Plan#134-1355
Starting at$0
8617
Sq Ft
2
Story
5
Bed
5.5
Bath
3
Car
Plan Collection
Plan Collection
Plan Collection
Plan#134-1374
Starting at$0
4964
Sq Ft
2
Story
4
Bed
6.5
Bath
3
Car