Estimate your costs based on your location and materials.
Yes! This plan can be customized—contact us for a free quote.


Yes! This plan can be customized—contact us for a free quote.
NOTE FROM DESIGNER REGARDING PLAN PURCHASES: 80% of a 5 set purchase price can be applied to any PDF or CAD license upgrade. Additionally, 80% of PDF Study purchase price can be applied to any CAD or PDF license upgrade.
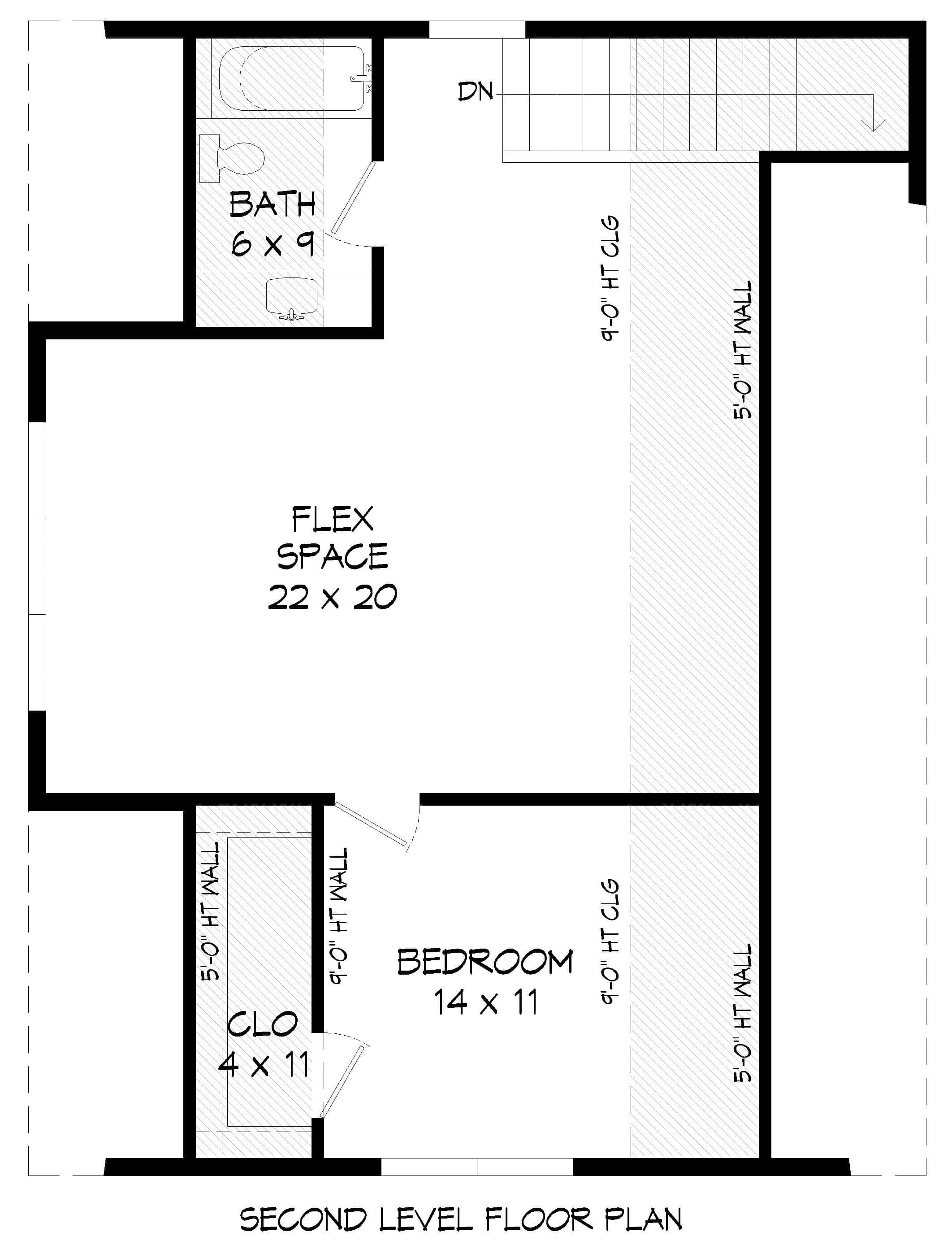
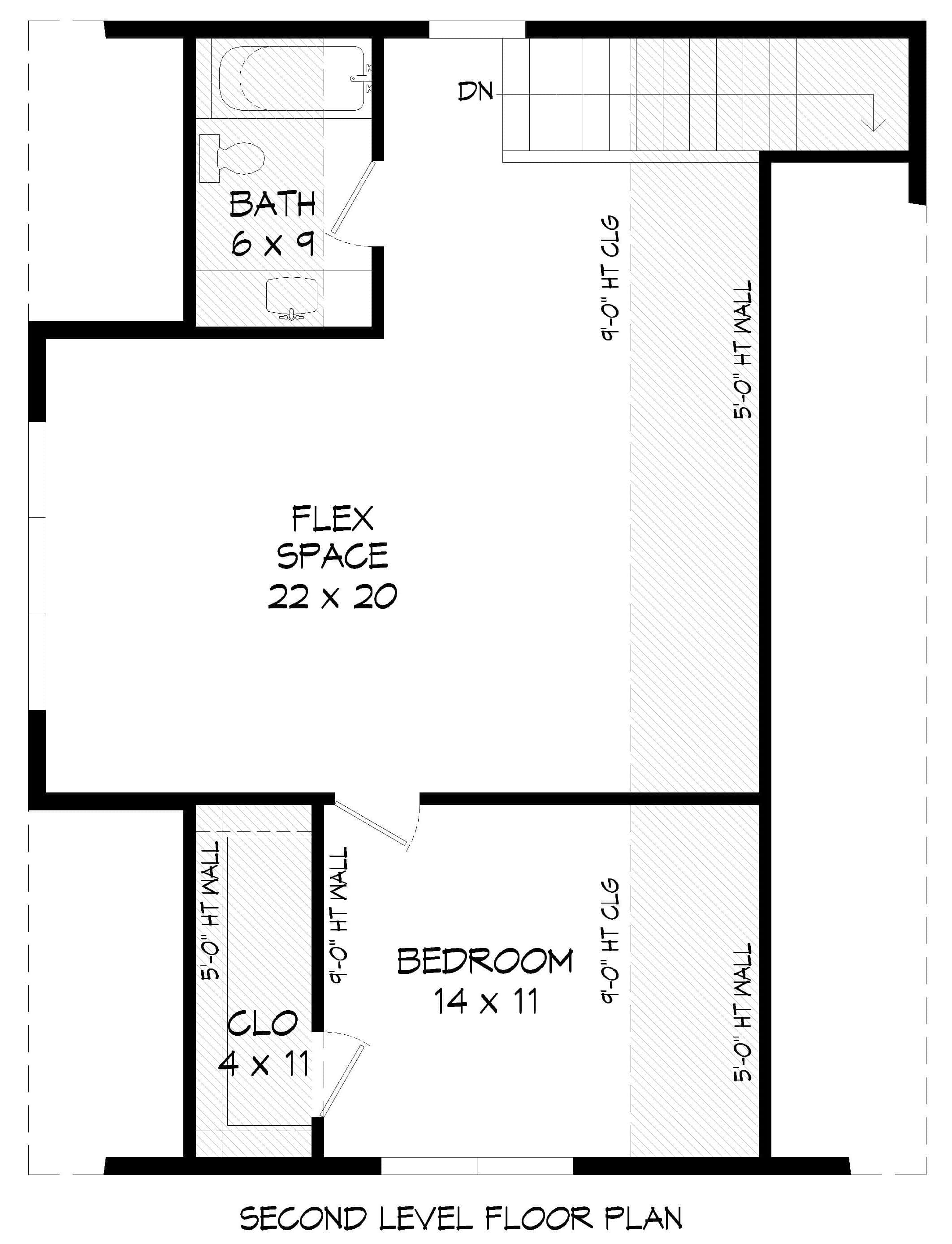
Radiating the warmth and charm of Country-style architecture, this 3-car garage plan offers 953 square feet of functional elegance designed to complement any property. The main level provides generous parking space, a convenient storage area, and a 55-square-foot living zone ideal for added flexibility. Upstairs, the 784-square-foot living area combines comfort and practicality, featuring a spacious bedroom with a closet, a full bath, and a versatile flex space that can serve as a home office, studio, or guest retreat. Perfectly balancing rustic character with modern convenience, this plan...
Estimate your costs based on your location and materials.
All sales of house plans, modifications, and other products found on this site are final. No refunds or exchanges can be given once your order has begun the fulfillment process. Please see our Policies for additional information.
All plans offered on ThePlanCollection.com are designed to conform to the local building codes when and where the original plan was drawn.
The homes as shown in photographs and renderings may differ from the actual blueprints. For more detailed information, please review the floor plan images herein carefully.
Estimate your costs based on your location and materials.






