Estimate your costs based on your location and materials.
Yes! This plan can be customized—contact us for a free quote.



Yes! This plan can be customized—contact us for a free quote.
PLEASE NOTE: Not all plans from this designer can be modified! Please check before sending in a mod request. Thank you!
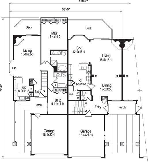
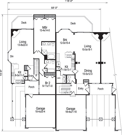
Units B and C include 3 bedrooms, 2 1/2 baths, 2-car garage in a two-story plan with 1,979 square feet of living area with 1,055 on the first floor and 924 on the second floor
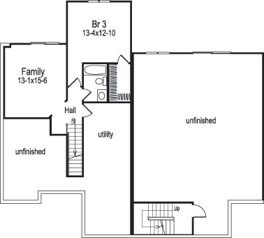
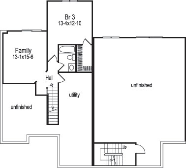
Units A and D include 3 bedrooms, 3 baths, 2-car garage in a ranch plan with 1,707 square feet of living area with 1,149 on the first floor and 558 on the lower level
This delightful traditional fourplex has a total of 7372 living sq ft. The 2-story floor plan includes 12 bedrooms in all. Each of the four units has 3 bedrooms and 1707-1979 living square feet.
Estimate your costs based on your location and materials.
All sales of house plans, modifications, and other products found on this site are final. No refunds or exchanges can be given once your order has begun the fulfillment process. Please see our Policies for additional information.
All plans offered on ThePlanCollection.com are designed to conform to the local building codes when and where the original plan was drawn.
The homes as shown in photographs and renderings may differ from the actual blueprints. For more detailed information, please review the floor plan images herein carefully.
Estimate your costs based on your location and materials.






