Estimate your costs based on your location and materials.
Yes! This plan can be customized—contact us for a free quote.


Yes! This plan can be customized—contact us for a free quote.
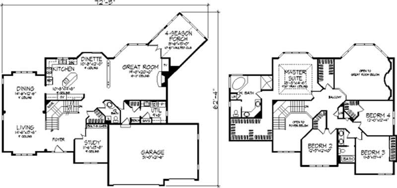
Formal living and dining rooms, a tw0-story Great Room, a 4-season porch and an expansive basement family room offer delightful possibilities for entertaining with flair. Past the living and dining rooms, the large island kitchen opens onto an adjoining dinnette and the nearby Great Room introduces a vaulted 4-season porch. The upper-floor master suite boasts a tray ceiling, a bay window, two walk-in closets and a private bath with a dual-sink vanity and a corner tub. Three additional upper-floor bedrooms share a second full bath, while a basement bedroom with a room-sized walk-in closet...
Estimate your costs based on your location and materials.
All sales of house plans, modifications, and other products found on this site are final. No refunds or exchanges can be given once your order has begun the fulfillment process. Please see our Policies for additional information.
All plans offered on ThePlanCollection.com are designed to conform to the local building codes when and where the original plan was drawn.
The homes as shown in photographs and renderings may differ from the actual blueprints. For more detailed information, please review the floor plan images herein carefully.
Estimate your costs based on your location and materials.



