Estimate your costs based on your location and materials.
Yes! This plan can be customized—contact us for a free quote.


Yes! This plan can be customized—contact us for a free quote.
PLEASE NOTE!! For this designer, The PDF that comes with the PRINT Packages (5 set+PDF and 8 set+PDF) is NOT Modifiable - it is for printing ONLY!
PLEASE NOTE!! Optional Foundations (foundations that cost extra money) will take 5-10 business days to complete.
NOTE: Allow 5–10 days for Secondary Foundation Options to ship.
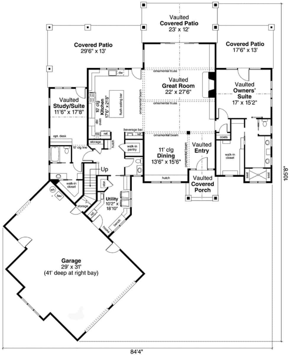
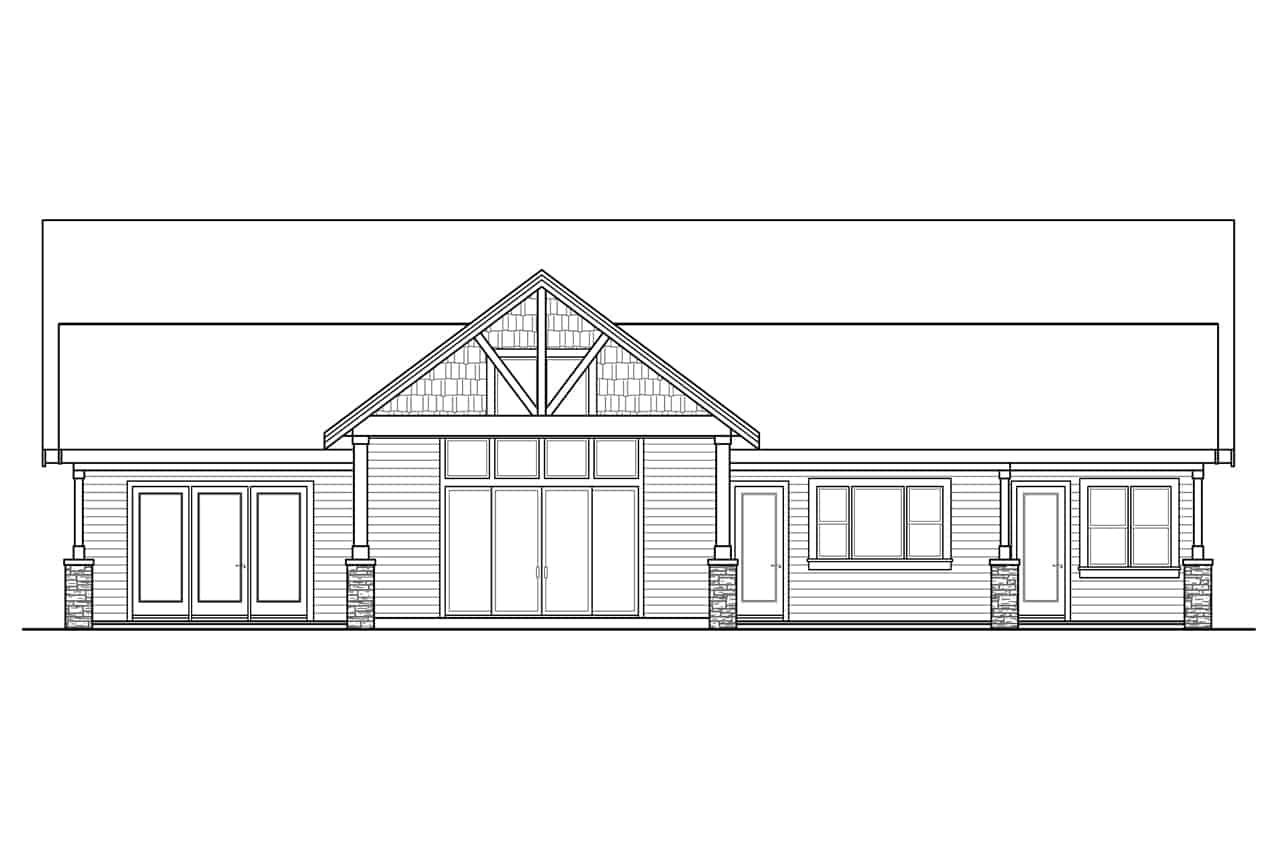
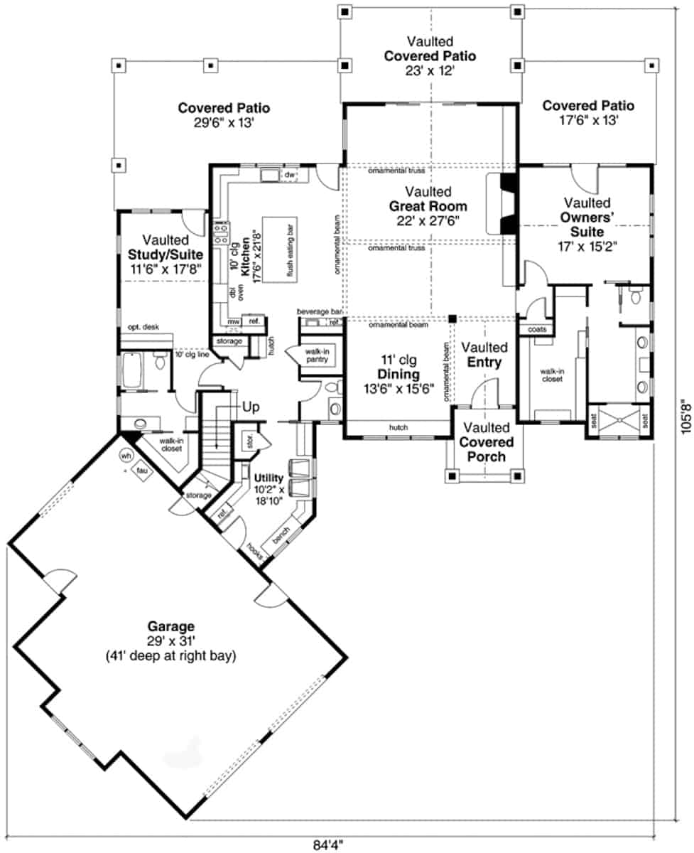
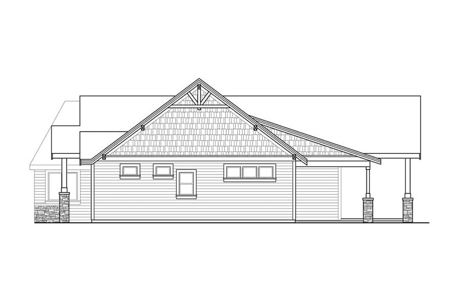
With Colonial style detailing, this Luxury Country home with excellent design offers everything you need to feel at home. The comfortable 1.5-story family home has 3644 square feet of fully conditioned living space that features plenty of rooms to seat friends, and the huge covered outdoor space out back is just perfect for special gatherings. Other amenities offered by the house are
• Vaulted ceilings
• Roomy walk-in kitchen pantry
• Spacious utility room
• Mudroom with a bench
• Fireplace in the...
Estimate your costs based on your location and materials.
All sales of house plans, modifications, and other products found on this site are final. No refunds or exchanges can be given once your order has begun the fulfillment process. Please see our Policies for additional information.
All plans offered on ThePlanCollection.com are designed to conform to the local building codes when and where the original plan was drawn.
The homes as shown in photographs and renderings may differ from the actual blueprints. For more detailed information, please review the floor plan images herein carefully.
Estimate your costs based on your location and materials.





