Estimate your costs based on your location and materials.
Yes! This plan can be customized—contact us for a free quote.



Yes! This plan can be customized—contact us for a free quote.
On some plans, Basement Foundations, Walkout Basement Foundations, & 2x6 Conversions could take up to ONE WEEK to produce. Materials Lists could take up to FOUR WEEKS to produce and they will be for the ORIGINAL plan! Any modifications will NOT be reflected on the Materials List. NOTE FROM DESIGNER: If you purchase a CAD, you will automatically receive the unlimited build license - no need to purchase separately!
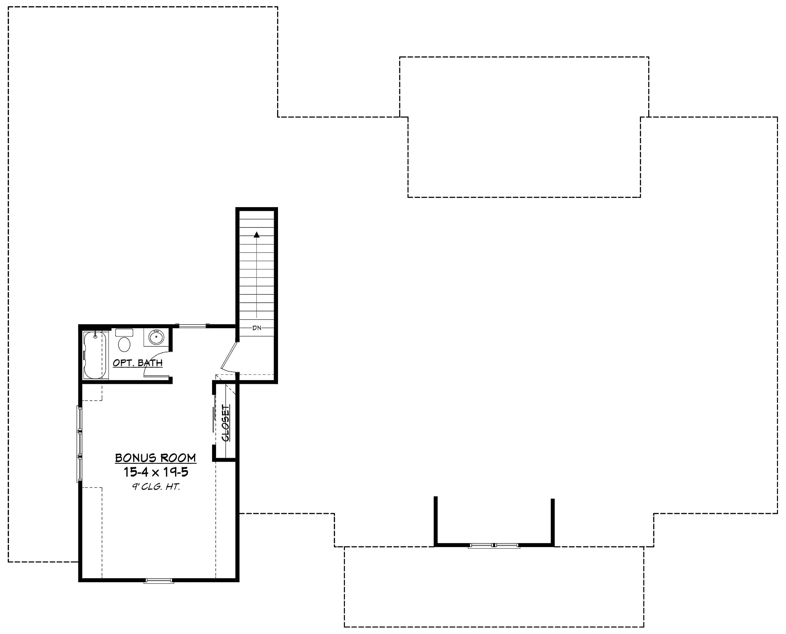
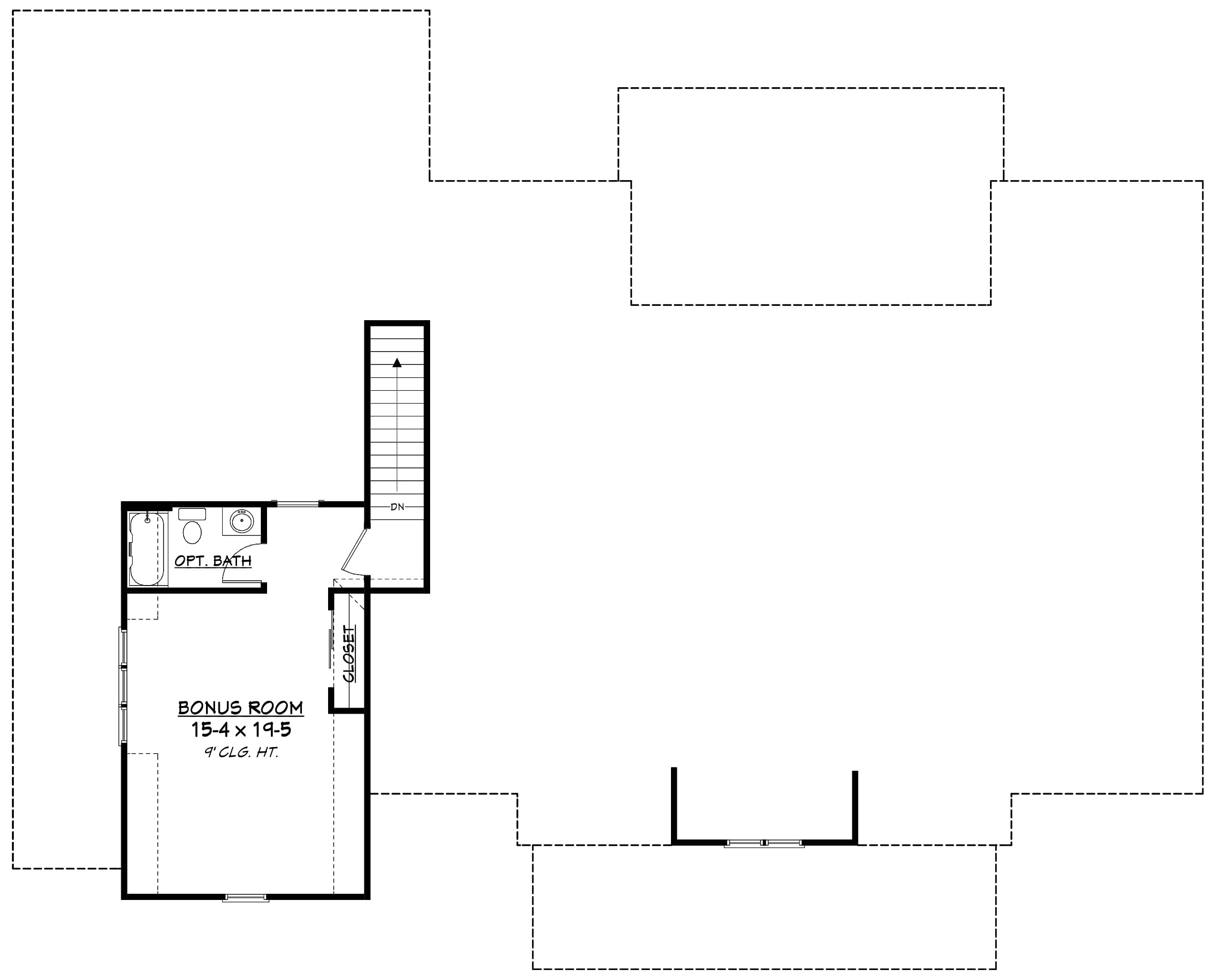
Please note the total sqaure footage of this home is 4394.
Splendid and charming, this 4-bedroom, contemporary -- or transitional -- farmhouse brings a new, updated look to country homes. The front covered porch makes for cool places to enjoy summer nights. Entering through the high ceiling foyer, the dining room with its coffered ceiling is to the left. Moving to the center of the home, the gas-log fireplace flanked by builtins creates an inviting and comforting environment. The chef's kitchen boasts an island, eating bar, and plenty of counter space. Steps away are the is the butler's pantry leading to the walk-in pantry and access to...
Estimate your costs based on your location and materials.
All sales of house plans, modifications, and other products found on this site are final. No refunds or exchanges can be given once your order has begun the fulfillment process. Please see our Policies for additional information.
All plans offered on ThePlanCollection.com are designed to conform to the local building codes when and where the original plan was drawn.
The homes as shown in photographs and renderings may differ from the actual blueprints. For more detailed information, please review the floor plan images herein carefully.
Estimate your costs based on your location and materials.









