4-Bedroom, 3609 Sq Ft Colonial Plan with Nook/Breakfast Area

Main image for house plan # 17014

Images/Plans copyrighted by designer. Photos may reflect homeowner modifications.

About House Plan #101-1741

Sq Ft
3609
Sq Ft
Bedrooms
4
Bedrooms
Bathroom
1
Baths
Half Baths
2
Half Baths
Bedrooms
0
Cars
Bedrooms
1
Stories
Bedrooms
84' 2'
Width
Bedrooms
60
Depth
Starting at$1130.00What's included
STEP 1Bedrooms
STEP 2Bedrooms
STEP 3Bedrooms

Subtotal:$0
BedroomsBest Price Guaranteed
Plan Collection

How much will it cost to build?

Estimate your costs based on your location and materials.

Free Cost Instant Estimator

Floor Plans

MAIN FLOOR PLAN
MAIN FLOOR PLAN
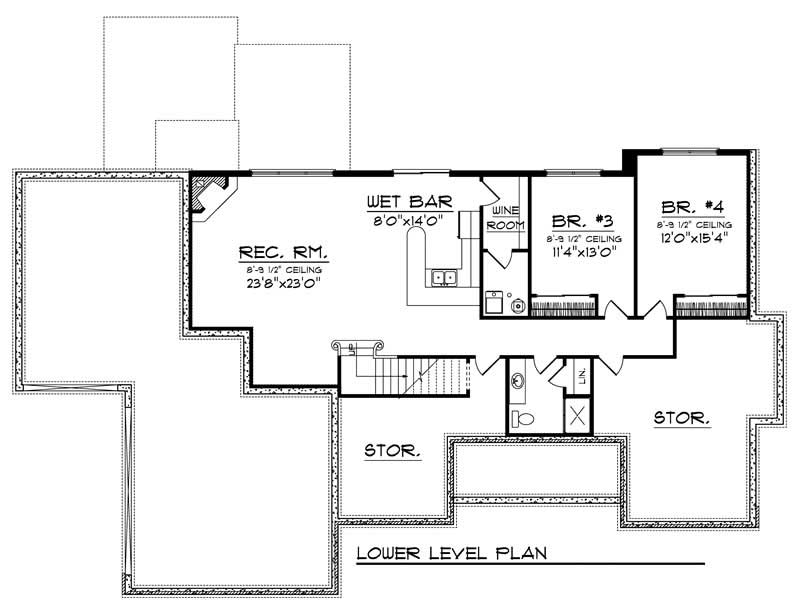
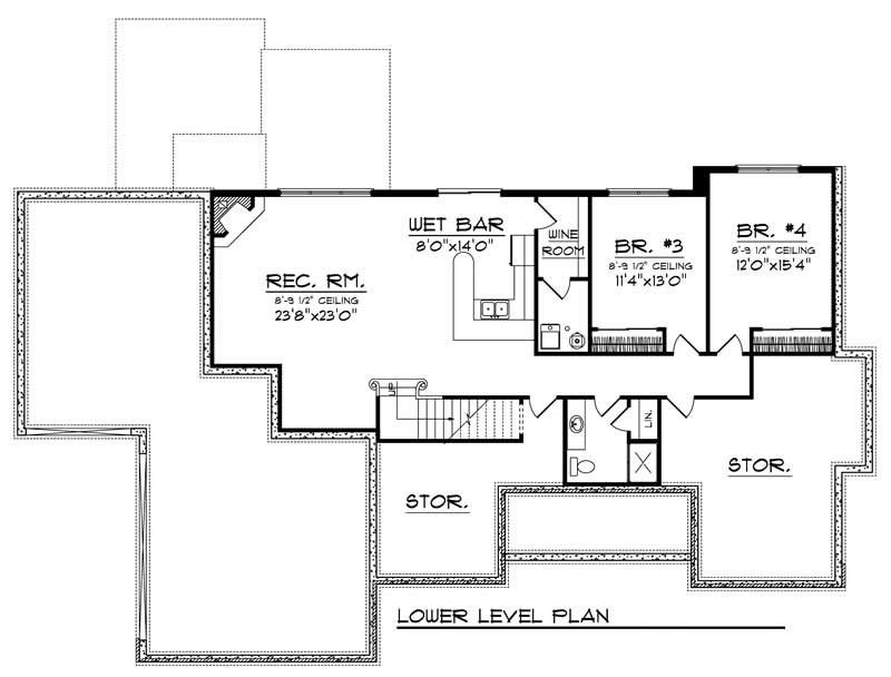
BASEMENT FLOOR PLAN
BASEMENT FLOOR PLAN
Plan Collection

Can I modify this plan?

Yes! This plan can be customized—contact us for a free quote.

House Plan Description

This sprawling beauty gets its charm from the European countryside. You’ll love spending quiet evenings enjoying the spacious porch that’s defined by graceful columns. Inside, the impressive great room features a fireplace flanked by built-ins and an expansive wall of windows that offer an impressive view to the back yard. The kitchen pleases with its walk-in pantry, and unique breakfast bar that offers a view of the fireplace in the great room. An adjacent sunroom is the perfect place to enjoy the morning paper. The bedroom wing is found on the right side of the home and features a master...

Home Details

Summary
Plan #:101-1741
Starting at:$1130.00
Floors:1
Bedrooms:4
Full Baths:1
Half Baths:2
Garage:
Square Footage
Heated Area:3609 Sq. Ft.
First Floor:2269 Sq. Ft.
Unheated Area:
Basement:1340 Sq. Ft.
Garage:973 Sq. Ft.
Dimensions
Width:84' 2''
Ridge Height:24-1' 0''
Architectural Styles
Exterior Wall Material
Aluminum SidingVinyl SidingBrickRock/StoneWood SidingShakes
Roof Pitch
8/12
Ceiling Height
9 Foot Ceiling
Special Feature
FireplaceDining Room
Garage Type
Front Entry
Fireplaces
One Fireplace
Exterior Wall Framing
2x6
Kitchen Features
Walk-in Pantry

What’s Included

Most plan sets include the following:

icon text-secondary-400 includedFront, Back & Side Elevations

icon text-secondary-400 includedFloor Plans

icon text-secondary-400 includedElectrical Layout (location of outlets, switches, etc. - it does not have wiring schematics)

icon text-secondary-400 includedRoof Plan (Birdseye view)

icon text-secondary-400 includedFoundation Layout

icon text-secondary-400 includedWall & Stair Sections

icon text-secondary-400 includedCross Section

icon text-secondary-400 includedKitchen Layout

icon text-secondary-400 includedGeneral Notes

What’s Not Included

These items are  NOT included:

icon text-secondary-400 includedArchitectural or Engineering Stamp - handled locally if required.

icon text-secondary-400 includedSite Plan - handled locally when required.

icon text-secondary-400 includedMechanical Drawings (location of heating and air equipment and ductwork) - your subcontractors handle this.

icon text-secondary-400 includedPlumbing Drawings (drawings showing the actual plumbing pipe sizes and locations) - your subcontractors handle this.

icon text-secondary-400 includedFraming layouts with beam sizes and locations.

icon text-secondary-400 includedEnergy calculations - handled locally when required.

Other Plans By This Designer

Plan Collection
Plan Collection
Plan Collection
Plan#101-1503
Starting at$1090
2098
Sq Ft
2
Story
4
Bed
2
Bath
2
Car
Plan Collection
Plan Collection
Plan Collection
Plan#101-1028
Starting at$1240
3020
Sq Ft
2
Story
4
Bed
2.5
Bath
3
Car
Plan Collection
Plan Collection
Plan Collection
Plan#101-2024
Starting at$1240
3235
Sq Ft
1
Story
5
Bed
3.5
Bath
3
Car