Estimate your costs based on your location and materials.
Yes! This plan can be customized—contact us for a free quote.


Yes! This plan can be customized—contact us for a free quote.
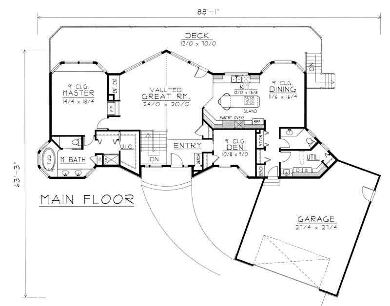
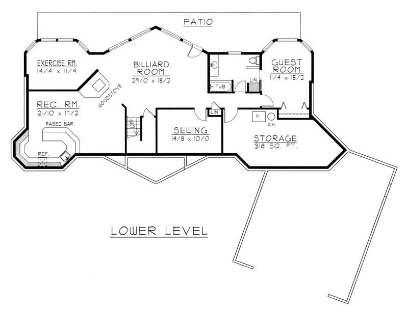
House Plan RDI-1899R1-BD has a balanced floor plan offering an open living space and private bedrooms. The living room boasts a vaulted ceiling and the dining room features bay windows. The kitchen is large with an oversized island. The master suite has a walk-in closet and a private bath. The soaking tub enjoys great views from bay windows. The lower floor plan includes plenty of room for exercise and play with a rec room, billiards room, exercise room, and a wet bar. The house also includes a large laundry room and spacious craft/sewing room.
Estimate your costs based on your location and materials.
All sales of house plans, modifications, and other products found on this site are final. No refunds or exchanges can be given once your order has begun the fulfillment process. Please see our Policies for additional information.
All plans offered on ThePlanCollection.com are designed to conform to the local building codes when and where the original plan was drawn.
The homes as shown in photographs and renderings may differ from the actual blueprints. For more detailed information, please review the floor plan images herein carefully.
Estimate your costs based on your location and materials.




