Estimate your costs based on your location and materials.
Yes! This plan can be customized—contact us for a free quote.


Yes! This plan can be customized—contact us for a free quote.
PLEASE NOTE: Not all plans from this designer can be modified! Please check before sending in a mod request. Thank you!
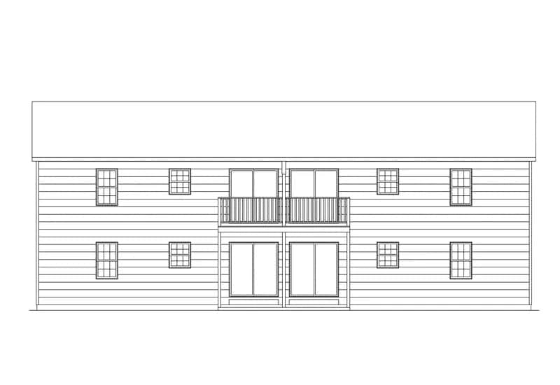
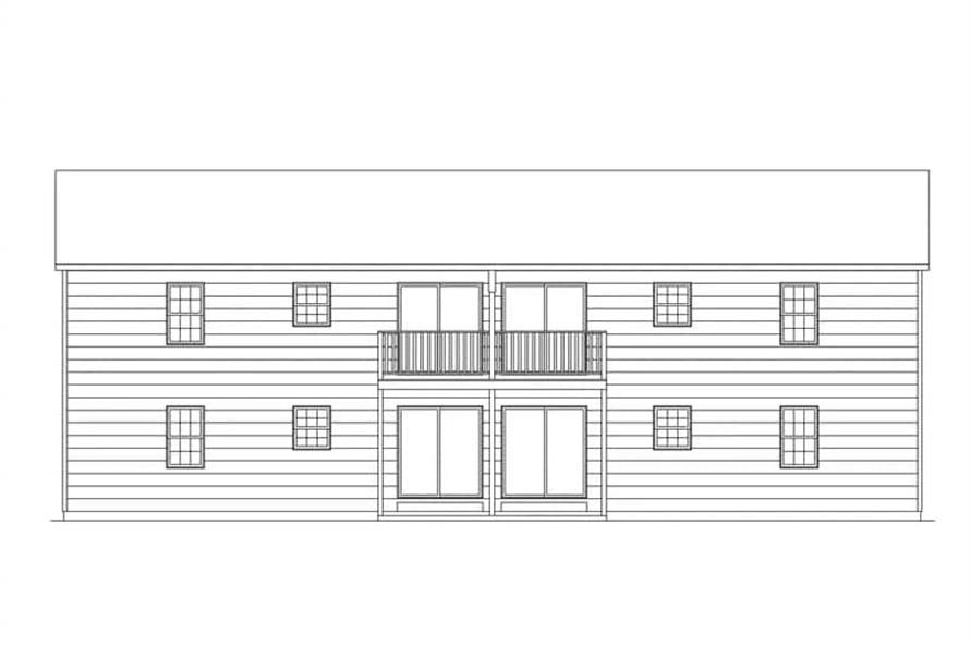
3360 sq ft Duplex Plan, 8 Beds, 4 Baths: 1680 sq ft per unit (2 bedrooms and 1 bath per unit)
This fourplex Southern style home showcases 2 bedrooms and 1 full bath per unit with 840 square feet per unit. The living area of each apartment is open concept, and the U-shaped kitchen features quick deck or patio access. Bedroom 1 offers a large walk-in closet for keeping everything organizedand the full bath and laundry closet are both centrally located for ease.
Estimate your costs based on your location and materials.
All sales of house plans, modifications, and other products found on this site are final. No refunds or exchanges can be given once your order has begun the fulfillment process. Please see our Policies for additional information.
All plans offered on ThePlanCollection.com are designed to conform to the local building codes when and where the original plan was drawn.
The homes as shown in photographs and renderings may differ from the actual blueprints. For more detailed information, please review the floor plan images herein carefully.
Estimate your costs based on your location and materials.





