Victorian house plans, popularized during Queen Victoria's reign (1837-1901), are renowned for their ornate and elaborate architectural details. These homes, blending Gothic Revival, Italianate, and Queen Anne influences, showcase asymmetrical facades, steep gabled roofs, and intricate millwork. Their enduring appeal lies in their ability to adapt to modern living while preserving historical elegance, making them a sought-after choice for those who appreciate unique character and gracious spaces.
Those who appreciate historical architecture and timeless elegance
Families seeking spacious layouts and unique character
Homeowners who enjoy intricate details and ornate features
Buyers looking for homes with potential for customization
Individuals who value a blend of historical charm and modern amenities
Construction Costs: Building a Victorian-style house can be more expensive than a standard modern home due to the intricate details and specialized craftsmanship required. Costs can range from $200 to $500 per square foot, or even higher for highly intricate designs. The overall cost can range from $250,000 to $600,000 or more, depending on size, location, and features.
Maintenance Economics: Victorian homes often require more maintenance due to their age and unique features. Regular upkeep of ornate trim, complex rooflines, and older plumbing and electrical systems can be costly. However, well-maintained Victorian homes can retain or even increase their value over time.
Energy Efficiency: Older Victorian homes can be less energy-efficient due to original single-pane windows, lack of insulation, and drafty construction. Modern Victorian house plans often incorporate energy-efficient features like double-glazed windows and updated insulation to address these concerns.
Budget-Friendly Options: Choosing a simpler Victorian design with fewer ornate details can help reduce construction costs. Additionally, exploring pre-designed plans or modular construction can offer more budget-friendly options.
Financing: Securing financing for a Victorian-style house may require a larger down payment due to the potentially higher construction costs. Detailed plans and cost estimates are essential for loan applications.
Open vs. Compartmentalized: Traditional Victorian homes featured distinct, separated rooms, while modern Victorian plans often incorporate open-concept living areas, blending the kitchen, dining, and living spaces for a more spacious feel.
Spatial Flow: Victorian homes often have a central hallway connecting various rooms, while modern adaptations may prioritize a more open flow between spaces.
Natural Light: Large bay windows are a characteristic feature of Victorian homes, maximizing natural light. Modern designs can further enhance natural light with strategically placed windows and skylights.
Family-Friendly Considerations: Modern Victorian plans can adapt to family needs with features like open floor plans for better interaction, dedicated playrooms, and spacious bedrooms.
Room Relationships: Traditional Victorian homes had designated rooms for specific activities, while modern designs offer more flexibility in how rooms are used.
Building Timeline: Building a Victorian-style house can take longer than a standard modern home due to the complex design and intricate details. Expect a construction timeline of 12 to 18 months or more, depending on the project's complexity.
Structural System Options: Victorian homes typically feature wood framing, but modern adaptations may incorporate steel or other materials for added strength and durability.
Foundation Alternatives: Victorian homes often have basements or crawl spaces, while modern designs may utilize slab foundations.
Weather Resistance: Victorian homes can be adapted to various climates with proper insulation and weatherproofing techniques.
Professional Expertise: Building or renovating a Victorian home often requires specialized contractors experienced in historical restoration techniques.
Climate Suitability: Victorian homes can be adapted to various climates with proper insulation and weatherproofing. Consider the local climate when choosing materials and design features.
Urban vs. Rural Placement: Victorian homes can be found in both urban and rural settings. Consider the surrounding architecture and neighborhood character when choosing a Victorian house plan.
Zoning and Regulations: Research local zoning laws and historic preservation guidelines, especially if renovating an existing Victorian home.
Site Orientation: Consider the orientation of your lot and how the house will be positioned to maximize natural light and views.
Regional Style Modifications: Victorian architecture can be adapted to different regions by incorporating local materials and design elements.
Expansion Potential: Victorian homes often have the potential for expansion, either by adding rooms or extending existing spaces. Consider your future needs when choosing a plan.
Convertible Space: Modern Victorian plans can incorporate flexible spaces that can be adapted to different uses over time.
Technological Integration: Modern Victorian homes can seamlessly integrate smart home technology and other modern amenities.
Aging-in-Place: Consider incorporating features that will make the home accessible and comfortable as you age.
Resale Value: Well-maintained Victorian homes can hold their value or even appreciate over time, especially in desirable locations.
Wall Construction and Siding: Victorian homes often feature wood siding, such as clapboard or shingles, but modern adaptations may use vinyl, fiber cement, or other materials. Brick and stone are also common exterior materials.
Insulation: Older Victorian homes often lack adequate insulation. Modern Victorian house plans incorporate updated insulation methods to improve energy efficiency.
Durability and Maintenance: Victorian homes require regular maintenance due to their age and intricate details. Proper upkeep of wood trim, siding, and roofing is essential for preserving the home's appearance and structural integrity.
Architectural Details: Ornate trim, decorative brackets, gingerbread details, and patterned brickwork are characteristic features of Victorian exteriors.
Color Schemes: Victorian homes often feature vibrant color schemes with multiple colors used to highlight architectural details. Modern adaptations may use more muted tones or a combination of neutral and bold colors.
Roof Styles and Pitches: Steeply pitched roofs with multiple gables and dormers are a hallmark of Victorian architecture. Mansard roofs are also a common feature.
Roofing Materials: Victorian homes traditionally used slate or wood shingles, but modern adaptations may use asphalt shingles, metal roofing, or other materials.
Energy Efficiency: Modern Victorian house plans often incorporate energy-efficient roofing materials and insulation to improve thermal performance.
Architectural Elements: Dormers, chimneys, and decorative finials add to the visual interest of Victorian roofs.
Weather Resistance: Victorian roofs should be designed to withstand local weather conditions, including snow, wind, and rain.
Garage/Workshop Integration: Modern Victorian plans can incorporate attached or detached garages and workshops, often with designs that complement the main house's architecture.
Utility and Mechanical Areas: Modern Victorian plans often include dedicated spaces for laundry, mechanical equipment, and storage.
Storage Solutions: Victorian homes can incorporate various storage solutions, including built-in cabinets, closets, and attic space.
Specialty Rooms: Victorian homes can include specialized rooms like libraries, studies, or music rooms, depending on the homeowner's needs.
Indoor-Outdoor Transitions: Victorian homes often feature porches, verandas, and other outdoor living spaces that connect seamlessly with the interior.
Great Room/Main Living Space: Modern Victorian plans may incorporate open-concept living areas that combine the living room, dining room, and kitchen.
Kitchen Configuration: Victorian kitchens can range from traditional closed-off spaces to modern open kitchens with islands and updated appliances.
Dining Area Integration: Victorian dining rooms can be formal spaces or integrated into the open living area.
Traffic Flow: Consider the flow of movement between rooms when choosing a Victorian house plan.
Sound Management: Modern Victorian plans can incorporate soundproofing techniques to minimize noise transfer between rooms.
Height Variations: Victorian homes often feature high ceilings, adding to the sense of grandeur. Modern adaptations may incorporate varying ceiling heights to create visual interest.
Exposed Structural Elements: Some Victorian designs expose beams or trusses for a more rustic or industrial look.
Insulation and Energy Considerations: Modern Victorian plans incorporate insulation in ceilings to improve energy efficiency.
Lighting Integration: Victorian homes can incorporate various lighting fixtures, including chandeliers, pendant lights, and sconces.
Visual Interest: Decorative ceiling medallions, moldings, and other details can enhance the Victorian aesthetic.
Flooring: Victorian homes often feature hardwood floors, but modern adaptations may use engineered wood, tile, or other materials.
Wall Treatments: Victorian walls can be painted, wallpapered, or paneled. Consider using historically accurate colors and patterns.
Trim and Millwork: Ornate trim and millwork are characteristic features of Victorian interiors.
Hardware and Fixtures: Choose hardware and fixtures that complement the Victorian style, such as antique-inspired door knobs and light fixtures.
Material Authenticity: When restoring a Victorian home, prioritize using authentic materials whenever possible.
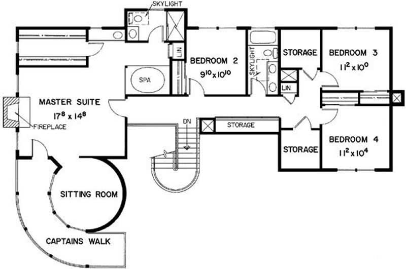
Location and Privacy: Victorian master suites can be located on the second floor or the main level, depending on the homeowner's preferences.
Bathroom Design: Victorian bathrooms can range from traditional clawfoot tubs and pedestal sinks to modern spa-like retreats.
Storage and Closets: Victorian master suites can incorporate walk-in closets and other storage solutions.
Lighting and Comfort: Consider incorporating features like dimmer switches and heated floors for added comfort.
Connection to Outdoor Spaces: Victorian master suites can connect to balconies, porches, or other outdoor areas.
Flex Rooms: Modern Victorian plans can incorporate flex rooms that can be used for various purposes, such as a home office, guest room, or playroom.
Loft and Bonus Area Utilization: Victorian homes can incorporate lofts or bonus areas for additional living space.
Home Office Integration: Modern Victorian plans can include dedicated home office spaces.
Guest Accommodation: Consider incorporating a guest suite or extra bedrooms for visitors.
Hobby and Recreation Spaces: Victorian homes can include dedicated spaces for hobbies, such as a craft room or music room.
Built-in Systems: Victorian homes can incorporate built-in cabinets, shelves, and other storage solutions.
Closet and Cabinet Configurations: Consider the placement and size of closets and cabinets when choosing a Victorian house plan.
Attic and Basement Utilization: Victorian homes often have attics and basements that can be used for storage.
Garage and Utility Organization: Modern Victorian plans can include organized storage solutions in the garage or utility area.
Specialized Storage: Consider your specific storage needs when choosing a Victorian house plan.
Porch, Patio, and Deck Designs: Victorian homes often feature large porches, verandas, or patios.
Outdoor Kitchen and Entertainment Areas: Modern Victorian plans can incorporate outdoor kitchens and entertainment spaces.
Landscape Connection: Consider how the landscaping will complement the Victorian architecture.
Indoor-Outdoor Flow: Victorian homes can be designed to create a seamless flow between indoor and outdoor living spaces.
Weather Protection: Consider adding covered areas for protection from the elements.
Typical Square Footage: Victorian homes can range in size from less than 1,000 square feet to over 6,000 square feet.
Standard Floor Plan Arrangements: Victorian homes often feature a central hallway with rooms branching off, but modern adaptations may incorporate open floor plans.
Expected Lifespan: With proper maintenance, a Victorian home can last for many years, often exceeding 100 years.
Common Maintenance Requirements: Regular upkeep of the roof, siding, windows, and other exterior elements is essential for preserving a Victorian home. Interior features like ornate trim and woodwork also require regular care.
New house plans with great looking photos are added to our site almost every day.