Estimate your costs based on your location and materials.
Yes! This plan can be customized—contact us for a free quote.


Yes! This plan can be customized—contact us for a free quote.
PLEASE NOTE!! For this designer, The PDF that comes with the PRINT Packages (5 set+PDF and 8 set+PDF) is NOT Modifiable - it is for printing ONLY!
PLEASE NOTE!! Optional Foundations (foundations that cost extra money) will take 5-10 business days to complete.
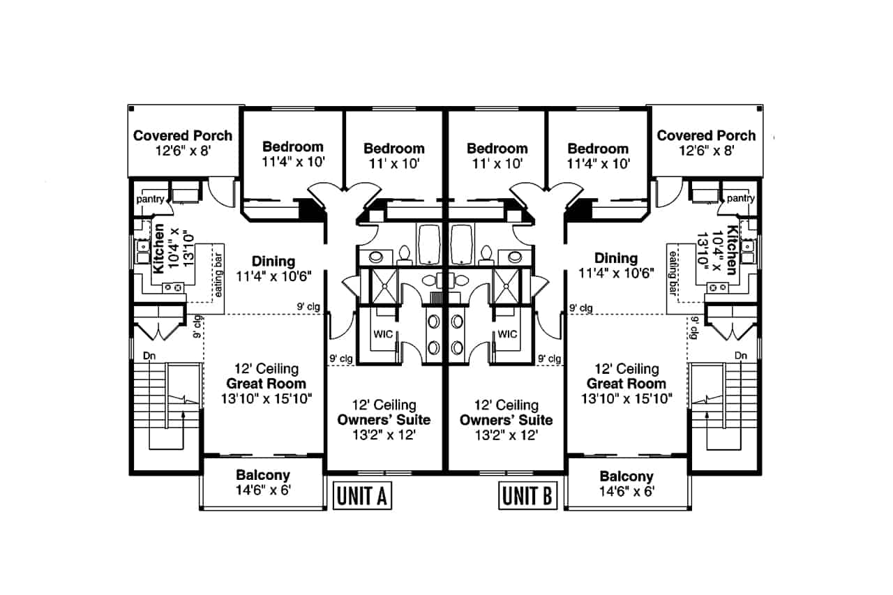
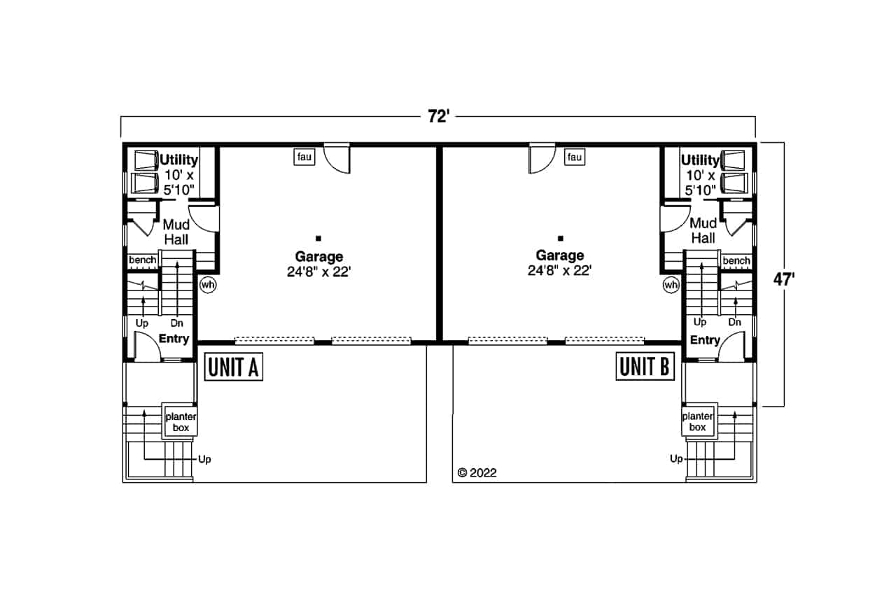
This multi-family plan has two identical units. Each unit has 1527 living square feet, 3 bedrooms, 2 bathrooms, and 2 garage spaces.
The remarkable feat of architectural design achievement is displayed by this 2-unit Contemporay-style home. With an excellent and sincere design, this house is perfect for any family! The 1-story floor plan has a total of 3054 living sq ft (1527 living sq ft per unit):
Estimate your costs based on your location and materials.
All sales of house plans, modifications, and other products found on this site are final. No refunds or exchanges can be given once your order has begun the fulfillment process. Please see our Policies for additional information.
All plans offered on ThePlanCollection.com are designed to conform to the local building codes when and where the original plan was drawn.
The homes as shown in photographs and renderings may differ from the actual blueprints. For more detailed information, please review the floor plan images herein carefully.
Estimate your costs based on your location and materials.





