1-Bedroom, 2591 Sq Ft Log Cabin Plan with Main Floor Master

Front Elevation of this Log Cabin House (#132-1220) at The Plan Collection.

Images/Plans copyrighted by designer. Photos may reflect homeowner modifications.

About House Plan #132-1220

Sq Ft
2591
Sq Ft
Bedrooms
1
Bedrooms
Bathroom
2
Baths
Half Baths
0
Half Baths
Bedrooms
0
Cars
Bedrooms
3
Stories
Bedrooms
36' 8'
Width
Bedrooms
26
Depth
Starting at$1480.00What's included
STEP 1Bedrooms
STEP 2Bedrooms
STEP 3Bedrooms

Subtotal:$0
BedroomsBest Price Guaranteed
Plan Collection

How much will it cost to build?

Estimate your costs based on your location and materials.

Free Cost Instant Estimator

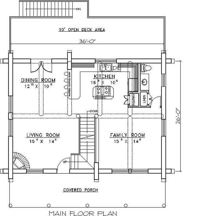
Floor Plans

SECOND FLOOR PLAN
SECOND FLOOR PLAN
BASEMENT
BASEMENT
FIRST FLOOR
FIRST FLOOR
Plan Collection

Can I modify this plan?

Yes! This plan can be customized—contact us for a free quote.

Additional Notes from Designer

PLEASE NOTE! The CAD - Unlimited package is NOT an unlimited license - it is a license to build up to 5 homes. ATTENTION! Printed sets can ONLY be sent via ground shipping. NO priority or express shipping is available. ATTENTION! Printed sets can ONLY be sent by ground - NO priority or express shipping on printed sets!

House Plan Description

Just one look and you'll fall in love with this beautiful cabin. The main level is has a wonderful layout. The living room is sure to be a favorite with its corner fireplace and access to both the covered porch and upper level. Then there's the family room with a wonderful view from its large windows. Also on the main floor is the dining room and Kitchen with a pantry, center island, and eating bar. Downstairs is located the recreation room. The upper floor is entirely dominated by the beautiful master suite.

Home Details

Summary
Plan #:132-1220
Starting at:$1480.00
Floors:3
Bedrooms:1
Full Baths:2
Half Baths:0
Garage:
Square Footage
Heated Area:2591 Sq. Ft.
First Floor:936 Sq. Ft.
Second Floor:677 Sq. Ft.
Unheated Area:
Basement:978 Sq. Ft.
Dimensions
Width:36' 8''
Ridge Height:29-0' 0''
Architectural Styles
Exterior Wall Material
Log
Roofing Type
Gable
Roofing Material
Metal
Roof Pitch
12/12
Ceiling Height
9 Foot Ceiling8 Foot Ceiling
Special Feature
FireplaceDining RoomFamily RoomGame RoomLoft
Fireplaces
One Fireplace
Exterior Wall Framing
2x62x4Log
Building Lot Type
Down SiteNarrow Lot Design
Kitchen Features
Kitchen IslandNook/Breakfast AreaWalk-in PantryPeninsula/Eating BarEat-In Kitchen
Porches and Exterior Features
Covered Front PorchSundeck
Master Suite Features
Master BathroomWalk In ClosetSecond Floor Master

What’s Included

Most plan sets include the following:

icon text-secondary-400 includedExterior elevations: shows the home on all four sides, calls out exterior finishes, rooflines, window and door locations.

icon text-secondary-400 includedFloor plans: includes interior and exterior dimensions, window/door schedule, wall framing details.

icon text-secondary-400 includedFoundation plan: shows footing, stem wall, and slab placement, including all connection details.

icon text-secondary-400 includedFloor and roof framing plans show truss/rafter placements, including all beams/connection details.

icon text-secondary-400 includedCross-sections: cut-through view of the structure from roof to foundation, shows framing, plate heights, insulation, etc.

icon text-secondary-400 includedElectrical layout

icon text-secondary-400 includedGeneral notes/details to cover the entirety of the project

What’s Not Included

These items are  NOT included:

icon text-secondary-400 includedArchitectural or Engineering Stamp - handled locally if required.

icon text-secondary-400 includedSite Plan - handled locally when required.

icon text-secondary-400 includedMechanical Drawings (location of heating and air equipment and ductwork) - your subcontractors handle this.

icon text-secondary-400 includedPlumbing Drawings (drawings showing the actual plumbing pipe sizes and locations) - your subcontractors handle this.

icon text-secondary-400 includedEnergy calculations - handled locally when required.

Other Plans By This Designer

Plan Collection
Plan Collection
Plan Collection
Plan#132-1107
Starting at$1205
689
Sq Ft
1
Story
1
Bed
1
Bath
0
Car
Plan Collection
Plan Collection
Plan Collection
Plan#132-1694
Starting at$1370
1920
Sq Ft
2
Story
3
Bed
3
Bath
3
Car
Plan Collection
Plan Collection
Plan Collection
Plan#132-1709
Starting at$1480
3391
Sq Ft
2
Story
3
Bed
3.5
Bath
0
Car