Estimate your costs based on your location and materials.
Yes! This plan can be customized—contact us for a free quote.


Yes! This plan can be customized—contact us for a free quote.
Plans by this designer do NOT usually come with FRAMING - some plans may have framing available for an extra fee - please contact us to find out about a specific plan & we will check with the designer!!
Additionally: For this designer, if you choose optional features such as but not limited to: 2x6 framing, reverse or optional basement, the designer will need an additional 2-5 business days to adjust the plan accordingly. Please keep this in mind when choosing your shipping option. If you would like Express or Priority shipping, the designer will ship the plan to you using the method you choose but you will still have the 2-5 business day waiting period BEFORE they ship! Please feel free to contact us with any questions! PLEASE NOTE: Multi-licenses are available.
The plans do not come with ICF specifications. If ICF construction method is desired, the CAD plan can be purchased and then forwarded to the ICF dealer and they’ll do a takeoff to assist with that specific projec
Floor Plans Specifications:
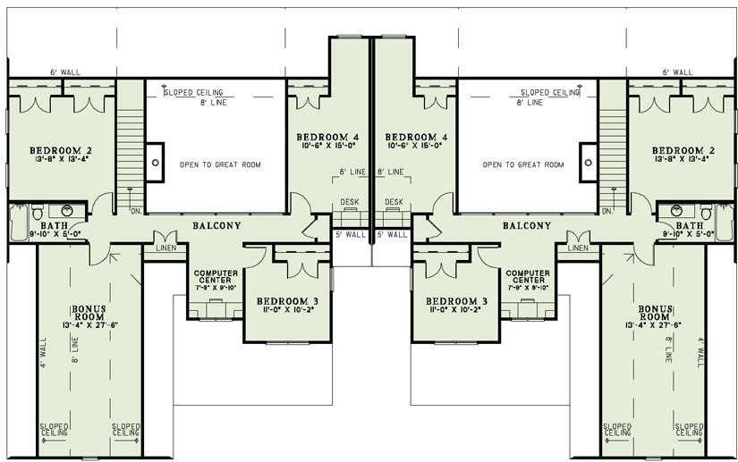
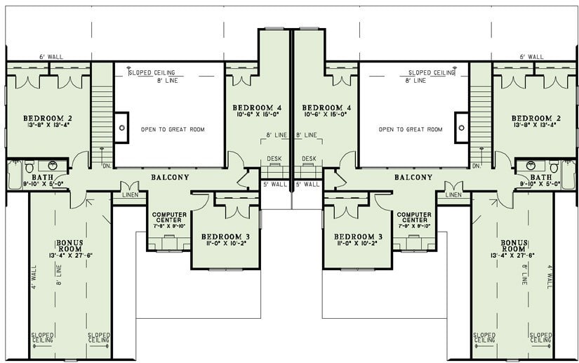
Gross Square Footage (Unit 1 + Unit 2): Heat/Cooled Main Floor = 3190 sq ft; Heat/Cooled Upper Floor = 1750 sq ft; Heat/Cooled Total = 4940 sq ft; Garage, Storage = 984 sq ft; Porches = 420 sq ft; Total Excluding Bonus Room = 6764 sq ft; Bonus Room = 389 sq ft
UNIT 1: Heat/Cooled Main Floor = 1595 sq ft; Heat/Cooled Upper Floor = 875 sq ft; Heat/Cooled Total = 2470 sq ft; Garage, Storage = 492 sq ft; Porches = 420 sq ft; Total Excluding Bonus Room = 3382 sq ft; Bonus Room = 389 sq ft
UNIT 2: Heat/Cooled Main Floor = 1595 sq ft; Heat/Cooled Upper Floor = 875 sq ft; Heat/Cooled Total = 2470 sq ft Garage, Storage = 492 sq ft; Porches = 420 sq ft; Total Excluding Bonus Room = 3382 sq ft; Bonus Room = 389 sq ft
This stunning 2-story country-style duplex boasts two identical units. Each unit is spacious, with volume ceilings that give it an open and airy feel. The Great Room is a highlight, featuring a cozy fireplace that adds a touch of warmth and charm.
The kitchen is well-designed with an eating bar, and there's a formal dining room for those special occasions. A large breakfast room overlooks the rear yard, and there's direct access to the grilling porch, making it perfect for outdoor gatherings.
Each unit has a total of four bedrooms, and on the main floor,...
Estimate your costs based on your location and materials.
All sales of house plans, modifications, and other products found on this site are final. No refunds or exchanges can be given once your order has begun the fulfillment process. Please see our Policies for additional information.
All plans offered on ThePlanCollection.com are designed to conform to the local building codes when and where the original plan was drawn.
The homes as shown in photographs and renderings may differ from the actual blueprints. For more detailed information, please review the floor plan images herein carefully.
Estimate your costs based on your location and materials.



