Estimate your costs based on your location and materials.
Yes! This plan can be customized—contact us for a free quote.

Yes! This plan can be customized—contact us for a free quote.
Please Note: The Designer's office will be closed for the holidays from 12/19/2025 to 1/5/2026. Any orders placed during this time will be fulfilled when the designer resumes office. This designer's plans take 7-14 additional business days regardless of the type of delivery (express, email, etc). Please keep this in mind when ordering.
BCIN is available for this designer - please submit a modification request to get a quote and time frame.
PLEASE NOTE! This designer's plans do NOT come with an electrical layout. They will provide an electrical layout for an additional fee.
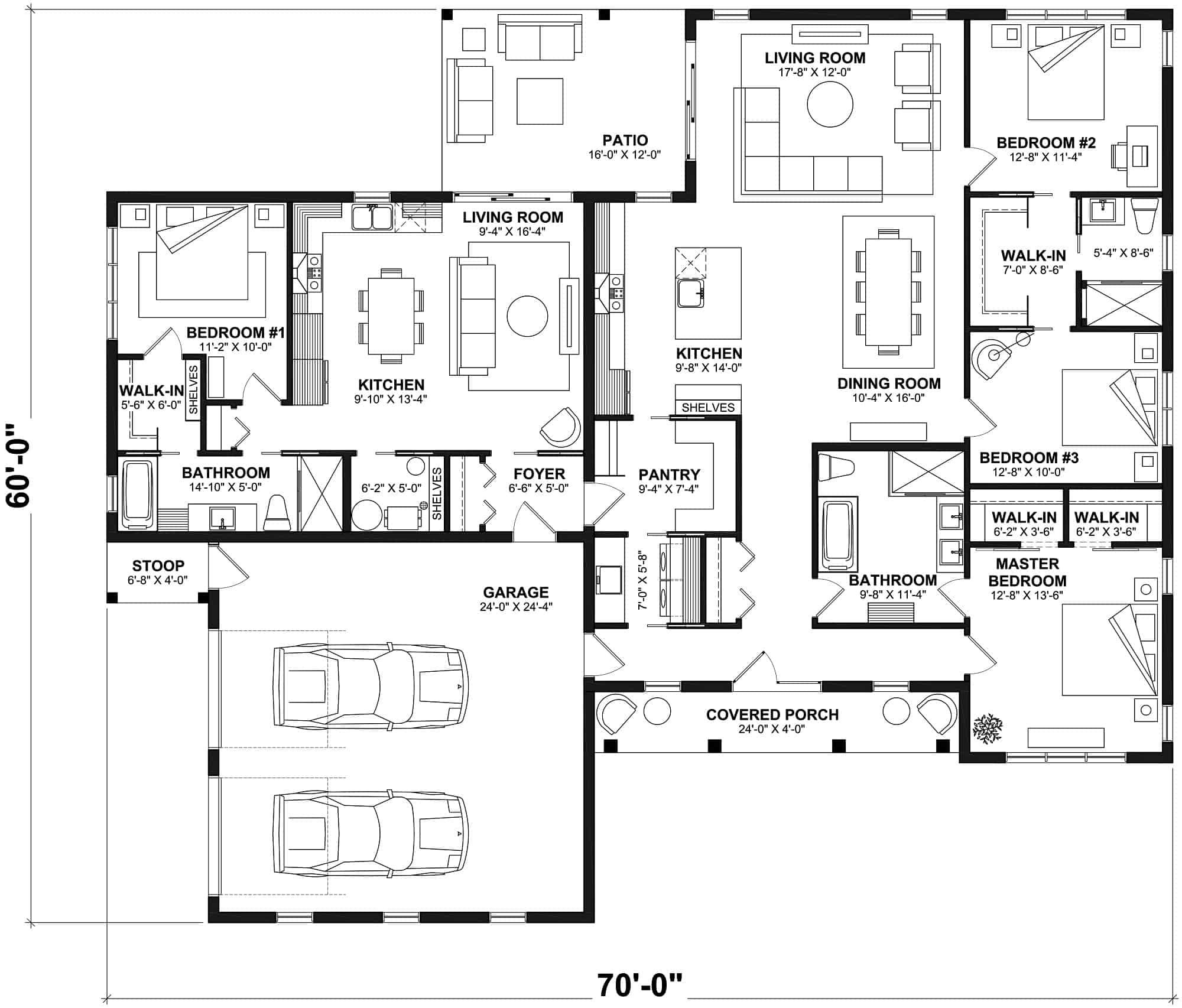
This Multi-Family Ranch Style House Plan has 2440square feet, 4 bedrooms, and 3 bathrooms.
This Multi-Family Ranch style home with Country touch is truly amazing with a floor plan that is spacious and inviting. It exudes a very warm ambiance as it displays the use of natural materials. It covers a total heated and cooled area of 2440 square feet with a 650-square-foot 2-car garage.
This home boasts an open floor plan with 2 living rooms, 2 kitchens and a dining area. The covered patio at the back further enhances the size of these living areas especially during festive occasions or outdoor activities and offers easy access to the living...
Estimate your costs based on your location and materials.
All sales of house plans, modifications, and other products found on this site are final. No refunds or exchanges can be given once your order has begun the fulfillment process. Please see our Policies for additional information.
All plans offered on ThePlanCollection.com are designed to conform to the local building codes when and where the original plan was drawn.
The homes as shown in photographs and renderings may differ from the actual blueprints. For more detailed information, please review the floor plan images herein carefully.
Estimate your costs based on your location and materials.













