4-Bedroom, 2411 Sq Ft Ranch Plan with Screened in Lanai

Main image for house plan # 19935

Images/Plans copyrighted by designer. Photos may reflect homeowner modifications.

About House Plan #131-1009

Sq Ft
2411
Sq Ft
Bedrooms
4
Bedrooms
Bathroom
2
Baths
Half Baths
1
Half Baths
Bedrooms
2
Cars
Bedrooms
1
Stories
Bedrooms
52' 0'
Width
Bedrooms
43
Depth
Starting at$950.00What's included
STEP 1Bedrooms
STEP 2Bedrooms
STEP 3Bedrooms

Subtotal:$0
BedroomsBest Price Guaranteed
Plan Collection

How much will it cost to build?

Estimate your costs based on your location and materials.

Free Cost Instant Estimator

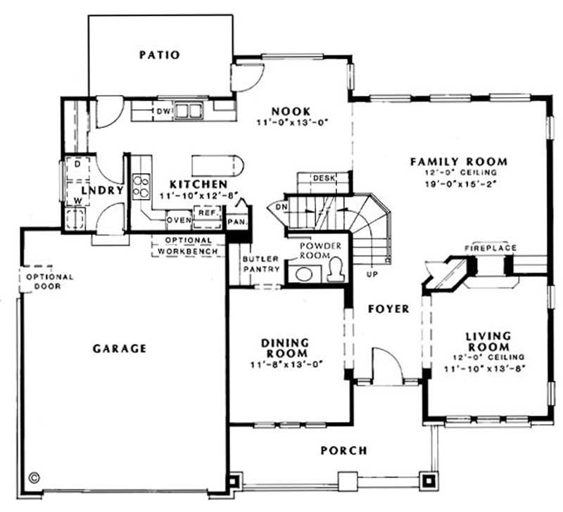
Floor Plans

MAIN LEVEL FLOOR PLAN
MAIN LEVEL FLOOR PLAN
SECOND LEVEL FLOOR PLAN
SECOND LEVEL FLOOR PLAN
Plan Collection

Can I modify this plan?

Yes! This plan can be customized—contact us for a free quote.

House Plan Description

This warm and inviting home features a see-through fireplace between the living room and family room. The gourmet kitchen gives the cook in your family the added work space of an island, plus the all the amenities you've come to expect. Efficiently designed, the kitchen easily serves both the formal dining room and the nook. Upstairs, four bedrooms accommodate your sleeping hours. The master bedroom adds interest with a vaulted ceiling. The master bath has a large double vanity, linen closet, corner tub, separate shower, compartmented toilet, and huge walk-in closet. The three...

Home Details

Summary
Plan #:131-1009
Starting at:$950.00
Floors:1
Bedrooms:4
Full Baths:2
Half Baths:1
Garage:
Square Footage
Heated Area:2411 Sq. Ft.
First Floor:1241 Sq. Ft.
Second Floor:1170 Sq. Ft.
Unheated Area:
Garage:500 Sq. Ft.
Dimensions
Ridge Height:27'0' 0''
Architectural Styles
Exterior Wall Material
Vinyl SidingBrick
Roofing Type
Hip
Roof Pitch
6/12
Special Feature
FireplaceDining RoomFamily Room
Exterior Wall Framing
2x4

What’s Included

Most plan sets include the following:

icon text-secondary-400 includedExterior elevations

icon text-secondary-400 includedFoundation plans

icon text-secondary-400 includedInterior elevations

icon text-secondary-400 includedElectrical layout

icon text-secondary-400 includedDetailed house floor plans

What’s Not Included

These items are  NOT included:

icon text-secondary-400 includedArchitectural or Engineering Stamp - handled locally if required.

icon text-secondary-400 includedSite Plan - handled locally when required.

icon text-secondary-400 includedMechanical Drawings (location of heating and air equipment and ductwork) - your subcontractors handle this.

icon text-secondary-400 includedPlumbing Drawings (drawings showing the actual plumbing pipe sizes and locations) - your subcontractors handle this.

icon text-secondary-400 includedEnergy calculations - handled locally when required.

Related House Plans

Plan Collection
Plan Collection
Plan Collection
Plan#141-1107
Starting at$1400
2199
Sq Ft
1
Story
4
Bed
2.5
Bath
2
Car
Plan Collection
Plan Collection
Plan Collection
Plan#108-1623
Starting at$1050
2396
Sq Ft
1
Story
4
Bed
2
Bath
3
Car
Plan Collection
Plan Collection
Plan Collection
Plan#126-1032
Starting at$1855
2336
Sq Ft
1
Story
4
Bed
2.5
Bath
2
Car
View All

Other Plans By This Designer

Plan Collection
Plan Collection
Plan Collection
Plan#131-1047
Starting at$800
1792
Sq Ft
1
Story
3
Bed
2
Bath
0
Car
Plan Collection
Plan Collection
Plan Collection
Plan#131-1013
Starting at$900
2083
Sq Ft
2
Story
3
Bed
2.5
Bath
2
Car
Plan Collection
Plan Collection
Plan Collection
Plan#131-1243
Starting at$600
972
Sq Ft
2
Story
3
Bed
1
Bath
0
Car