Estimate your costs based on your location and materials.
Yes! This plan can be customized—contact us for a free quote.



Yes! This plan can be customized—contact us for a free quote.
On some plans, Basement Foundations, Walkout Basement Foundations, & 2x6 Conversions could take up to ONE WEEK to produce. Materials Lists could take up to FOUR WEEKS to produce and they will be for the ORIGINAL plan! Any modifications will NOT be reflected on the Materials List. NOTE FROM DESIGNER: If you purchase a CAD, you will automatically receive the unlimited build license - no need to purchase separately!
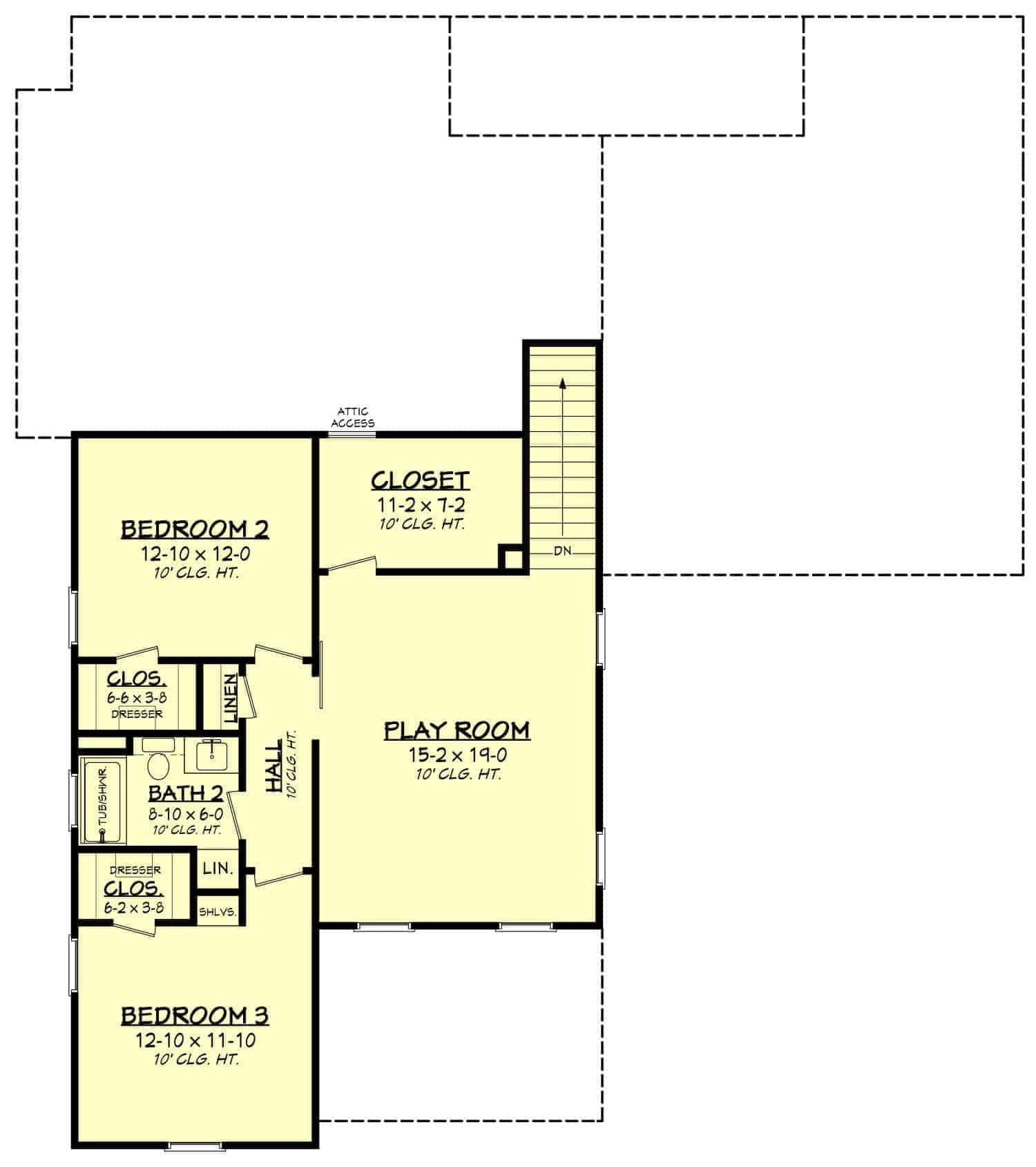
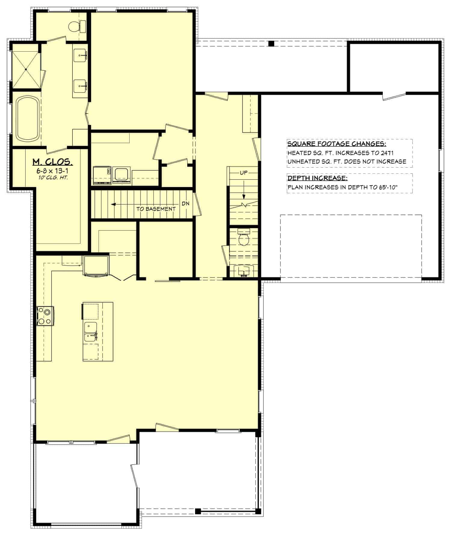
Looking for a perfect home that offers everything you need and more? Look no further than this 3-bedroom, 2388 sq ft traditional home plan. This beautiful 2 story modern farmhouse offers ample space for your family to grow and thrive. The main level features an open concept layout with a spacious great room, perfect for entertaining. The kitchen is complete with all the amenities you need to cook up a feast for your loved ones. The dining area is adjacent to the kitchen, making it easy to enjoy a meal together. The main suite is located on the first floor and features a large closet and...
Estimate your costs based on your location and materials.
All sales of house plans, modifications, and other products found on this site are final. No refunds or exchanges can be given once your order has begun the fulfillment process. Please see our Policies for additional information.
All plans offered on ThePlanCollection.com are designed to conform to the local building codes when and where the original plan was drawn.
The homes as shown in photographs and renderings may differ from the actual blueprints. For more detailed information, please review the floor plan images herein carefully.
Estimate your costs based on your location and materials.



















