3-Bedroom, 2335 Sq Ft Multi-Level Plan with Master Bathroom

Multi-Level home (ThePlanCollection: Plan #157-1487)

Images/Plans copyrighted by designer. Photos may reflect homeowner modifications.

About House Plan #157-1487

Sq Ft
2335
Sq Ft
Bedrooms
3
Bedrooms
Bathroom
3
Baths
Half Baths
0
Half Baths
Bedrooms
2
Cars
Bedrooms
2
Stories
Bedrooms
54' 0'
Width
Bedrooms
40
Depth
Starting at$1455.00What's included
STEP 1Bedrooms
STEP 2Bedrooms
STEP 3Bedrooms

Subtotal:$0
BedroomsBest Price Guaranteed
Plan Collection

How much will it cost to build?

Estimate your costs based on your location and materials.

Free Cost Instant Estimator

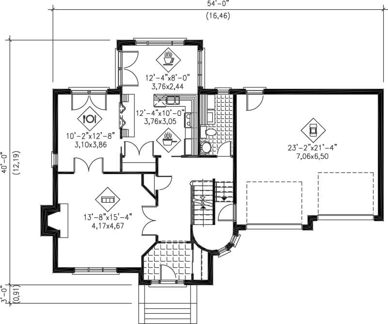
Floor Plans

MAIN FLOOR PLAN
MAIN FLOOR PLAN
UPPER FLOOR PLAN
UPPER FLOOR PLAN
Plan Collection

Can I modify this plan?

Yes! This plan can be customized—contact us for a free quote.

Additional Notes from Designer

Please Note that the designer's office will be closed for Christmas and New Year's Day from 12/21/2024 to 1/5/2025, inclusive. Any orders or modification requests submitted during this time will be processed when the designer resumes office on 1/6/2025. This designer doesn't offer electrical layouts with their plans! For our Ontario customers - BCIN is available for this designer's plans. Please submit a modification request to receive a free quote.

House Plan Description

This pleasing multi-level or split level home has 2,335 square feet of living space. The two-story floor plan includes 3 bedrooms and 3 bathrooms.

Home Details

Summary
Plan #:157-1487
Starting at:$1455.00
Floors:2
Bedrooms:3
Full Baths:3
Half Baths:0
Garage:
Square Footage
Heated Area:2335 Sq. Ft.
First Floor:1024 Sq. Ft.
Second Floor:1311 Sq. Ft.
Unheated Area:
Dimensions
Architectural Styles
Exterior Wall Material
Brick
Garage Type
Attached Garage
Fireplaces
One Fireplace

What’s Included

Most plan sets include the following:

icon text-secondary-400 includedExterior elevations

icon text-secondary-400 includedFoundation plan

icon text-secondary-400 includedFloor plans

icon text-secondary-400 includedCross sections

icon text-secondary-400 includedStaircase section

icon text-secondary-400 includedRoof truss drawings

icon text-secondary-400 includedSpecifications

icon text-secondary-400 includedConstruction details

icon text-secondary-400 includedSize of structural elements (posts, beams, concrete pads, etc.)

What’s Not Included

These items are  NOT included:

icon text-secondary-400 includedArchitectural or Engineering Stamp - handled locally if required.

icon text-secondary-400 includedSite Plan - handled locally when required.

icon text-secondary-400 includedMechanical Drawings (location of heating and air equipment and ductwork) - your subcontractors handle this.

icon text-secondary-400 includedPlumbing Drawings (drawings showing the actual plumbing pipe sizes and locations) - your subcontractors handle this.

icon text-secondary-400 includedEnergy calculations - handled locally when required.

Related House Plans

Plan Collection
Plan Collection
Plan Collection
Plan#157-1441
Starting at$1350
1751
Sq Ft
2
Story
3
Bed
3
Bath
1
Car
Plan Collection
Plan Collection
Plan Collection
Plan#157-1437
Starting at$1350
1807
Sq Ft
2
Story
3
Bed
3
Bath
2
Car
Plan Collection
Plan Collection
Plan Collection
Plan#157-1256
Starting at$1455
2242
Sq Ft
2
Story
3
Bed
3
Bath
2
Car
View All

Other Plans By This Designer

Plan Collection
Plan Collection
Plan Collection
Plan#157-1148
Starting at$1055
1110
Sq Ft
1
Story
2
Bed
1
Bath
0
Car
Plan Collection
Plan Collection
Plan Collection
Plan#157-1381
Starting at$855
1000
Sq Ft
1
Story
2
Bed
1
Bath
1
Car
Plan Collection
Plan Collection
Plan Collection
Plan#157-1382
Starting at$1255
1367
Sq Ft
1
Story
2
Bed
2
Bath
1
Car

By Architectural Style