Ranch house plans are traditionally one-story homes with a simple, streamlined design. These houses typically have low, straight rooflines or shallow-pitched hip roofs, an attached garage, brick or vinyl siding, and a porch. Modern ranch home plans combine the classic look with present-day amenities and have become a favored house design. The new generation of ranch-style homes offers more amenities and layout options.
Ranch-style homes are known for their single story and roofs that aren't very steep, usually straight or hip-shaped, which makes them look long and flat. They often come with an attached garage and have brick or vinyl siding on the exterior. Ranch layouts frequently include three bedroom home plans with efficient footprints and practical room placement. Newer versions of these homes take these features further with open layouts, luxurious main bedrooms, big kitchens with islands, private offices, and large outdoor spaces, all designed for how people live today. Here’s a list of what to look for in today’s ranch-style house plan:
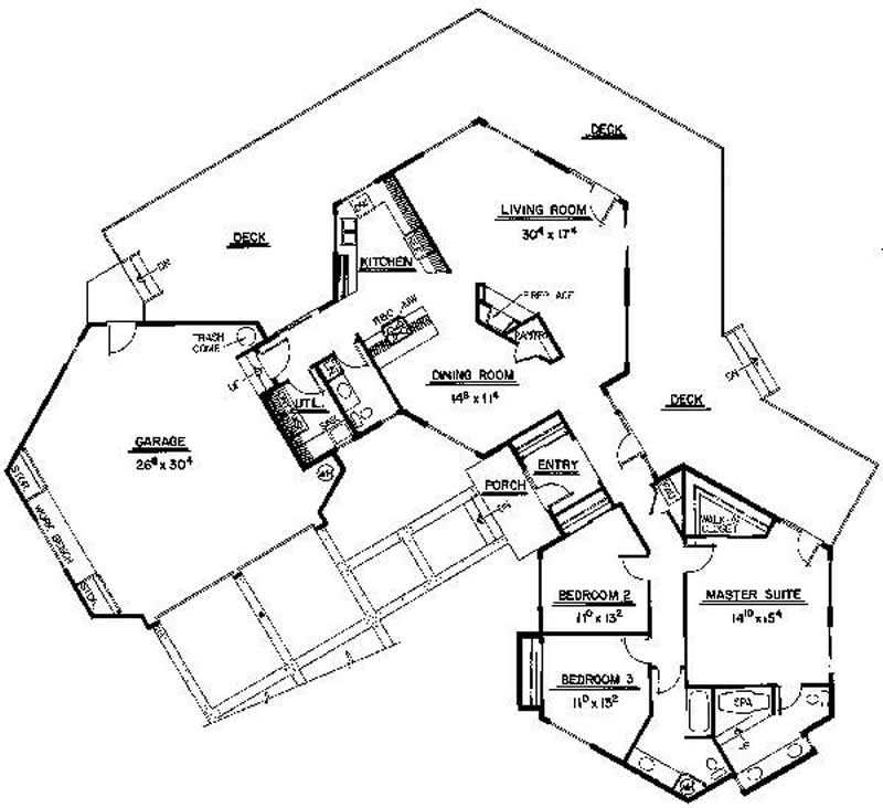
Ranch-style houses come in many forms. We've listed some of the most popular variations below.
Ranch-style homes have many upsides, like being on one level, which is great for everyone, no matter their age or how easily they move around. A significant benefit of a ranch house plan is its flexibility. This classic style can be adapted to any family configuration. To add square footage to a one-story ranch, explore adding a lower-level basement. Building on a basement rather than a slab foundation increases livable and storage space. The primary suite is typically on the main level, but the basement space allows more bedrooms to be built. Also, if a family needs more space on the ground floor, ranch layouts often allow for building an addition with less complexity than other home designs. Another advantage of ranch-style house plans is that their typically simple design and construction make them more affordable than other homes.
Ranch-style homes offer many benefits, but there are also a few things to keep in mind. Since they are one-story and spread out, they usually need bigger property lots. This can be a problem in places where land is expensive or there isn't much space. The open layouts are great for bringing people together, though they can sometimes mean less privacy and more noise traveling between rooms. Also, having a large outside surface can sometimes lead to higher heating and cooling bills, but newer designs often include energy-saving features to help with this.
At The Plan Collection, we've hand-selected our ranch house plans collection. You can find many different ranch-style plans that fit various needs. Use our advanced search features to filter and select your dream house design.
“Simplicity is beauty” truly captures the essence of today’s ranch home. Once criticized as having no style, the rambling one-story structures, with their open floor plans, large windows, and sliding glass doors to a rear patio, are basking in a revival these days. Typically built close-to-the-ground with a low-pitched roof, minimal exterior, and interior decoration, the “ranch” really caught the imagination of America’s middle class in the late 1940s through the 1960s before falling out of favo